Retour
Rechercher
Lieu
Où ?
    Type de bien
    Quel type de projet ?
    Particulier Entreprise
    Quel type de bien ?
        Prix
        Quel budget ?
              Surface
              Quelle surface ?
                    Pièces
                    Combien de pièces ?
                      Combien de chambres ?
                          24

                          Annonces immobilières à Fontcouverte

                          Recherche 24
                          Carte
                          • Maison - 94 m² - 5 pièces
                          • Maison - 94 m² - 5 pièces
                          • Maison - 94 m² - 5 pièces
                          • Maison - 94 m² - 5 pièces
                          • Maison - 94 m² - 5 pièces
                          • Maison - 94 m² - 5 pièces Cliquez pour voir les 12 photos

                          Maison - 94 m² - 5 pièces

                          176 054 €
                          Maison neuve à construire FRENE_3CH_94_V1 terrain diffus non viabilise assainissement autonome BELLE MAISON DE 3 CHAMBRES Cette maison de 3 chambres présente une façade compacte, une architecture équilibrée et une surface habitable de 94 m². Elle se distingue par une pièce de vie de 35 m², deux grandes chambres à l'étage, et une suite au rez-de-chaussée avec salle d'eau priv
                          Professionnel Publié aujourd'hui à 08:43 Non géolocalisée
                          Fontcouverte 3 ch
                          • Maison - 95 m² - 5 pièces
                          • Maison - 95 m² - 5 pièces
                          • Maison - 95 m² - 5 pièces
                          • Maison - 95 m² - 5 pièces
                          • Maison - 95 m² - 5 pièces
                          • Maison - 95 m² - 5 pièces Cliquez pour voir les 14 photos

                          Maison - 95 m² - 5 pièces

                          239 000 €
                          Située à seulement 5 minutes du centre-ville de Saintes, cette maison des années 70, parfaitement entretenue et améliorée ces deux dernières années, offre un cadre de vie agréable et fonctionnel, idéal pour une famille ou un premier achat. Élevée sur sous-sol total, elle propose au niveau principal une entrée desservant une cuisine semi-ouverte sur un salon-séjour lumineux, un
                          Professionnel Publié le 04 déc. à 06:57
                          Fontcouverte 3 ch 2 sdb
                          Terrain - 5 454 m²

                          Terrain - 5 454 m²

                          264 000 €
                          A vendre aux portes de Saintes, FONTCOUVERTE- terrain constructible de 5454m2. Terrain plat, offrant de belles possibilités d'aménagement, avec la possibilité de le diviser selon vos projets. Opportunité idéale pour investisseurs, également pour particuliers avec la proximité des écoles. Honoraires à la charge du vendeur. Les informations sur les risques auxquels ce bien est
                          Professionnel Publié le 04 déc. à 05:35 Non géolocalisée
                          Fontcouverte Constructible Parking
                          • Maison - 91 m² - 5 pièces
                          • Maison - 91 m² - 5 pièces
                          • Maison - 91 m² - 5 pièces
                          • Maison - 91 m² - 5 pièces
                          • Maison - 91 m² - 5 pièces
                          • Maison - 91 m² - 5 pièces Cliquez pour voir les 13 photos

                          Maison - 91 m² - 5 pièces

                          198 549 €
                          Maison neuve à construire AMANDIER_3CH_91_V1 Lotissement de 17 parcelles viabilisés tout à le gout eau edf ptt. Secteur très calme Lotissement de 17 parcelles Terrain viabilisé EAU, ELECT TT A L EGOUT PTT. BELLE MAISON DE 3 CHAMBRES Sa forme extérieure en L fait de ce modèle l'allier des terrains pour vous offrir une surface habitable généreuse et des espaces de vies intérie
                          Professionnel Publié il y a plus de 7 jours Non géolocalisée
                          Fontcouverte 3 ch
                          • Maison - 124 m² - 5 pièces
                          • Maison - 124 m² - 5 pièces
                          • Maison - 124 m² - 5 pièces
                          • Maison - 124 m² - 5 pièces
                          • Maison - 124 m² - 5 pièces
                          • Maison - 124 m² - 5 pièces Cliquez pour voir les 18 photos

                          Maison - 124 m² - 5 pièces

                          194 000 €
                          Située sur les hauts de FONTCOUVERTE, cette maison typique des années 1963, construite sur un sous-sol surélevé, offre une base solide et de beaux volumes à moderniser selon vos envies. Avec son architecture traditionnelle et son implantation idéale, elle constitue une opportunité rare pour un projet familial ou un investissement. Située dans un environnement calme ; elle pro
                          Professionnel Publié il y a plus de 7 jours Non géolocalisée
                          Fontcouverte 4 ch 2 sdb Terrasse Balcon Parking
                          • Maison - 79 m² - 5 pièces
                          • Maison - 79 m² - 5 pièces
                          • Maison - 79 m² - 5 pièces
                          • Maison - 79 m² - 5 pièces
                          • Maison - 79 m² - 5 pièces
                          • Maison - 79 m² - 5 pièces Cliquez pour voir les 10 photos

                          Maison - 79 m² - 5 pièces

                          163 605 €
                          Maison neuve à construire MAGNOLIA_3CH_79_V1 Lotissement de 17 parcelles viabilisés tout à le gout eau edf ptt. Secteur très calme Lotissement de 17 parcelles Terrain viabilisé EAU ELECT TT A LE GOUT PTT. BELLE MAISON DE 3 CHAMBRES Cette maison de 3 chambres offre une distribution optimisée des pièces. Ce plan compact et fonctionnel a été pensé pour faciliter l'accès à la pr
                          Professionnel Publié il y a plus de 7 jours Non géolocalisée
                          Fontcouverte 3 ch
                          • Maison - 149 m² - 6 pièces
                          • Maison - 149 m² - 6 pièces
                          • Maison - 149 m² - 6 pièces
                          • Maison - 149 m² - 6 pièces
                          • Maison - 149 m² - 6 pièces
                          • Maison - 149 m² - 6 pièces Cliquez pour voir les 9 photos

                          Maison - 149 m² - 6 pièces

                          257 000 €
                          Située à Fontcouverte (17100), venez découvrir cette belle maison qui bénéficie d'un emplacement tranquille et paisible. À l'extérieur, vous profiterez d'une belle terrasse surplombant le jardin, idéale pour vos repas d'été, le tout est édifié sur un terrain clos et arboré de 2 273 m². L'intérieur de cette maison comprend une pièce de vie spacieuse, une cuisine, un salon avec c
                          Professionnel Publié il y a plus de 7 jours
                          Fontcouverte 3 ch 2 sdb
                          • Maison - 212 m² - 7 pièces
                          • Maison - 212 m² - 7 pièces
                          • Maison - 212 m² - 7 pièces
                          • Maison - 212 m² - 7 pièces
                          • Maison - 212 m² - 7 pièces
                          • Maison - 212 m² - 7 pièces Cliquez pour voir les 9 photos

                          Maison - 212 m² - 7 pièces

                          262 000 €
                          Située dans la commune de Fontcouverte (17100), cette maison bénéficie de la proximité des écoles et des commerces. Son emplacement idéal offre un accès facile à toutes les commodités nécessaires au quotidien (boulangerie, pharmacie. ). De plus, la présence d'une place de parking extérieure et d'un garage ajoute une réelle valeur ajoutée à ce bien. Sur une parcelle de 753 m², c
                          Professionnel Publié il y a plus de 7 jours
                          Fontcouverte 5 ch 2 sdb
                          • Maison - 149 m² - 6 pièces
                          • Maison - 149 m² - 6 pièces
                          • Maison - 149 m² - 6 pièces
                          • Maison - 149 m² - 6 pièces
                          • Maison - 149 m² - 6 pièces
                          • Maison - 149 m² - 6 pièces Cliquez pour voir les 12 photos

                          Maison - 149 m² - 6 pièces

                          259 000 €
                          Je vous propose ce pavillon de 1980 qui offre un cadre de vie agréable sur une belle parcelle de jardin arborée. Dès l'entrée, vous découvrirez une cuisine ouverte dinatoire sur un salon chaleureux équipé d'une cheminée insert, idéal pour les soirées d'hiver. Un vaste séjour complète cet espace convivial. La partie nuit se compose de : Une chambre avec sa salle d'eau privati
                          Professionnel Publié il y a plus de 7 jours Non géolocalisée
                          Fontcouverte 3 ch
                          • Terrain - 1 580 m²
                          • Terrain - 1 580 m²
                          • Terrain - 1 580 m²
                          • Terrain - 1 580 m²
                          • Terrain - 1 580 m²

                          Terrain - 1 580 m²

                          125 000 €
                          Terrain constructible à vendre - Fontcouverte (17) - En exclusivité Venez découvrir ce beau terrain constructible de 1 580 m², situé sur la commune recherchée de Fontcouverte, à seulement 5 minutes du centre-ville de Saintes. Terrain non viabilisé (réseaux à proximité) avec une pente d'environ 15 % orientée Nord-Est, offrant un cadre naturel et paisible. Étude géotechnique G
                          Professionnel Publié il y a plus de 7 jours
                          Fontcouverte Parking
                          • Maison - 166 m² - 7 pièces
                          • Maison - 166 m² - 7 pièces
                          • Maison - 166 m² - 7 pièces
                          • Maison - 166 m² - 7 pièces
                          • Maison - 166 m² - 7 pièces
                          • Maison - 166 m² - 7 pièces Cliquez pour voir les 18 photos

                          Maison - 166 m² - 7 pièces

                          249 100 €
                          Maison familiale, située sur la commune de Fontcouverte, à seulement 5 minutes de Saintes, cette maison des années 70, parfaitement entretenue, offre un cadre de vie agréable et de belles possibilités d'aménagement. Au rez-de-chaussée, une entrée avec couloir desservant une spacieuse et lumineuse pièce de vie, une cuisine indépendante, aménagée et équipée, deux chambres confor
                          Professionnel Publié il y a plus de 7 jours Non géolocalisée
                          Fontcouverte 4 ch 3 sdb Terrasse Balcon Parking
                          • Maison - 69 m² - 3 pièces
                          • Maison - 69 m² - 3 pièces
                          • Maison - 69 m² - 3 pièces
                          • Maison - 69 m² - 3 pièces
                          • Maison - 69 m² - 3 pièces
                          • Maison - 69 m² - 3 pièces Cliquez pour voir les 6 photos

                          Maison - 69 m² - 3 pièces

                          169 000 €
                          Vous arrivez à Fontcouverte, à seulement 5 minutes de Saintes, dans un lieu stratégique vous permettant un accès rapide aux commerces, aux écoles et aux grands axes vers Cognac, Royan ou Bordeaux. En vous approchant, vous découvrez à l'extérieur un jardin prometteur, incluant une section constructible et un vaste espace de stationnement parfaitement dimensionné pour accueillir
                          Professionnel Publié il y a plus de 7 jours
                          Fontcouverte 2 ch 1 sdb Parking
                          • Terrain constructible - 398 m²
                          • Terrain constructible - 398 m²
                          • Terrain constructible - 398 m²

                          Terrain constructible - 398 m²

                          57 000 €
                          Situé dans un environnement résidentiel calme et recherché, ce terrain viabilisé de 398 m², offre un cadre de vie privilégié. L'un de ses principaux atouts est son positionnement en limite de lotissement, avec un seul voisin direct. L'autre côté étant totalement dégagé de toute construction, vous bénéficiez d'une tranquillité rare, d'une belle ouverture et d'une réelle intimité
                          Professionnel Publié il y a plus de 7 jours Non géolocalisée
                          Fontcouverte
                          • Maison - 170 m² - 7 pièces
                          • Maison - 170 m² - 7 pièces
                          • Maison - 170 m² - 7 pièces
                          • Maison - 170 m² - 7 pièces
                          • Maison - 170 m² - 7 pièces
                          • Maison - 170 m² - 7 pièces Cliquez pour voir les 16 photos

                          Maison - 170 m² - 7 pièces

                          345 000 €
                          Iad France - Sébastien Andreo vous propose : Aux portes de Saintes, maison familiale au calme, de plein-pied 170 m² sur terrain clos et arboré de 2500 m² sans vis à vis. Elle est composée d'une entrée avec rangements, une cuisine ouverte sur son séjour de 50 m² lumineux avec un insert bois, poêle à granulée, une salle d'eau, WC, 3 chambres avec rangements, véranda de 28 m² en p
                          Professionnel Publié il y a plus de 7 jours
                          Fontcouverte 5 ch Piscine
                          • Maison - 186 m² - 5 pièces
                          • Maison - 186 m² - 5 pièces
                          • Maison - 186 m² - 5 pièces
                          • Maison - 186 m² - 5 pièces
                          • Maison - 186 m² - 5 pièces
                          • Maison - 186 m² - 5 pièces Cliquez pour voir les 17 photos

                          Maison - 186 m² - 5 pièces

                          388 500 €
                          Exceptionnel, aux portes de Saintes! En exclusivité, Je vous propose à la vente cette charentaise indépendante et entièrement restaurée de 185.5m² habitable. Chai et dépendances, espace piscine et terrain paysager de 1036m² entièrement clos. Vous avez plus de 331m² d'espace de vie, entre les garages, dépendances et autres... Installation de la fibre sur le bien. Elle se co
                          Professionnel Publié il y a plus de 7 jours Non géolocalisée
                          Fontcouverte 3 ch 3 sdb Exposition Sud
                          • Maison - 171 m² - 5 pièces
                          • Maison - 171 m² - 5 pièces
                          • Maison - 171 m² - 5 pièces
                          • Maison - 171 m² - 5 pièces
                          • Maison - 171 m² - 5 pièces
                          • Maison - 171 m² - 5 pièces Cliquez pour voir les 9 photos

                          Maison - 171 m² - 5 pièces

                          298 200 €
                          Située à Fontcouverte (17100), cette maison d'environ 171 m² s'impose dans un quartier paisible offrant une vue dégagée sur les bois environnants. Ce quartier de Fontcouverte présente un cadre de vie tranquille tout en étant proche des commodités essentielles, des écoles et des transports en commun et à 2,7 km du centre ville de Saintes, assurant ainsi un quotidien pratique pou
                          Professionnel Publié il y a plus de 7 jours
                          Fontcouverte 4 ch 2 sdb Terrasse Piscine
                          • Maison ancienne - 114 m² - 5 pièces
                          • Maison ancienne - 114 m² - 5 pièces
                          • Maison ancienne - 114 m² - 5 pièces
                          • Maison ancienne - 114 m² - 5 pièces
                          • Maison ancienne - 114 m² - 5 pièces
                          • Maison ancienne - 114 m² - 5 pièces Cliquez pour voir les 13 photos

                          Maison ancienne - 114 m² - 5 pièces

                          257 000 €
                          FONTCOUVERTE A moins de 5 min de tous commerces maison ancienne rénovée offrant beaucoup de charme et de caractère au sein d'un environnement privilégié comprenant: Entrée, séjour salon avec cuisine ouverte aménagée ouvrant sur une très grande terrasse dont une partie couverte, 4 chambres dont une avec placards, débarras, salle de bains avec douche, wc, buanderie. Garage de plu
                          Professionnel Publié il y a plus de 7 jours Non géolocalisée
                          Fontcouverte 4 ch 1 sdb Terrasse Parking
                          • Maison - 118 m² - 4 pièces
                          • Maison - 118 m² - 4 pièces
                          • Maison - 118 m² - 4 pièces
                          • Maison - 118 m² - 4 pièces
                          • Maison - 118 m² - 4 pièces
                          • Maison - 118 m² - 4 pièces Cliquez pour voir les 19 photos

                          Maison - 118 m² - 4 pièces

                          256 300 €
                          Philippe Baton, votre conseiller immobilier depuis 2007 sur Saintes et les environs vous propose: COUP DE COEUR à 5 MN du centre ville de Saintes sur la commune de FONTCOUVERTE, secteur du GOLF , vous serez immédiatement séduit par l' environnement calme et verdoyant de cette CHARENTAISE parfaitement rénovée, suivie et entretenue bénéficiant d'une TERRASSE de 120 m² (dont 25 m²
                          Professionnel Publié il y a plus de 7 jours
                          Fontcouverte 3 ch 1 sdb Parking Exposition Sud
                          • Maison - 90 m²
                          • Maison - 90 m²
                          • Maison - 90 m²
                          • Maison - 90 m²
                          • Maison - 90 m²
                          • Maison - 90 m² Cliquez pour voir les 15 photos

                          Maison - 90 m²

                          192 300 €
                          "Accueil téléphonique de 8H à 19H du Lundi au Samedi" Terrain disponible sur le secteur de FONTCOUVERTE. Maisons Aliénor vous propose de vous accompagner sur ce projet de construction composé d'un grand séjour lumineux avec de belles ouvertures, d'une cuisine ouverte, d'un espace nuit avec de belles chambres spacieuses, d'une salle de bain entièrement équipée, d'un WC séparé, d
                          Professionnel Publié il y a plus de 7 jours
                          Fontcouverte Neuf
                          • Terrain - 2 000 m²
                          • Terrain - 2 000 m²
                          • Terrain - 2 000 m²
                          • Terrain - 2 000 m²
                          • Terrain - 2 000 m²

                          Terrain - 2 000 m²

                          76 000 €
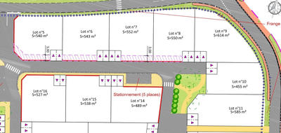
                          Terrain à bâtir de 2000m² sur la commune de Fontcouverte. Le terrain est clos sur 3 cotés et l'accès a été busé. Réseaux à proximité. Emplacement très recherché à quelques minutes du Golf et de la gare de saintes. Calme assuré, car le terrain donne sur une petite voie avec vue sur la vallée boisée. Sondages effectués Points positifs : prix, emplacement
                          Professionnel Publié il y a plus de 7 jours Non géolocalisée
                          Fontcouverte
                          • Terrain - 455 m²
                          • Terrain - 455 m²
                          • Terrain - 455 m²
                          • Terrain - 455 m²
                          • Terrain - 455 m²

                          Terrain - 455 m²

                          46 225 €
                          Aux portes de SAINTES, dans un environnement vert et calme et à 30 minutes des plages, BFG IMMOBILIER présente en exclusivité dans petit lotissement situé à proximité du centre bourg, terrain à bâtir viabilisé avec tout à l'égout, d'une superficie de 455 m2. Lot No 10. Libre de constructeur. Zone UB. Non soumis au DPE.   Les informations sur les risques auxquels ce bien est exp
                          Professionnel Publié il y a plus de 7 jours Non géolocalisée
                          Fontcouverte Parking
                          • Terrain - 585 m²
                          • Terrain - 585 m²
                          • Terrain - 585 m²
                          • Terrain - 585 m²
                          • Terrain - 585 m²

                          Terrain - 585 m²

                          58 575 €
                          Aux portes de SAINTES, dans un environnement vert et calme et à 30 minutes des plages, BFG IMMOBILIER présente en exclusivité dans petit lotissement situé à proximité du centre bourg, terrain à bâtir viabilisé avec tout à l'égout, d'une superficie de 585 m2. Lot No 11. Libre de constructeur. Zone UB. Non soumis au DPE.   Les informations sur les risques auxquels ce bien est exp
                          Professionnel Publié il y a plus de 7 jours Non géolocalisée
                          Fontcouverte Parking
                          • Terrain - 550 m²
                          • Terrain - 550 m²
                          • Terrain - 550 m²
                          • Terrain - 550 m²
                          • Terrain - 550 m²

                          Terrain - 550 m²

                          55 250 €
                          Aux portes de SAINTES, dans un environnement vert et calme et à 30 minutes des plages, BFG IMMOBILIER présente en exclusivité dans petit lotissement situé à proximité du centre bourg, terrain à bâtir viabilisé avec tout à l'égout, d'une superficie de 550 m2. Lot No 8. Libre de constructeur. Zone UB. Non soumis au DPE. Les informations sur les risques auxquels ce bien est expos
                          Professionnel Publié il y a plus de 7 jours Non géolocalisée
                          Fontcouverte Parking
                          • Terrain - 552 m²
                          • Terrain - 552 m²
                          • Terrain - 552 m²
                          • Terrain - 552 m²
                          • Terrain - 552 m²

                          Terrain - 552 m²

                          55 440 €
                          Aux portes de SAINTES, dans un environnement vert et calme et à 30 minutes des plages, BFG IMMOBILIER présente en exclusivité dans petit lotissement situé à proximité du centre bourg, terrain à bâtir viabilisé avec tout à l'égout, d'une superficie de 552 m2. Lot No 7. Libre de constructeur. Zone UB. Non soumis au DPE. Les informations sur les risques auxquels ce bien est expos
                          Professionnel Publié il y a plus de 7 jours Non géolocalisée
                          Fontcouverte Parking
                          2

                          Annonces immobilières à Vénérand

                          (3.7 km)
                          • Maison - 270 m² - 7 pièces
                          • Maison - 270 m² - 7 pièces
                          • Maison - 270 m² - 7 pièces
                          • Maison - 270 m² - 7 pièces
                          • Maison - 270 m² - 7 pièces
                          • Maison - 270 m² - 7 pièces Cliquez pour voir les 22 photos

                          Maison - 270 m² - 7 pièces

                          360 000 €
                          Découvrez cet ensemble immobilier rare à Chaniers, idéal pour un projet familial, un investissement locatif ou une activité touristique. Situé dans un environnement calme et verdoyant à 5 minutes de Saintes, ce bien se compose de trois habitations distinctes, le tout sur un magnifique terrain clos, plat et piscinable de 4788 m² avec portail. Maison principale de 180 m² Cette s
                          Professionnel Publié il y a plus de 7 jours Non géolocalisée
                          Vénérand 6 ch 3 sdb Terrasse Parking Exposition Sud
                          • Maison - 75 m² - 2 pièces
                          • Maison - 75 m² - 2 pièces
                          • Maison - 75 m² - 2 pièces
                          • Maison - 75 m² - 2 pièces
                          • Maison - 75 m² - 2 pièces
                          • Maison - 75 m² - 2 pièces Cliquez pour voir les 22 photos

                          Maison - 75 m² - 2 pièces

                          116 500 €
                          Iad France - Frédéric Schneider vous propose : Charmante Maison Traditionnelle avec Vaste Jardin à Vénérand - Idéal pour les Amateurs d'Histoire et de Nature Nichée dans un cadre bucolique, cette maison mitoyenne de 75 m² sur un grand terrain de 916 m² offre un véritable havre de paix à Vénérand, un village paisible aux portes de la nature préservée. Cette maison comprend 2 gra
                          Professionnel Publié il y a plus de 7 jours
                          Vénérand 1 ch
                          24

                          Annonces immobilières à Bussac-sur-Charente

                          (4.1 km)
                          • Maison - 105 m² - 5 pièces
                          • Maison - 105 m² - 5 pièces
                          • Maison - 105 m² - 5 pièces
                          • Maison - 105 m² - 5 pièces
                          • Maison - 105 m² - 5 pièces
                          • Maison - 105 m² - 5 pièces Cliquez pour voir les 14 photos

                          Maison - 105 m² - 5 pièces

                          218 000 €
                          Iad France - Mélodie Renard vous propose : Située à Bussac à seulement 10 min de Saintes, venez découvrir un petit havre de paix dans le calme de la campagne ! Cette charmante maison de plain pied, se situe sur un grand terrain arboré, avec un petit pré et une ancienne carrière, ce qui en fait un lieu atypique avec beaucoup de charme ! La maison est composée d'une entrée dans l
                          Professionnel Publié il y a plus de 7 jours
                          Bussac-sur-Charente 3 ch Terrasse
                          • Maison - 130 m² - 6 pièces
                          • Maison - 130 m² - 6 pièces
                          • Maison - 130 m² - 6 pièces
                          • Maison - 130 m² - 6 pièces
                          • Maison - 130 m² - 6 pièces
                          • Maison - 130 m² - 6 pièces Cliquez pour voir les 19 photos

                          Maison - 130 m² - 6 pièces

                          320 000 €
                          À vendre – Maison plain-pied 6 pièces (130 m²) – Bussac-sur-Charente, à 5 min de Saintes Sur les hauteurs de Bussac-sur-Charente, dans un environnement calme et verdoyant, découvrez cette belle maison de plain-pied de 130 m², parfaitement entretenue et entourée d'un terrain clos et arboré – la garantie d'un cadre de vie agréable et paisible. Les atouts du bien : - Espace de
                          Professionnel Publié il y a plus de 7 jours Non géolocalisée
                          Bussac-sur-Charente 5 ch 1 sdb Parking
                          • Maison - 160 m² - 6 pièces
                          • Maison - 160 m² - 6 pièces
                          • Maison - 160 m² - 6 pièces
                          • Maison - 160 m² - 6 pièces
                          • Maison - 160 m² - 6 pièces
                          • Maison - 160 m² - 6 pièces Cliquez pour voir les 10 photos

                          Maison - 160 m² - 6 pièces

                          249 000 €
                          Située à Bussac-sur-Charente (17100), à seulement quelques minutes de Saintes et 45mn de Royan. Cette maison en pierre offre un charme unique dans un environnement paisible de la campagne sans être isolé. Elle bénéficie d'un jardin clos et d'une terrasse avec patio pour profiter des beaux jours. Cette charentaise de charme de 160 m² sur un terrain de 400 m² vous offre au rez de
                          Professionnel Publié il y a plus de 7 jours
                          Bussac-sur-Charente 4 ch 2 sdb Terrasse Parking
                          • Terrain - 1 577 m²
                          • Terrain - 1 577 m²
                          • Terrain - 1 577 m²
                          • Terrain - 1 577 m²

                          Terrain - 1 577 m²

                          85 000 €
                          Iad France - Nelly Brunet vous propose : EN EXCLUSIVITÉ ! Situé en plein centre bourg de BUSSAC-SUR-CHARENTE, Venez découvrir ce Terrain à bâtir de 1577 m², non viabilisé, réseaux en bordure de route, tout à l'égout, plat, clôturé, agrémenté d'un hangar et d'un batiment 3 box. Celui-ci peut être vendu en deux parcelles. Pour plus d'information. ou visiter, CONTACTEZ-MOI ! Honor
                          Professionnel Publié il y a plus de 7 jours
                          Bussac-sur-Charente
                          • Maison - 176 m² - 6 pièces
                          • Maison - 176 m² - 6 pièces
                          • Maison - 176 m² - 6 pièces
                          • Maison - 176 m² - 6 pièces
                          • Maison - 176 m² - 6 pièces
                          • Maison - 176 m² - 6 pièces Cliquez pour voir les 13 photos

                          Maison - 176 m² - 6 pièces

                          262 000 €
                          Charmante maison en pierre rénovée à Bussac-sur-Charente, à seulement 10 minutes de Saintes ! Découvrez cette belle opportunité : une maison pleine de caractère offrant 176 m² habitables (211 m² au total) sur un terrain de 788 m². Au rez-de-chaussée : - Vaste salon-salle à manger de 74 m² avec poêle à granulés programmable - Grande cuisine dinatoire de 21 m² - Chambre avec sa
                          Professionnel Publié il y a plus de 7 jours
                          Bussac-sur-Charente 4 ch 2 sdb Parking

                          Toutes les annonces immobilières à Fontcouverte et aux environs. Achat, vente et location d'immobilier à Fontcouverte. Le site immobilier de Fontcouverte.

                          Recherche en cours...
                          Rechercher dans cette zone