• Local d'activités - 980 m²
  • Local d'activités - 980 m²
  • Local d'activités - 980 m²
  • Local d'activités - 980 m²
  • Local d'activités - 980 m²
  • Local d'activités - 980 m²
  • Local d'activités - 980 m²
  • Local d'activités - 980 m²
  • Local d'activités - 980 m²
3 990 € HT / mois
980 m²

Description :

À Louer - Local d'Activité de 980 m² rue Louis Pasteur à Fegersheim
Ce local d'activité de 980 m², offre un emplacement idéal à proximité des axes RD1083 et A35, facilitant l'accès rapide à Strasbourg et aux communes environnantes.
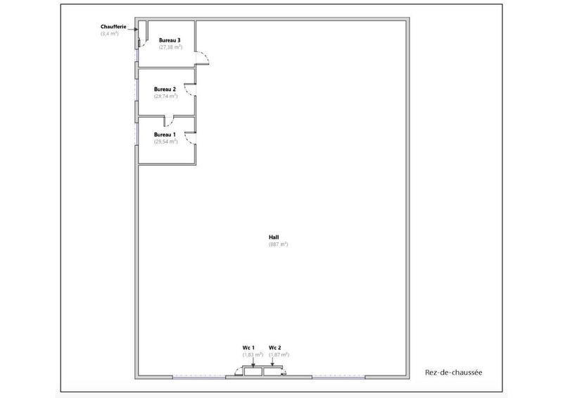
Le local se compose d'un hall de stockage de 910 m², offrant une hauteur sous plafond de 4,2 m, avec une hauteur maximale de 6 m au faîtage.
Il dispose également de 90 m² de bureaux, divisés en trois pièces, avec deux sanitaires séparés et un accès indépendant. Le bâtiment est équipé de deux portes sectionnelles, adaptées aux poids lourds, ainsi qu'un portillon piéton pour un accès sécurisé.
À l'extérieur, vous bénéficiez d'un grand espace de stationnement, permettant de garer plusieurs véhicules.
Le loyer mensuel est de 3 690 € HT, avec 300€ de charges comprenant eau, taxe foncière.
Le local est proposé sous un bail commercial 3/6/9 et est disponible immédiatement.
Ce bien représente une excellente opportunité pour toute activité nécessitant un grand espace fonctionnel et une bonne accessibilité.
Pour toute demande d'information ou visite contactez Maxime Safraoui chez B&H Immobilier au 06 99 20 25 50 ou par mail à maxime.safraoui@bh-immobilier.com

Honoraires de 4 500 € à la charge du locataire. Provision sur charges 300 €/mois, régularisation annuelle. Dépôt de garantie 11 070 €. DPE vierge. Les informations sur les risques auxquels ce bien est exposé sont disponibles sur le site Géorisques : georisques.gouv.fr. Ce bien vous est proposé par un agent commercial (Entreprise individuelle).

Votre conseiller B&H IMMOBILIER : Maxime SAFRAOUI
Agent commercial (Entreprise individuelle)
RSAC 842846214

Afficher plus de détails

Informations sur ce bien :

L'intérieur :

  • 980 m²

L'extérieur :

  • Parking

Autres :

  • Chauffage :
    Individuel, Électrique
  • Année de construction :
    1970
  • Étage :
    RDC
Synthèse
Local d'activités à Fegersheim
3 990 € HT / mois
Surface : 980 m²
Transaction :
Location (locaux professionnels)
Référence :
LP265-BHIMMOBILIER
Charges :
300 €
Informations complémentaires
Les charges sont inclues dans le loyer affiché
Prévisionnelles mensuelles avec régularisation annuelle
Montant de la caution :
11 070 €
Honoraires :
4 500 €
Informations complémentaires
Honoraires hors taxes
Disponibilité :
21/04/2025
Date de publication :
Il y a plus de 7 jours
Local d'activités - 980 m²
Agent
BH IMMOBILIER
BH IMMOBILIER
MAXIME SAFRAOUI
Appeler
Écrire
Mettre en avant cette annonce
Signaler une erreur

Localisation :

L'adresse exacte n'est pas renseignée. Le bien se situe dans cette zone.
Annonces similaires
Annonces immobilières récentes