• Local commercial - 490 m²
  • Local commercial - 490 m²
  • Local commercial - 490 m²
  • Local commercial - 490 m²
4 512 € / mois
490 m²

Description :

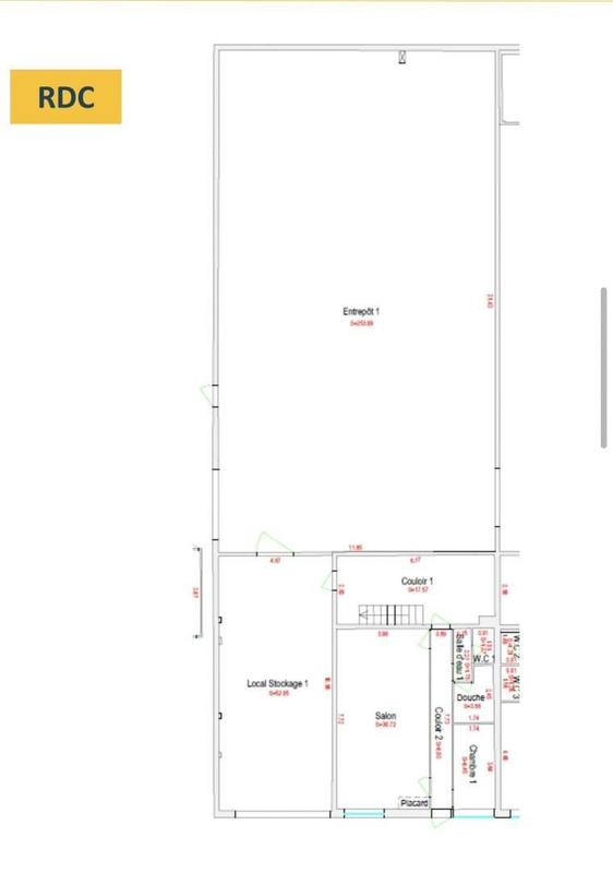
Iad France - Yi Li (06 60 08 96 88) vous propose : LOCATION ENTREPÔT| 490 m² environ |78680 Epône Idéalement situé en zone industrielle stratégique : À 3 minutes de l'autoroute A13 Proche de la zone commerciale de Flins sur Seine Accès facile aux axes logistiques et commerces CARACTÉRISTIQUES PRINCIPALES Surface totale : 490 m² environ Entrepôt : 385 m² environ au sol Mezzanine de stockage : 105 m² environ Bureaux intégrés : 75 m² environ avec sanitaires et kitchenette Hauteur libre sous poutres : 7,8 m Garage spacieux pour manutention avant CONNECTIVITÉ A 30 minutes de La Défense Accès direct à l'autoroute A14 et aux pôles économiques parisiens PARFAIT POUR Sociétés de logistique et transport Entreprises industrielles ou de production Start-ups et TPE recherchant un environnement professionnel dynamique LOYER AVANTAGEUX : 4492 EUROS / mois HT HC Contactez-nous pour une visite ! Une occasion rare dans un secteur très demandé. Information d'affichage énergétique sur le bien associé à cette annonce : DPE NS indice 0 et GES NS indice 0. La présente annonce immobilière a été rédigée sous la responsabilité éditoriale de M. Yi Li (ID 73931), Agent Commercial mandataire en immobilier immatriculé au Registre Spécial des Agents Commerciaux (RSAC) du Tribunal de Commerce de NANTERRE sous le numéro 922290168 Retrouvez tous nos biens sur notre site internet. www.iadfrance.fr.

Afficher plus de détails

Informations sur ce bien :

L'intérieur :

  • 490 m²
    Informations complémentaires
    Surface habitable : 490 m²

Autres :

  • Mitoyenneté :
    Non
Synthèse
Local commercial à Épône
4 512 € / mois
Surface : 490 m²
Transaction :
Location (locaux professionnels)
Référence :
1989911
Charges :
20 €
Informations complémentaires
Les charges sont inclues dans le loyer affiché
Honoraires :
2 400 €
Date de publication :
Aujourd'hui à 08:56
Local commercial - 490 m²
Agent
iad france
iad france
Yi Li
Appeler
Écrire
Mettre en avant cette annonce
Signaler une erreur

Localisation :

L'adresse exacte n'est pas renseignée. Le bien se situe dans cette zone.
Annonces similaires
Annonces immobilières récentes