• Appartement - 46 m² - 2 pièces
  • Appartement - 46 m² - 2 pièces
  • Appartement - 46 m² - 2 pièces
  • Appartement - 46 m² - 2 pièces
  • Appartement - 46 m² - 2 pièces
  • Appartement - 46 m² - 2 pièces
  • Appartement - 46 m² - 2 pièces
232 000 €
46 m²
2 pièces
1 chambre

Description :

Au cœur de l'hypercentre d'Écully, découvrez ce charmant appartement T2 entièrement rénové en 2023. Situé face à l'église, à deux pas du campus et de ses écoles (Écully Campus, Institut Lyfe, Ecole Centrale…), il offre un cadre de vie pratique, moderne et recherché.
Caractéristiques :
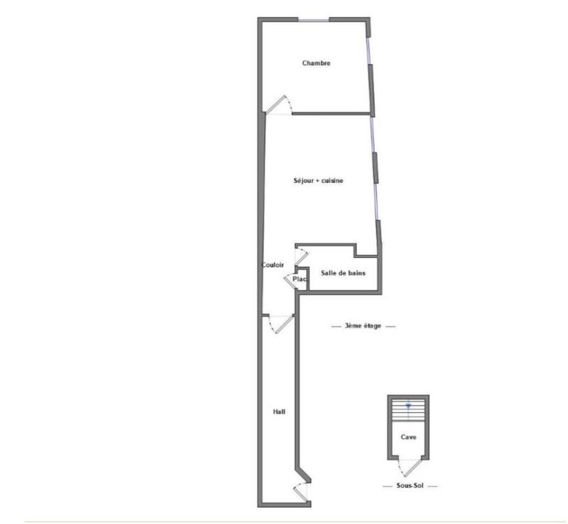
• Type : Appartement T2
• Surface : 46 m2
• Étage : 3
• Rénovation complète : 2023 (factures sur demandes)
• Séjour lumineux avec espace cuisine équipée ultra moderne
• Chambre confortable
• Salle d'eau contemporaine
Localisation idéale :
• Hyper centre d'Écully
• Commerces, transports et services immédiats
• Accès rapide au campus et à ses écoles
• Environnement calme et recherché
On aime :
• La rénovation récente, élégante et fonctionnelle
• La proximité directe avec les écoles et la vie du centre
• Un bien clé en main, parfait pour un étudiant, un jeune actif ou un investissement locatif

• Charges mensuelles : 70 €
• Surface Carrez : 46 m²
• DPE : C (170) GES : B (5)
• Taxe Foncière: 350 €
Référence agence : 2987

Afficher plus de détails

Informations sur ce bien :

L'intérieur :

  • 2 pièces
  • 46 m²
    Informations complémentaires
    Surface habitable : 46 m²
  • 1 Chambre
  • 1 Salle de bain
  • 1 Toilette

Les équipements :

  • Tout à l'égout
  • Double vitrage

Autres :

  • Chauffage :
    Individuel, Électrique
  • État :
    comme neuf
  • Étage :
    3ème étage (dernier)
    Informations complémentaires
    Nombre d'étages de la construction : 3

Copropriété :

  • Charges annuelles :
    840 €
  • Taxe foncière :
    350 €
Synthèse
Appartement à Écully
232 000 €
Surface : 46 m²
Prix au m² : 5 043 €
Transaction :
Achat
Référence :
8UUF-BVL-VMA
Date de publication :
Aujourd'hui à 08:44
Appartement - 46 m² - 2 pièces
Performance énergétique
A
B
C
D
E
F
G
Gaz à effet de serre
A
B
C
D
E
F
G
Agent
Latitude 45 Immobilier
Latitude 45 Immobilier
Appeler
Écrire
Mettre en avant cette annonce
Signaler une erreur

Localisation :

L'adresse exacte n'est pas renseignée. Le bien se situe dans cette zone.

Performance énergétique :

Logement économe
A
B
C
111 à 180
kWh/m²/an
≤ 6
kg CO₂/m²/an
D
E
F
G
Logement énergivore
Faible émission de CO₂
A
≤ 6
kg CO₂/m²/an
B
C
D
E
F
G
Forte émission de CO₂
Date du diagnostic : 07 décembre 2023
Annonces similaires
Annonces immobilières récentes