Retour
Rechercher
Lieu
Où ?
    Type de bien
    Quel type de projet ?
    Particulier Entreprise
    Quel type de bien ?
        Prix
        Quel budget ?
              Surface
              Quelle surface ?
                    Pièces
                    Combien de pièces ?
                      Combien de chambres ?
                          1

                          Vente de terrain à Cressin-Rochefort

                          Recherche 1
                          Carte
                          • Terrain - 4 057 m²
                          • Terrain - 4 057 m²
                          • Terrain - 4 057 m²
                          • Terrain - 4 057 m²
                          • Terrain - 4 057 m²
                          • Terrain - 4 057 m² Cliquez pour voir les 12 photos

                          Terrain - 4 057 m²

                          250 000 €
                          Iad France - Francois Haegelin vous propose : Superbe Terrain à Bâtir de 4 057 m² dont 2 500 m² constructibles – Cressin-Rochefort, exposition Sud-Est * Retrouvez l’intégralité des photos sur mon site professionnel : François Haegelin – iad France * Rare opportunité au cOEur du village de Cressin-Rochefort, ce terrain à bâtir d’une superficie totale de 4 057 m², dont 2 500 m² c
                          Professionnel Publié il y a plus de 7 jours
                          Cressin-Rochefort
                          2

                          Ventes de terrains à Massignieu-de-Rives

                          (3.1 km)
                          • Terrain constructible - 1 000 m²
                          • Terrain constructible - 1 000 m²
                          • Terrain constructible - 1 000 m²

                          Terrain constructible - 1 000 m²

                          136 000 €
                          Magnifique terrain à vendre ? Massignieu-de-Rives ? A saisir ! Superbe terrain de 1000 m², idéalement situé dans la charmante commune de Massignieu-de-Rives, à proximité de toutes les commodités. Libre de construction : réalisez le projet de votre choix. Viabilité au bord du terrain : raccordements facilement accessibles. Environnement calme : cadre paisible, idéal pour une
                          Professionnel Publié il y a plus de 7 jours
                          Massignieu-de-Rives
                          • Terrain - 1 000 m²
                          • Terrain - 1 000 m²
                          • Terrain - 1 000 m²
                          • Terrain - 1 000 m²
                          • Terrain - 1 000 m²

                          Terrain - 1 000 m²

                          136 000 €
                          À VENDRE TRÈS BEAU TERRAIN CONSTRUCTIBLE situé sur la Commune de Massignieu de Rives Terrain entièrement constructible, très bonne exposition Sud Est, Sud Ouest, bon ensoleillement, situé dans un secteur très calme, hors lotissement. Les réseaux eaux usées, eaux pluviales, eau potable, EDF, Télécom sont en bordure de terrain, le coffret EDF est déjà existant ainsi que le regard
                          Professionnel Publié il y a plus de 7 jours
                          Massignieu-de-Rives
                          1

                          Vente de terrain à Chanaz

                          (3.6 km)
                          • Terrain - 597 m²
                          • Terrain - 597 m²
                          • Terrain - 597 m²
                          • Terrain - 597 m²

                          Terrain - 597 m²

                          89 900 €
                          Au cœur du charmant village de Chanaz, venez découvrir ce beau terrain de 597 m² offrant un cadre de vie paisible et verdoyant, idéal pour implanter votre future résidence principale ou secondaire. Situé dans un environnement champêtre tout en restant à proximité du centre et des commodités, il permet de concilier confort de vie et sérénité au quotidien.​ La parcelle bénéficie
                          Professionnel Publié il y a plus de 7 jours Non géolocalisée
                          Chanaz
                          2

                          Ventes de terrains à Lucey

                          (3.7 km)
                          • Terrain - 1 514 m²
                          • Terrain - 1 514 m²
                          • Terrain - 1 514 m²
                          • Terrain - 1 514 m²
                          • Terrain - 1 514 m²
                          • Terrain - 1 514 m² Cliquez pour voir les 7 photos

                          Terrain - 1 514 m²

                          140 000 €
                          Terrain constructible de 1514 m² à Lucey Cadre idyllique pour une vie de famille, à deux pas de l'école. Vous recherchez un lieu paisible, lumineux et proche de la nature pour construire votre futur chez-vous ? Ce terrain est une véritable invitation à la douceur de vivre. Situé dans un hameau en hauteur au-dessus du village de Lucey, ce terrain de 1514 m² est totalement constr
                          Professionnel Publié il y a plus de 7 jours
                          Lucey Parking
                          • Terrain - 1 514 m²
                          • Terrain - 1 514 m²
                          • Terrain - 1 514 m²
                          • Terrain - 1 514 m²

                          Terrain - 1 514 m²

                          140 000 €
                          Très beau terrain constructible d' environ 1514 m² sur la Commune de Lucey. Le terrain est déjà fermé sur deux côtés, il a une légère pente côté Est. Très bonne exposition Sud, Sud Ouest, bon ensoleillement, peu de vis à vis. Les réseaux eau potable, EDF, Télécom sont situés en bordure de route. Assainissement individuel à réaliser. Situé dans un secteur très calme. À 10 mn de
                          Professionnel Publié il y a plus de 7 jours
                          Lucey Exposition Sud
                          3

                          Ventes de terrains à Saint-Pierre-de-Curtille

                          (3.8 km)
                          • Terrain - 791 m²
                          • Terrain - 791 m²
                          • Terrain - 791 m²
                          • Terrain - 791 m²

                          Terrain - 791 m²

                          105 000 €
                          Situé à Saint-Pierre-de-Curtille (73310), à 5 minutes du Lac du Bourget, de la plage et du port de Conjux, 55 minutes d'Annecy et à 30 minutes d'Aix les Bains, dans un environnement calme et verdoyant, belle exposition Sud / Est, vue dégagée, ce terrain bénéficie d'un emplacement paisible et attrayant. D'une surface de 791 m², ce terrain présente une belle opportunité de constr
                          Professionnel Publié il y a plus de 7 jours
                          Saint-Pierre-de-Curtille
                          • Terrain - 1 275 m²
                          • Terrain - 1 275 m²
                          • Terrain - 1 275 m²
                          • Terrain - 1 275 m²
                          • Terrain - 1 275 m²
                          • Terrain - 1 275 m² Cliquez pour voir les 6 photos

                          Terrain - 1 275 m²

                          130 000 €
                          Iad France - Christophe Lorenzelli vous propose : Vue dominante et dégagée pour ce superbe terrain à bâtir de 1 275 m², en exclusivité, à seulement 3 km du Lac du Bourget, du port et de la plage. Exposition sud-est - viabilités à proximité. Honoraires d'agence à la charge du vendeur. Bien non soumis au DPE. Les informations sur les risques auxquels ce bien est exposé, y compris
                          Professionnel Publié il y a plus de 7 jours
                          Saint-Pierre-de-Curtille
                          • Terrain - 1 078 m²
                          • Terrain - 1 078 m²
                          • Terrain - 1 078 m²
                          • Terrain - 1 078 m²
                          • Terrain - 1 078 m²
                          • Terrain - 1 078 m² Cliquez pour voir les 6 photos

                          Terrain - 1 078 m²

                          130 000 €
                          Iad France - Christophe Lorenzelli vous propose : Terrain à bâtir de 1078 m² - Proche Lac du Bourget Découvrez ce magnifique terrain à bâtir de 1078 m², idéalement situé dans un secteur calme et résidentiel. Avec sa double orientation sud et ouest, vous profiterez d'un ensoleillement optimal tout au long de la journée. Caractéristiques principales : - À seulement 4,3 km du lac
                          Professionnel Publié il y a plus de 7 jours
                          Saint-Pierre-de-Curtille
                          2

                          Ventes de terrains à Conjux

                          (4.6 km)
                          • Terrain - 791 m²
                          • Terrain - 791 m²
                          • Terrain - 791 m²
                          • Terrain - 791 m²

                          Terrain - 791 m²

                          105 000 €
                          Iad France - Christophe Lorenzelli vous propose : Terrain à bâtir de 791 m² Vue dégagée - viabilités à proximité - 4km du Lac du Bourget, port et plage de Conjux Honoraires d'agence à la charge du vendeur. Bien non soumis au DPE. Les informations sur les risques auxquels ce bien est exposé, y compris l'obligation légale de débroussaillement, sont disponibles sur le site Géorisq
                          Professionnel Publié il y a plus de 7 jours
                          Conjux
                          • Terrain - 758 m²
                          • Terrain - 758 m²
                          • Terrain - 758 m²
                          • Terrain - 758 m²
                          • Terrain - 758 m²
                          • Terrain - 758 m² Cliquez pour voir les 7 photos

                          Terrain - 758 m²

                          91 500 €
                          CONJUX, terrain à bâtir de 758 m². Parcelle de terrain à bâtir de 758m² dans un secteur calme et résidentiel. Ce terrain constructible se situe dans un hameau sur les hauteurs de Conjux, profitant d'une très belle exposition, orientée à l'ouest. Viabilités proches du terrain. Terrain vendu libre constructeur. Pour plus d'informations contactez :  Contact : Aubin RICHARD / T
                          Professionnel Publié il y a plus de 7 jours
                          Conjux Constructible Parking
                          1

                          Vente de terrain à Vongnes

                          (4.7 km)
                          • Terrain - 2 577 m²
                          • Terrain - 2 577 m²
                          • Terrain - 2 577 m²

                          Terrain - 2 577 m²

                          110 000 €
                          Venez découvrir ce magnifique terrain à bâtir de 2577 m², situé dans le charmant village de Vongnes (01350). Avec sa topographie plate, ce terrain est parfait pour construire votre future maison selon vos envies. Vous pourrez profiter d'une vue imprenable sur la campagne environnante ainsi que sur les montagnes, notamment le célèbre Colombier. Le terrain est idéalement situé à
                          Professionnel Publié il y a plus de 7 jours
                          Vongnes Parking
                          1

                          Vente de terrain à Jongieux

                          (5.6 km)
                          • Terrain - 736 m²
                          • Terrain - 736 m²
                          • Terrain - 736 m²

                          Terrain - 736 m²

                          110 000 €
                          A 5 min de YENNE, sur la charmante commune de JONGIEUX, terrain à bâtir d'environ 736 m2 offrant une très belle vue. Libre constructeur Hors lotissement Viabilités à proximité Assainissement collectif. Environnement privilégié, calme et recherché. Rare à la vente ! « Les informations sur les risques auxquels ce bien est exposé sont disponibles sur le site Géorisques : www.geo
                          Professionnel Publié il y a plus de 7 jours Non géolocalisée
                          Jongieux Constructible Parking
                          24

                          Ventes de terrains à Belley

                          (6.4 km)
                          Terrain constructible - 315 m²

                          Terrain constructible - 315 m²

                          17 500 €
                          Situé à Belley (01300), ce terrain à bâtir d'environ 315m² offre une occasion exceptionnelle d'investir dans une charmante commune dynamique de l'Ain. Sa situation à l'entrée Sud de Belley lui confère un accès aisé et rapide aux axes routiers principaux, facilitant ainsi vos déplacements. Ce terrain est en cours d'étude de bornage, prêt à accueillir votre futur projet immobili
                          Professionnel Publié il y a plus de 7 jours
                          Belley
                          • Terrain constructible - 5 047 m²
                          • Terrain constructible - 5 047 m²

                          Terrain constructible - 5 047 m²

                          139 000 €
                          Situé stratégiquement à Belley, dans le secteur de La Pélissière, ce terrain en zone UX offre une opportunité idéale pour le développement d'activités artisanales, industrielles ou commerciales. Accès direct aux grands axes routiers, facilitant le transport et la logistique. Terrain adapté à divers projets professionnels grâce à son classement en zone UX. Situé dans un secte
                          Professionnel Publié il y a plus de 7 jours
                          Belley
                          Terrain constructible - 1 250 m²

                          Terrain constructible - 1 250 m²

                          80 000 €
                          Situé stratégiquement à Belley, dans le secteur de La Pélissière, ce terrain en zone UX offre une opportunité idéale pour le développement d'activités artisanales, industrielles ou commerciales. Accès direct aux grands axes routiers, facilitant le transport et la logistique. Terrain en cours de bornage adapté à divers projets professionnels grâce à son classement en zone UX.
                          Professionnel Publié il y a plus de 7 jours
                          Belley
                          Terrain constructible - 2 736 m²

                          Terrain constructible - 2 736 m²

                          149 000 €
                          Situé à l'entrée sud de la charmante ville de Belley, proche des commodités locales, des écoles et des commerces, il combine parfaitement la tranquillité d'une belle campagne avec la praticité de la vie citadine. Les résidents pourront profiter des bords de Rhône à proximité, ainsi que des diverses activités proposées dans cette région historique de l'Ain. Avec une superficie
                          Professionnel Publié il y a plus de 7 jours
                          Belley
                          Terrain constructible - 902 m²

                          Terrain constructible - 902 m²

                          99 000 €
                          Magnifique terrain situé à Belley, dans un secteur recherché. Libre de constructeur, ce terrain de 902 m² offre une belle opportunité pour concrétiser votre projet immobilier selon vos envies ! Emplacement idéal, à proximité des commerces, des écoles et d'un cadre de vie agréable. Environnement calme et verdoyant, parfait pour une future construction. Terrain viabilisé. Accè
                          Professionnel Publié il y a plus de 7 jours
                          Belley
                          1

                          Vente de terrain à Ceyzérieu

                          (6.6 km)
                          • Terrain - 1 780 m²
                          • Terrain - 1 780 m²
                          • Terrain - 1 780 m²
                          • Terrain - 1 780 m²
                          • Terrain - 1 780 m²
                          • Terrain - 1 780 m² Cliquez pour voir les 6 photos

                          Terrain - 1 780 m²

                          79 000 €
                          EXCLUSIVITÉ – OPPORTUNITÉ À SAISIR – TERRAIN CONSTRUCTIBLE À CEYZERIEU (01350) – 1 775 M² – PERMIS DE CONSTRUIRE VALIDE EffiCity, l'agence qui estime votre bien en ligne, Elise Lemonnier et Dominique Tirard-Collet vous présentent en exclusivité un terrain rare de 1 775 m², idéalement situé sur la commune recherchée de Ceyzérieu, au calme du lieudit “Ardosset”. Ses atouts : 3
                          Professionnel Publié il y a plus de 7 jours
                          Ceyzérieu
                          4

                          Ventes de terrains à Chazey-Bons

                          (6.8 km)
                          • Terrain - 605 m²
                          • Terrain - 605 m²
                          • Terrain - 605 m²
                          • Terrain - 605 m²
                          • Terrain - 605 m²
                          • Terrain - 605 m² Cliquez pour voir les 21 photos

                          Terrain - 605 m²

                          54 000 €
                          Iad France - Gilles Rotger vous propose : * Terrain 605 m² avec projet de maison étudié sur CHAZEY-BONS * Opportunité rare sur la commune de Chazey-Bons. Terrain constructible de 605 m² situé dans un environnement calme et verdoyant, en bordure du Furan, tout en bénéficiant de la proximité des commerces, écoles et axes principaux. Belle exposition Est / Sud / Ouest offrant une
                          Professionnel Publié il y a plus de 7 jours
                          Chazey-Bons
                          • Terrain - 764 m²
                          • Terrain - 764 m²
                          • Terrain - 764 m²

                          Terrain - 764 m²

                          82 500 €
                          Situé à proximité immédiate de Belley, ce terrain constructible de 764 m², parfaitement plat, offre un environnement calme et agréable. Les viabilités (eau, électricité, fibre optique et raccordement au tout-à-l'égout) se trouvent en bordure de parcelle. Hors lotissement, il bénéficie d'un accès rapide à toutes les commodités, à seulement 3 minutes des centres commerciaux et du
                          Professionnel Publié il y a plus de 7 jours
                          Chazey-Bons Parking
                          • Terrain - 735 m²
                          • Terrain - 735 m²
                          • Terrain - 735 m²

                          Terrain - 735 m²

                          79 000 €
                          Situé à proximité immédiate de Belley, ce terrain constructible de 735 m², parfaitement plat, offre un environnement calme et agréable. Les viabilités (eau, électricité, fibre optique et raccordement au tout-à-l'égout) se trouvent en bordure de parcelle. Hors lotissement, il bénéficie d'un accès rapide à toutes les commodités, à seulement 3 minutes des centres commerciaux et du
                          Professionnel Publié il y a plus de 7 jours
                          Chazey-Bons Parking
                          • Terrain - 823 m²
                          • Terrain - 823 m²
                          • Terrain - 823 m²
                          • Terrain - 823 m²

                          Terrain - 823 m²

                          108 000 €
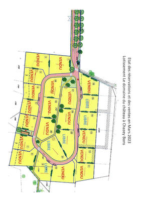
                          Votre agence IMMO CONNECTION vous propose à la vente ce terrain viabilisé de 823 m2 dans un lotissement haut de gamme 'Domaine du chateau' sur la commune de Chazey bons à 3min du centre ville de Belley. Terrain viabilisé et libre de tout constructeur. Alors n'hésitez plus et contacter IMMO CONNECTION pour organiser une visite ! Les honoraires sont à la charge vendeur. Les infor
                          Professionnel Publié il y a plus de 7 jours Non géolocalisée
                          Chazey-Bons Constructible Parking
                          1

                          Vente de terrain à Cuzieu

                          (7.3 km)
                          • Terrain - 1 212 m²
                          • Terrain - 1 212 m²
                          • Terrain - 1 212 m²

                          Terrain - 1 212 m²

                          107 500 €
                          Jolie parcelle de terrain à construire située à seulement 7 kms du centre-ville de Belley et 4.5 kms des premières commodités. Sa surface représente 1200 m². Le terrain est entièrement viabilisé. Présence sur place de tous les réseaux: eau, électricité, assainissement collectif et télécom. Dans un environnement calme, champêtre et bien exposé avec une entrée sur la parcelle cot
                          Professionnel Publié il y a plus de 7 jours
                          Cuzieu Parking
                          1

                          Vente de terrain à Chindrieux

                          (8.1 km)
                          • Terrain - 760 m²
                          • Terrain - 760 m²
                          • Terrain - 760 m²
                          • Terrain - 760 m²
                          • Terrain - 760 m²
                          • Terrain - 760 m² Cliquez pour voir les 7 photos

                          Terrain - 760 m²

                          160 000 €
                          Sur la Commune de Chindrieux (73310), en Chautagne (Savoie), dans un environnement calme et agréable sur les hauteurs du village, nous vous proposons ce beau terrain constructible de 760m², libre constructeur et hors lotissement, offrant une belle vue dégagée sur le Lac du Bourget, les marais de Chautagne, le col du Grand-Colombier, et le col du Sapenay.   Cette parcelle de ter
                          Professionnel Publié il y a plus de 7 jours
                          Chindrieux Constructible Parking
                          1

                          Vente de terrain à Yenne

                          (8.7 km)
                          • Terrain - 1 514 m²
                          • Terrain - 1 514 m²
                          • Terrain - 1 514 m²
                          • Terrain - 1 514 m²
                          • Terrain - 1 514 m²
                          • Terrain - 1 514 m² Cliquez pour voir les 7 photos

                          Terrain - 1 514 m²

                          140 000 €
                          Terrain constructible de 1514 m² à Lucey Cadre idyllique pour une vie de famille, à deux pas de l'école. Vous recherchez un lieu paisible, lumineux et proche de la nature pour construire votre futur chez-vous ? Ce terrain est une véritable invitation à la douceur de vivre. Situé dans un hameau en hauteur au-dessus du village de Lucey, ce terrain de 1514 m² est totalement cons
                          Professionnel Publié il y a plus de 7 jours Non géolocalisée
                          Yenne
                          1

                          Vente de terrain à Brens

                          (8.8 km)
                          • Terrain - 700 m²
                          • Terrain - 700 m²

                          Terrain - 700 m²

                          80 000 €
                          À découvrir, sur Brens, secteur attrayant et recheché. Joli terrain plat, enièrement clos avec protail, au calme. La viabilisation est à prévoir. Parcelle d'environ 700 m² à voir après bornage. Contact au 06 25 76 33 47. (gedeon_90740_30062085)
                          Professionnel Publié il y a plus de 7 jours Non géolocalisée
                          Brens Parking
                          1

                          Vente de terrain à Ruffieux

                          (9.6 km)
                          • Terrain - 2 102 m²
                          • Terrain - 2 102 m²
                          • Terrain - 2 102 m²

                          Terrain - 2 102 m²

                          119 000 €
                          Ruffieux, uniquement dans votre agence bilier, Terrain de 2102m². Environ 1500m² de constructible et 600m² en zone agricole Accès par le haut, réseaux en bordure du terrain, pas d'emprise au sol réglementée. Possibilité de division sous condition de créer un accès commun (permis d'aménager). Pour toute information complémentaire ou pour organiser une visite, veuillez contacte
                          Professionnel Publié il y a plus de 7 jours Non géolocalisée
                          Ruffieux
                          1

                          Vente de terrain à Contrevoz

                          (10.8 km)
                          • Terrain - 779 m²
                          • Terrain - 779 m²
                          • Terrain - 779 m²
                          • Terrain - 779 m²

                          Terrain - 779 m²

                          60 000 €
                          À vendre - Terrain avec vue dégagée à ContrevozSitué dans le village apprécié de Contrevoz, disposant d'une école, d'un ramassage scolaire et d'un commerce de proximité, à seulement 8 km de Belley, ce joli terrain de 779 m² vous séduira par sa vue imprenable sur les massifs montagneux et le charme du vieux village. Son exposition et son accès permettent une entrée par le nord,
                          Professionnel Publié il y a plus de 7 jours
                          Contrevoz Parking
                          3

                          Ventes de terrains à Artemare

                          (11.7 km)
                          • Terrain - 1 289 m²
                          • Terrain - 1 289 m²
                          • Terrain - 1 289 m²
                          • Terrain - 1 289 m²

                          Terrain - 1 289 m²

                          82 000 €
                          À vendre très beau terrain constructible de 1289 m² sur la Commune d'Artemare. Terrain provenant d'une division parcellaire, ce lot est situé à l'ouest de la parcelle. Les réseaux eau potable, eaux usées, EDF, Télécom sont en bordure de voie communale. Très bonne exposition Est, Sud et Ouest, secteur calme, bon ensoleillement. Possibilité d'acquérir l'ensemble de la parcelle af
                          Professionnel Publié il y a plus de 7 jours
                          Artemare
                          • Terrain - 1 289 m²
                          • Terrain - 1 289 m²
                          • Terrain - 1 289 m²
                          • Terrain - 1 289 m²

                          Terrain - 1 289 m²

                          82 000 €
                          À vendre très beau terrain constructible de 1289 m² situé sur la Commune d'Artemare. Terrain provenant d'une division parcellaire, ce lot est situé à l'Est de la parcelle. Les réseaux eau potable, eaux usées, EDF, Télécom, assainissement sont situés en bordure de voie communale. Ce terrain a une très bonne exposition Est, Sud et Ouest. Il est situé dans un secteur très calme et
                          Professionnel Publié il y a plus de 7 jours
                          Artemare
                          • Terrain - 1 289 m²
                          • Terrain - 1 289 m²
                          • Terrain - 1 289 m²

                          Terrain - 1 289 m²

                          82 000 €
                          Hypercentre d'Artemare, Vous disposerez d'une parcelle constructible de 1289 m2 Lot B. Viabilité en bord de route. Libre constructeur. Terrain bien exposé. Pour organiser une visite de ce terrain, votre agence Immo Connection se tient à votre disposition. Honoraires à la charge vendeur. Pour plus de renseignements contacter Mr SERPINET Jimmy 06 72 25 06 65 Cette annonce vous es
                          Professionnel Publié il y a plus de 7 jours Non géolocalisée
                          Artemare Parking

                          Achat d'un terrain à Cressin-Rochefort. Toutes les ventes immobilières à Cressin-Rochefort et aux environs. Terrain à vendre.

                          Recherche en cours...
                          Rechercher dans cette zone