Retour
Rechercher
Lieu
Où ?
    Type de bien
    Quel type de projet ?
    Particulier Entreprise
    Quel type de bien ?
        Prix
        Quel budget ?
              Surface
              Quelle surface ?
                    Pièces
                    Combien de pièces ?
                      Combien de chambres ?
                          1

                          Vente de bien immobilier pour professionels à Coudekerque-Branche

                          Recherche 1
                          Carte
                          • Local commercial - 49 m²
                          • Local commercial - 49 m²
                          • Local commercial - 49 m²
                          • Local commercial - 49 m²
                          • Local commercial - 49 m²

                          Local commercial - 49 m²

                          79 500 €
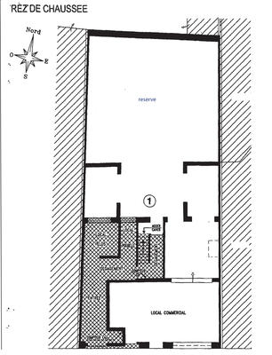
                          Local commercial de 48 m² environ dans un petit immeuble au rez-de-chaussée, comprenant accueil, WC, pièce d'environ 17,75m², pièce avec point eau et ballon eau chaude, une avancée (avec point eau et évier) petite cour. Vitrine sécurisée. Pas de charges de copropriété. Valeur locative 600 ¤/ mois
                          Professionnel Publié il y a plus de 7 jours Non géolocalisée
                          Coudekerque-Branche Parking
                          43

                          Ventes de biens immobiliers pour professionels à Dunkerque

                          (2.5 km)
                          • Local commercial - 85 m² - 4 pièces
                          • Local commercial - 85 m² - 4 pièces
                          • Local commercial - 85 m² - 4 pièces
                          • Local commercial - 85 m² - 4 pièces
                          • Local commercial - 85 m² - 4 pièces
                          • Local commercial - 85 m² - 4 pièces Cliquez pour voir les 13 photos

                          Local commercial - 85 m² - 4 pièces

                          53 333 €
                          À découvrir un superbe fond de commerce Friterie / snacking, avec notoriété reconnue situé à Dunkerque Idéalement situé sur un axe passant proche de tous les commerces de proximité et de l accès autoroutier A16 qui dessert calais / dunkerque Le fond de commerce propose 85 m² de surface commerciale modulable bien pensée pour un travail efficace et optimisé une belle surface d ac
                          Professionnel Publié il y a plus de 7 jours
                          Dunkerque Parking
                          • Local commercial - 41 m² - 2 pièces
                          • Local commercial - 41 m² - 2 pièces
                          • Local commercial - 41 m² - 2 pièces
                          • Local commercial - 41 m² - 2 pièces

                          Local commercial - 41 m² - 2 pièces

                          87 200 €
                          VACHERAND IMMOBILIER DUNKERQUE vous propose à la vente ce local commercial situé au centre ville de DUNKERQUE. Au Rdc d'une petite copropriété il a une surface totale de 41 m². Composé d'une partie commerce d'environ 21m² et d'une partie réserve en sous-sol de 20m² avec WC. Le tout est en bon état, le locataire actuel a donné congé, son départ est prévu au 1er mai, le local se
                          Professionnel Publié il y a plus de 7 jours
                          Dunkerque Parking
                          • Local commercial - 42 m² - 2 pièces
                          • Local commercial - 42 m² - 2 pièces
                          • Local commercial - 42 m² - 2 pièces

                          Local commercial - 42 m² - 2 pièces

                          121 325 €
                          Local de 42.49 m² idéal pour professions libérales ou bureaux . Il comprend 2 pièces ''bureaux'' avec une belle hauteur sous plafond et parquet ainsi qu' une réserve . Local équipé d un système alarme ,fibre. Bien en copropriété de 2 lots . Charges de copropriété : 50 ¤ / mois (eau et chauffage inclus ) .Syndic bénévole . Pas de procédure en cours.
                          Professionnel Publié il y a plus de 7 jours Non géolocalisée
                          Dunkerque Parking
                          • Local commercial - 150 m²
                          • Local commercial - 150 m²
                          • Local commercial - 150 m²
                          • Local commercial - 150 m²
                          • Local commercial - 150 m²
                          • Local commercial - 150 m² Cliquez pour voir les 14 photos

                          Local commercial - 150 m²

                          88 000 €
                          Matthieu Duriez de SAFTI vous invite à découvrir fond de commerce avec beaucoup de potentiels à développer. Très bien situé sur la ville en plein essor de Dunkerque, à proximité du centre ville, des infrastructures et du Port, son emplacement de 1er ordre est son atout majeur. Parfaitement entretenu, il génère déjà un chiffre d'affaire constant d'année en année. Il bénéficie d'
                          Professionnel Publié il y a plus de 7 jours
                          Dunkerque Terrasse
                          • Entrepôt - 1 600 m²
                          • Entrepôt - 1 600 m²
                          • Entrepôt - 1 600 m²
                          • Entrepôt - 1 600 m²
                          • Entrepôt - 1 600 m²
                          • Entrepôt - 1 600 m² Cliquez pour voir les 9 photos

                          Entrepôt - 1 600 m²

                          1 050 000 €
                          Implanté au coeur de la zone industrielle de Petite-Synthe, cet entrepôt de 1600 m2 sur une parcelle de 3638 m2 représente une opportunité idéale pour toute entreprise à la recherche d'un site fonctionnel et visible. Le bâtiment se compose de 1400 m2 d'entrepôt, offrant de grands volumes adaptés au stockage, à la logistique ou à la production et de 200 m2 de bureaux permettant
                          Professionnel Publié il y a plus de 7 jours Non géolocalisée
                          Dunkerque Parking
                          3

                          Ventes de biens immobiliers pour professionels à Téteghem

                          (3 km)
                          • Local commercial - 429 m²
                          • Local commercial - 429 m²
                          • Local commercial - 429 m²
                          • Local commercial - 429 m²
                          • Local commercial - 429 m²
                          • Local commercial - 429 m² Cliquez pour voir les 16 photos

                          Local commercial - 429 m²

                          409 500 €
                          Découvrez à la vente, cet ensemble immobilier à usage commerial et d'habitation. Il comprend un ancien restaurant ainsi qu'un appartement au rez-de-chaussée, offrant une surface totale de 429.5 m2. Idéalement situé à Téteghem-Coudekerque-Village, ce bien béneficie d'un emplacement stratégique, à proximité immédiate de Bergues et Dunkerque, et offrant un accès rapide vers Lille.
                          Professionnel Publié il y a plus de 7 jours Non géolocalisée
                          Téteghem Parking
                          Local commercial - 430 m²

                          Local commercial - 430 m²

                          410 800 €
                          Ensemble immobilier d'env. 430 m² en rdc. Surface avec grande cuisine professionnelle, normes PMR, bureau accueil, différentes pièces de réception, ainsi qu'un appartement avec jardin. Beaucoup de possibilités professionnelles ou commerciales pour ce bien. Prix net vendeur 395.000 ¤. Commission charge acquéreur 4% TTC.
                          Professionnel Publié il y a plus de 7 jours Non géolocalisée
                          Téteghem Parking
                          • Local d'activité / Entrepôt - 1 870 m²
                          • Local d'activité / Entrepôt - 1 870 m²
                          • Local d'activité / Entrepôt - 1 870 m²
                          • Local d'activité / Entrepôt - 1 870 m²
                          • Local d'activité / Entrepôt - 1 870 m²
                          • Local d'activité / Entrepôt - 1 870 m² Cliquez pour voir les 17 photos

                          Local d'activité / Entrepôt - 1 870 m²

                          1 575 000 €
                          Local professionnel comprenant une partie Hangar/Atelier de plus de 1400m² et des bureaux attenants de plus de 500m². Situé dans la zone d'activité du chapeau rouge à Téteghem. Vous serez à proximité de l'axe autoroutier de l'A16. Le hangar est composé de 7 portes sectionnelles donc 1 avec passage très large (6 mètres par 7 mètres), de 4 ponts de levage dont 2 de 10 tonnes e
                          Professionnel Publié il y a plus de 7 jours Non géolocalisée
                          Téteghem Parking
                          1

                          Vente de bien immobilier pour professionels à Bergues

                          (5.8 km)
                          • Entrepôt - 24 256 m² - 50 pièces
                          • Entrepôt - 24 256 m² - 50 pièces
                          • Entrepôt - 24 256 m² - 50 pièces
                          • Entrepôt - 24 256 m² - 50 pièces
                          • Entrepôt - 24 256 m² - 50 pièces
                          • Entrepôt - 24 256 m² - 50 pièces Cliquez pour voir les 6 photos

                          Entrepôt - 24 256 m² - 50 pièces

                          1 795 000 €
                          Ensemble immobilier À 7 km de l'autoroute A25, site industriel polyvalent idéal pour activité agroalimentaire, artisanale ou logistique. Activité agroalimentaire sur 24 256 m2 de terrain clôturé avec 3 000 m2 de bâtiments et 6 accès, dont 2 ports adaptés aux semi-remorques. Caractéristiques : Terrain : 24 256 m2 Bâtiments : 3000.00 m2 (zones de production, chambres froides, s
                          Professionnel Publié il y a plus de 7 jours Non géolocalisée
                          Bergues Parking Exposition Nord
                          3

                          Ventes de biens immobiliers pour professionels à Grande-Synthe

                          (6.6 km)
                          • Bureau - 608 m²
                          • Bureau - 608 m²
                          • Bureau - 608 m²
                          • Bureau - 608 m²
                          • Bureau - 608 m²
                          • Bureau - 608 m² Cliquez pour voir les 20 photos

                          Bureau - 608 m²

                          850 000 €
                          Iad France - Ludovic Pernin (06 62 45 25 06) vous propose : IMMEUBLE DE BUREAUX - RENDEMENT + POTENTIEL - GRANDE-SYNTHE (DUNKERQUE) PRODUIT INVESTISSEUR RARE SUR LE SECTEUR Immeuble de bureaux indépendant, aucun travaux à prévoir, situé au coeur d’un secteur en pleine mutation économique, porté notamment par les projets industriels majeurs du bassin dunkerquois (gigafactory, dé
                          Professionnel Publié le 09 avril à 09:28
                          Grande-Synthe
                          Fonds de commerce - 240 m²

                          Fonds de commerce - 240 m²

                          275 000 €
                          59760 - GRANDE-SYNTHE - CENTRE-VILLE - FOND DE COMMERCE BAR TABAC PMU – Grande-Synthe - 240.0 M² - OPPORTUNITÉ À SAISIR DANS LE CENTRE-VILLE ! efficity, l'agence qui estime votre bien en ligne, vous propose ce fonds de commerce situé au cœur de Grande-synthe. À vendre – Établissement de référence, implanté sur un axe fréquenté, bénéficiant d'une clientèle régulière et d'un fl
                          Professionnel Publié il y a plus de 7 jours
                          Grande-Synthe
                          • Fonds de commerce - 240 m²
                          • Fonds de commerce - 240 m²

                          Fonds de commerce - 240 m²

                          275 000 € HT
                          Dunkerque Immobilier vous propose EN EXCLUSIVITE un fonds de commerce à Grande Synthe. Fonds de commerce Bar / Pmu / tabac d'une superficie de 240m2 dont 150 m2 de salle. Loyer : 1 100 € TTC / mois Pour plus de renseignements, contactez notre négociatrice Doriane Durut au 06 52 91 49 73. Retrouvez toutes les informations de ce bien sur notre site internet www.dunkerque-immo,
                          Professionnel Publié il y a plus de 7 jours Non géolocalisée
                          Grande-Synthe Parking
                          3

                          Ventes de biens immobiliers pour professionels à Zuydcoote

                          (8.4 km)
                          • Fonds de commerce
                          • Fonds de commerce
                          • Fonds de commerce
                          • Fonds de commerce
                          • Fonds de commerce
                          • Fonds de commerce Cliquez pour voir les 7 photos

                          Fonds de commerce

                          127 000 € HT
                          Votre agence locale vous propose EN EXCLUSIVITE cette boulangerie située au coeur du village de ZUYDCOOTE. Seule boulangerie du village, cette affaire offre un super potentiel pour ses prochains propriétaires. Le bien dispose d'une belle vitrine, d'une arrière boutique avec tout le matériel nécessaire pour exercer l'activité ainsi qu'un coin bureau. Le repreneur pourra tout-à
                          Professionnel Publié il y a plus de 7 jours Non géolocalisée
                          Zuydcoote Parking
                          • Fonds de commerce
                          • Fonds de commerce
                          • Fonds de commerce
                          • Fonds de commerce
                          • Fonds de commerce
                          • Fonds de commerce Cliquez pour voir les 7 photos

                          Fonds de commerce

                          153 000 € HT
                          Votre agence locale vous propose EN EXCLUSIVITE cette boulangerie située au coeur du village de ZUYDCOOTE. Seule boulangerie du village, cette affaire offre un super potentiel pour ses prochains propriétaires. Le bien dispose d'une belle vitrine, d'une arrière boutique avec tout le matériel nécessaire pour exercer l'activité ainsi qu'un coin bureau. Le repreneur pourra tout-à-f
                          Professionnel Publié il y a plus de 7 jours Non géolocalisée
                          Zuydcoote Parking
                          Terrain agricole - 325 m²

                          Terrain agricole - 325 m²

                          30 000 €
                          - À vendre en EXCLUSIVITE dans votre agence locale Mélanie MARTEEL IMMOBILIER - Terrain non-constructible de 325 m² situé à ZUYDCOOTE. Nous vous proposons ce bien au prix de 30 000€ HAI soit 25 000€ NV + 5 000€ d'honoraires agence à la charge de l'acquéreur. => Contactez nous vite pour découvrir cette parcelle : 03.28.25.37.59 Honoraires inclus de 20% à la charge de l'acquéreu
                          Professionnel Publié il y a plus de 7 jours Non géolocalisée
                          Zuydcoote Parking
                          2

                          Ventes de biens immobiliers pour professionels à Bray-Dunes

                          (10.8 km)
                          • Terrain agricole - 508 m²
                          • Terrain agricole - 508 m²
                          • Terrain agricole - 508 m²
                          • Terrain agricole - 508 m²
                          • Terrain agricole - 508 m²

                          Terrain agricole - 508 m²

                          20 000 €
                          Situé sur la commune prisée de BRAY-DUNES, ce terrain de loisir de 508m² est une opportunité rare sur le secteur. Retiré de la route et protégé des nuisances sonores, il offre un cadre idéal pour les amoureux de la nature et du bricolage en plein air. Que vous soyez amateur de jardinage ou à la recherche d'un espace pour vos réunions de famille, ce terrain répondra à toutes vos
                          Professionnel Publié le 05 avril à 05:57 Non géolocalisée
                          Bray-Dunes Parking
                          • Local commercial - 150 m²
                          • Local commercial - 150 m²

                          Local commercial - 150 m²

                          163 500 €
                          Vos agences immobilières Orpi Horizon Dunkerque-Rosendael & Bray-Dunes ont le plaisir de vous proposer cet immeuble idéalement situé à BRAY-DUNES. Emplacement stratégique dans la ville, cet immeuble avec garage est actuellement loué au prix de 753€ TTC. Taxe foncière payée par le locataire. Pour plus de renseignements, merci de nous contacter. Agences ORPI Horizon Dunkerque-R
                          Professionnel Publié il y a plus de 7 jours Non géolocalisée
                          Bray-Dunes
                          1

                          Vente de bien immobilier pour professionels à Loon-Plage

                          (12.1 km)
                          • Fonds de commerce - Hôtellerie / Restauration - 110 m²
                          • Fonds de commerce - Hôtellerie / Restauration - 110 m²
                          • Fonds de commerce - Hôtellerie / Restauration - 110 m²
                          • Fonds de commerce - Hôtellerie / Restauration - 110 m²
                          • Fonds de commerce - Hôtellerie / Restauration - 110 m²

                          Fonds de commerce - Hôtellerie / Restauration - 110 m²

                          82 500 €
                          "59279 LOON-PLAGE - CENTRE-VILLE - FONDS DE COMMERCE - 110.0 M² - CAFE//RESTAURANT /PMU /LE TOUT D UNE PROPRETE IRREPROCHABLE A SAISIR! effiCity, l'agence qui estime votre bien en ligne, vous propose ce fonds de commerce situé en plein cœur du centre-ville de Loon-Plage.rnrnD'une surface de 110.0 m², cet espace lumineux et spacieux est idéal pour développer votre activité de
                          Professionnel Publié il y a plus de 7 jours
                          Loon-Plage
                          1

                          Vente de bien immobilier pour professionels à Hondschoote

                          (13.8 km)
                          • Bureau - 630 m²
                          • Bureau - 630 m²
                          • Bureau - 630 m²
                          • Bureau - 630 m²
                          • Bureau - 630 m²

                          Bureau - 630 m²

                          707 200 €
                          Immeuble à usage de bureaux d'environ 630 m² répartis sur 3 plateaux avec ascenseur. Possibilité de tout moduler en fonction des besoins et projets : bureaux, salles de réunion, salles archives, sanitaires à chaque niveau ... Bâtiment équipé avec alarme, climatisation, centrale air. Normes PMR.
                          Professionnel Publié il y a plus de 7 jours Non géolocalisée
                          Hondschoote Parking
                          2

                          Ventes de biens immobiliers pour professionels à Esquelbecq

                          (14 km)
                          • Local commercial - 397 m² - 5 pièces
                          • Local commercial - 397 m² - 5 pièces
                          • Local commercial - 397 m² - 5 pièces
                          • Local commercial - 397 m² - 5 pièces
                          • Local commercial - 397 m² - 5 pièces
                          • Local commercial - 397 m² - 5 pièces Cliquez pour voir les 6 photos

                          Local commercial - 397 m² - 5 pièces

                          209 500 €
                          Opportunité professionnelle à saisir - Bâtiment commercial à Esquelbecq Implanté au cœur de la zone industrielle d'Esquelbecq, ce bâtiment commercial offre un cadre idéal pour développer vos activités professionnelles dans un environnement stratégique et facilement accessible. D'une surface bâtie de 397 m², sur un terrain de 1 263 m², ce bien se compose de : Deux bureaux foncti
                          Professionnel Publié le 03 avril à 06:51
                          Esquelbecq Parking
                          • Local commercial - 4 983 m² - 3 pièces
                          • Local commercial - 4 983 m² - 3 pièces
                          • Local commercial - 4 983 m² - 3 pièces
                          • Local commercial - 4 983 m² - 3 pièces

                          Local commercial - 4 983 m² - 3 pièces

                          105 300 €
                          À saisir ! Hangar de stockage d'environ 2 100 m² sur un terrain de 4 983 m² avec aire de stationnement, idéalement situé dans la zone industrielle d'Esquelbecq. Artisans, entrepreneurs, exploitants agricoles : vous recherchez un espace de stockage spacieux, accessible et bien placé ? Contactez moi sans attendre pour plus d'informations ou pour organiser une visite ! Les informa
                          Professionnel Publié il y a plus de 7 jours
                          Esquelbecq
                          1

                          Vente de bien immobilier pour professionels à Arnèke

                          (20.4 km)
                          • Fonds de commerce - 75 m²
                          • Fonds de commerce - 75 m²
                          • Fonds de commerce - 75 m²
                          • Fonds de commerce - 75 m²
                          • Fonds de commerce - 75 m²

                          Fonds de commerce - 75 m²

                          76 000 € HT
                          À VENDRE - Fonds de commerce Friterie / Pizzeria En exclusivité avec L'Agence des Copains, découvrez ce fonds de commerce idéalement situé, offrant un bel espace de travail et du matériel fonctionnel. - Boutique de 52 m² - Réserve et bureau de 20 m² - Cave - Équipements inclus : four à pizza électrique, friteuse, frigo - Bail commercial : 900 €/mois - Taxe foncière : 800 €/an
                          Professionnel Publié il y a plus de 7 jours Non géolocalisée
                          Arnèke Parking
                          2

                          Ventes de biens immobiliers pour professionels à Volckerinckhove

                          (20.7 km)
                          • Fonds de commerce - 150 m²
                          • Fonds de commerce - 150 m²
                          • Fonds de commerce - 150 m²
                          • Fonds de commerce - 150 m²

                          Fonds de commerce - 150 m²

                          178 000 € HT
                          Fond de commerce boulangerie à vendre: -Boutique 39M2 -Atelier pâtisserie/boulangerie 76M2 -Arrière boutique 22M2 +vestiaire+wc -Cuisine blanche 22M2 -Bureau 5M2 -Four à bois -4 salariés -Location habitation 110M2 -Bail commerce + habitation 1500 euros Très bon état général Votre conseiller L'agence des copains : Stéphanie Bogaert Agent commercial (Entreprise individuelle) R
                          Professionnel Publié il y a plus de 7 jours Non géolocalisée
                          Volckerinckhove Parking
                          • Fonds de commerce - 230 m²
                          • Fonds de commerce - 230 m²
                          • Fonds de commerce - 230 m²

                          Fonds de commerce - 230 m²

                          175 000 € HT
                          L'ESPACE IMMOBILIER vous propose cette boulangerie pâtisserie ! CENTRE VILLAGE - Boutique entièrement refaite. Magasin de 40 m² Surface total pour l'activité : environ 230 m². Logement comprenant : Salon /séjour, cuisine , 3 chambres, salle de bains. Chauffage Électrique + Poêle. Grand garage de 55 m². Renseignements au 06.79.97.92.54 Les informations sur les risques auxquels
                          Professionnel Publié il y a plus de 7 jours Non géolocalisée
                          Volckerinckhove Parking
                          1

                          Vente de bien immobilier pour professionels à Winnezeele

                          (22.2 km)
                          • Local commercial - 161 m²
                          • Local commercial - 161 m²
                          • Local commercial - 161 m²
                          • Local commercial - 161 m²
                          • Local commercial - 161 m²
                          • Local commercial - 161 m² Cliquez pour voir les 8 photos

                          Local commercial - 161 m²

                          150 000 €
                          Iad France - Florian Lobry (06 21 64 04 70) vous propose : Fonds de commerce d’une boulangerie artisanale de 161 m² environ idéalement située au cOEur du village, avec clientèle fidèle et emplacement stratégique (A25 à proximité). Établissement prêt à travailler, matériel complet et bien entretenu. Fournil, laboratoire et espace de vente fonctionnels. ? Clientèle régulière ? Lo
                          Professionnel Publié il y a plus de 7 jours
                          Winnezeele
                          1

                          Vente de bien immobilier pour professionels à Buysscheure

                          (23.4 km)
                          • Entrepôt - 340 m²
                          • Entrepôt - 340 m²

                          Entrepôt - 340 m²

                          166 000 €
                          BUYSSCHEURE Venez découvrir avec L'Agence des Copains : - 1 entrepôt de stockage de 270m2 environ - 1 entrepôt de stockage de 70m2 environ N'hésitez pas à nous contacter pour plus d'informations ou pour visiter ! A bientôt ! Honoraires inclus de 3.75% à la charge de l'acquéreur. Prix hors honoraires 160 000 €. Non soumis au DPE. Les informations sur les risques auxquels ce b
                          Professionnel Publié il y a plus de 7 jours Non géolocalisée
                          Buysscheure Parking
                          2

                          Ventes de biens immobiliers pour professionels à Ruminghem

                          (24.1 km)
                          • Terrain agricole - 6 000 m²
                          • Terrain agricole - 6 000 m²
                          • Terrain agricole - 6 000 m²
                          • Terrain agricole - 6 000 m²

                          Terrain agricole - 6 000 m²

                          120 000 €
                          Iad France - Dorothée Gwizdz vous propose : 🚨 Opportunité à Ruminghem ! Vous cherchez un espace pour stocker, travailler ou développer votre activité ? 🔹 Hangar d’environ 200 m² 🔹 Une partie stockage ou atelier avec une très belle hauteur sous toiture 🔹 Une partie aménagement en bureau possible 🔹 Façade refaite en enduit 🔹 Parcelle d’environ 6 000 m² Un bien rare offrant de nom
                          Professionnel Publié il y a plus de 7 jours
                          Ruminghem
                          • Local d'activité / Entrepôt - 350 m²
                          • Local d'activité / Entrepôt - 350 m²
                          • Local d'activité / Entrepôt - 350 m²

                          Local d'activité / Entrepôt - 350 m²

                          149 100 €
                          Entrepôts, stockage, pâture L'Agence Des Olieux vous propose à la vente cet entrepôt (non viabilisé) d'environ 350m2, bâtit sur une parcelle de 4800m2 sur la commune de Ruminghem Vous avez besoin d'espace pour stocker vos engins agricoles ? Vous cherchez de beaux volumes de stockage pour votre activité professionnel ? Composé de 2 bâtiments et d'une pâture, cet ensemble e
                          Professionnel Publié il y a plus de 7 jours Non géolocalisée
                          Ruminghem
                          1

                          Vente de bien immobilier pour professionels à Cassel

                          (24.8 km)
                          Fonds de commerce - 130 m²

                          Fonds de commerce - 130 m²

                          191 500 € HT
                          COMMERCE À FORTE RENTABILITÉ - CASSEL Venez découvrir en exclusivité à l'agence des copains Situé en plein coeur de Cassel, élu village préféré des Français, ce commerce bénéficie d'un emplacement exceptionnel sur la place principale, avec un flux touristique important toute l'année. Les atouts du bien : -Emplacement n°1, visibilité maximale -Clientèle locale et touristique f
                          Professionnel Publié il y a plus de 7 jours Non géolocalisée
                          Cassel Parking

                          Achats de biens immobiliers pour professionnels à Coudekerque-Branche. Toutes les ventes immobilières à Coudekerque-Branche et aux environs.

                          Recherche en cours...
                          Rechercher dans cette zone