• Maison - 79 m² - 4 pièces
  • Maison - 79 m² - 4 pièces
  • Maison - 79 m² - 4 pièces
  • Maison - 79 m² - 4 pièces
  • Maison - 79 m² - 4 pièces
333 000 €
79 m²
4 pièces
3 chambres

Description :

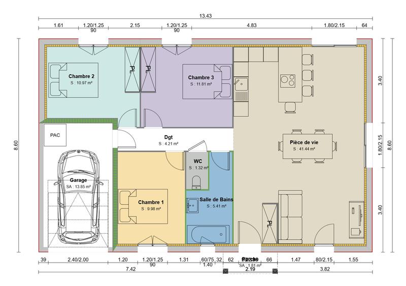
OFFRE EXCEPTIONNELLE : 10m² OFFERT + PACK DECO OU PACK CUISINE AU CHOIX.Votre Maison Plain-Pied de 85 m² Habitables entièrement personnalisable ! Maison Punch vous propose une magnifique maison de plain-pied de 85 m² sur la commune de Communay pensée pour le confort et la modernité.Sur une parcelle de 500m² entièrement viabilisé, Nous vous proposons une construction neuve entièrement modulable à vos goûts.Caractéristiques :• Superficie totale : 85 m² habitables• Pièce de vie spacieuse de 42 m² avec une cuisine ouverte, pour profiter d’un espace lumineux et convivial• Espace nuit comprenant :o 3 chambres confortables : 2 chambres de 10,50 m² ainsi qu’une chambre plus spacieuse de 11,50 m².• Salle de bain avec baignoire ou douche, selon vos envies, avec WC séparer.• Garage de 15 m² attenant, idéal pour protéger votre véhicule ou pour un espace de rangement supplémentaire.• Maison conforme à la RE 2020.Prestations de qualités comprenant de nombreuse options au bon vouloir des futurs acquéreurs.CONSTRUCTION, TERRAIN ET VRD INCLUS DANS LE PRIX.Venez découvrir cette maison qui allie praticité et esthétisme. Un projet de vie pour toute la famille dans un cadre où chaque mètre carré a été optimisé pour votre confort. Mr Romain CASINI 06 84 82 88 41 Chargé de Projets Maisons Punch

Afficher plus de détails

Informations sur ce bien :

L'intérieur :

  • 4 pièces
  • 79 m²
  • 3 Chambres
  • 1 Salle de bain

L'extérieur :

  • Garage

À proximité :

  • Accès voie rapide
  • Centre-ville
  • Commerces
  • Ecoles

Autres :

  • Style :
    Traditionnelle
Synthèse
Maison à Communay
333 000 €
Surface : 79 m²
Prix au m² : 4 215 €
Transaction :
Neuf
Référence :
15527 Casini Romain
Date de publication :
Aujourd'hui à 18:46
Maison - 79 m² - 4 pièces
Agent
Maisons Punch - Saint Priest
Maisons Punch - Saint Priest
Appeler
Écrire
Mettre en avant cette annonce
Signaler une erreur

Localisation :

L'adresse exacte n'est pas renseignée. Le bien se situe dans cette zone.
Annonces similaires
Annonces immobilières récentes