• Local commercial - 98 m² - 44 pièces
  • Local commercial - 98 m² - 44 pièces
  • Local commercial - 98 m² - 44 pièces
  • Local commercial - 98 m² - 44 pièces
22 200 €
98 m²
44 pièces

Description :

LOCATION PURE :

06400 / CANNES
Centre ville
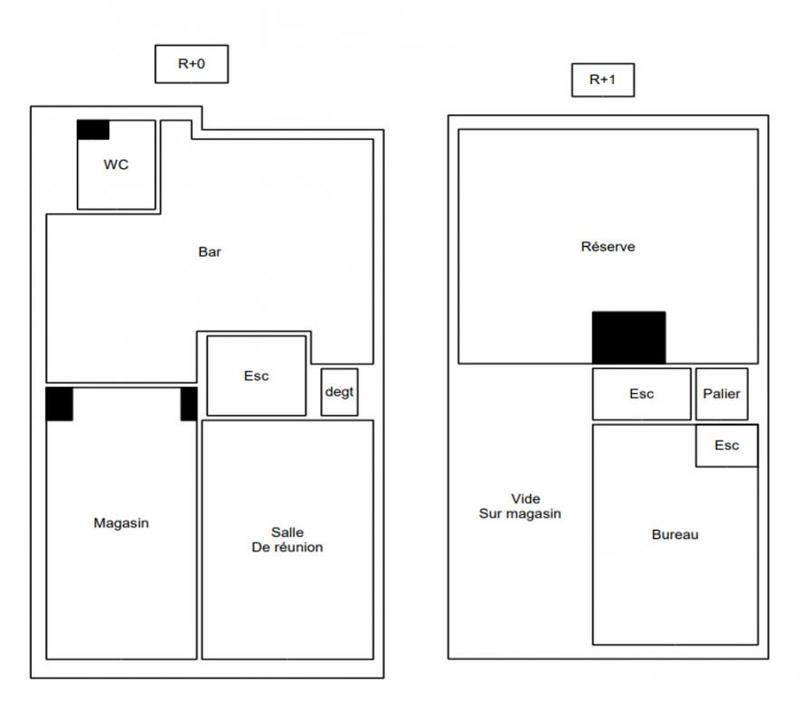
LOCAL COMMERCIAL sur 2 niveaux de 95 M2 sur rue passante et à proximité immédiate de la rue d'Antibes.

PAS DE DROIT AU BAIL - PAS DE PAS DE PORTE : Aucun frais à prévoir à l'entrée dans les locaux

LES CONDITIONS :

- LOYER annuel : 18 600 € HT soit 1550 € mensuel
- Provision sur charges : 500 € annuel
- taxe foncière charge preneur : 734 € annuel
- frais de rédaction du bail commercial : charge preneur

ACTIVITES POSSIBLES :

Ce local commercial est idéal pour l'exploitation de :
- activité de bureaux professionnels ( agence immobilière, architecte, designer, show room, comptable, avocat ... )
- activité de stockage et bureau pour un artisan
- cave à vin, épicerie, magasin....

Pas de nuisances, pas d'extraction, pas de restauration...

Notre agent commerce Franck PUCCETTI reste disponible 7/7 au 06 81 73 39 17 ou par mail : fpuccetti@efficity.com
Les informations sur les risques auxquels ce bien est exposé sont disponibles sur le site Georisque : georisques. gouv. fr
Franck Puccetti - EI - est Agent Commercial mandataire en immobilier, immatriculé au Registre Spécial des Agents Commerciaux du Tribunal de Commerce de Antibes sous le n°502598634.
Siège social du mandant : effiCity, 48 avenue de Villiers - 75017 PARIS - Société par Actions Simplifiée, société au capital de 132 373,05 euros, immatriculée au RCS Paris 497 617 746 et titulaire de la Carte professionnelle CPI 7501 2015 000 002 025 - CCI Paris IDF - Caisse de Garantie : GALIAN Assurances 89 rue de la Boétie 75008 Paris

Afficher plus de détails

Informations sur ce bien :

L'intérieur :

  • 44 pièces
  • 98 m²
    Informations complémentaires
    Surface commerciale : 98 m²

Les équipements :

  • Accès handicapé

Copropriété :

  • Taxe foncière :
    730 €
Synthèse
Local commercial à Cannes
22 200 €
Surface : 98 m²
Prix au m² : 227 €
Transaction :
Achat (professionnels)
Référence :
183340
Date de publication :
Il y a plus de 7 jours
Local commercial - 98 m² - 44 pièces
Agent
RESEAU EFFICITY
RESEAU EFFICITY
M. Franck Puccetti
Appeler
Écrire
Mettre en avant cette annonce
Signaler une erreur

Localisation :

Annonces similaires
Annonces immobilières récentes