• Appartement - 126 m² - 5 pièces
  • Appartement - 126 m² - 5 pièces
  • Appartement - 126 m² - 5 pièces
  • Appartement - 126 m² - 5 pièces
  • Appartement - 126 m² - 5 pièces
  • Appartement - 126 m² - 5 pièces
  • Appartement - 126 m² - 5 pièces
  • Appartement - 126 m² - 5 pièces
  • Appartement - 126 m² - 5 pièces
  • Appartement - 126 m² - 5 pièces
499 000 €
126 m²
5 pièces
4 chambres

Description :

GRAND T5 À RÉNOVER AVEC BELLE TERRASSE SANS VIS-À-VIS - CHARTRONS
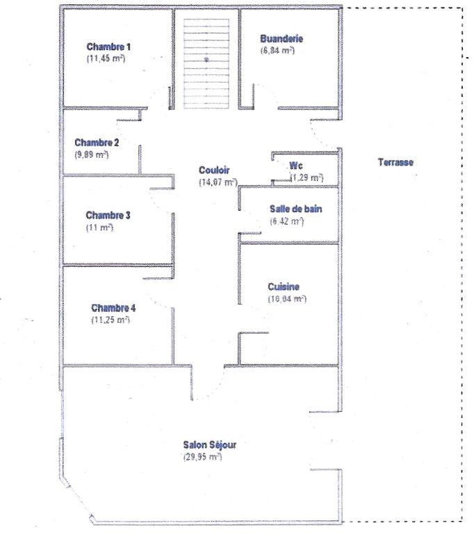
L'Agence Girondine vous présente ce spacieux T5 de 126 m² avec une terrasse exceptionnelle de 62 m², niché au coeur du quartier très recherché des Chartrons. Un bien rare offrant de superbes volumes et un fort potentiel, à rafraîchir selon vos envies. Agences s'abstenir
UN POTENTIEL REMARQUABLE :
? Pièce de vie généreuse et lumineuse avec accès direct à la terrasse
Cuisine indépendante (possibilité d'ouverture sur le séjour)
? Quatre grandes chambres, idéales pour une famille ou pour télétravailler confortablement
? Salle d'eau et WC séparés
? Immense terrasse de 62 m² sans vis-à-vis, parfaite pour vos repas en extérieur, un coin détente ou un jardin urbain

POINTS FORTS :
? Superficie rare dans le secteur : 126 m² habitables
? Une terrasse digne d'un toit-terrasse, au calme et sans vis-à-vis avec vue sur les toits de Bordeaux
? Appartement traversant, lumineux et fonctionnel
? Fort potentiel de valorisation grâce à des travaux de rafraîchissement personnalisables dont nous pouvons nous charger
? Petite copropriété intimiste, très faibles charges
? Combles aménageables pour partie
EMPLACEMENT PRIVILÉGIÉ - VIVRE LES CHARTRONS À PIED :
? Écoles, collèges et lycées à proximité immédiate
? Commerces, restaurants et cafés emblématiques du quartier à quelques minutes
? Quais de la Garonne accessibles à 700 m pour vos balades
? Bus Leybardie à 120 m, tram à 700 m - accès rapide au centre historique de Bordeaux

IDÉAL POUR :
? Famille cherchant un grand appartement avec terrasse dans un quartier vivant et prisé
Amateurs de grands espaces extérieurs en ville
? Investisseurs souhaitant redonner tout son éclat à un bien de caractère dans un secteur en constante valorisation
? Opportunité rare à saisir aux Chartrons - fort potentiel après rafraîchissement.

Honoraires inclus de 1.22% TTC à la charge de l'acquéreur. Prix hors honoraires 493 000 €. Classe énergie E, Classe climat E Montant moyen estimé des dépenses annuelles d'énergie pour un usage standard, établi à partir des prix de l'énergie de l'année 2021 : entre 2330.00 et 3210.00 €. Les informations sur les risques auxquels ce bien est exposé sont disponibles sur le site Géorisques : georisques.gouv.fr.

Votre conseiller L'agence Girondine : Pauline PEREZ
Agent commercial (Entreprise individuelle)
RSAC 847 801 099

Afficher plus de détails

Informations sur ce bien :

L'intérieur :

  • 5 pièces
  • 126 m²
  • 4 Chambres
  • Cuisine séparée, équipée
    Informations complémentaires
    Séparée, équipée
  • 1 Salle de bain
  • 1 Toilette

L'extérieur :

  • Terrasse
  • Parking

Autres :

  • Chauffage :
    Individuel, Gaz
  • Étage :
    RDC
Synthèse
Appartement à Bordeaux
499 000 €
Surface : 126 m²
Prix au m² : 3 960 €
Transaction :
Achat
Référence :
VA1938-AGENCEGIRONDINE
Mandat :
Exclusif
Date de publication :
Il y a plus de 7 jours
Appartement - 126 m² - 5 pièces
Performance énergétique
A
B
C
D
E
F
G
Gaz à effet de serre
A
B
C
D
E
F
G
Agent
L'agence Girondine
Appeler
Écrire
Mettre en avant cette annonce
Signaler une erreur

Localisation :

L'adresse exacte n'est pas renseignée. Le bien se situe dans cette zone.

Performance énergétique :

Logement économe
A
B
C
D
E
308
kWh/m²/an
68
kg CO₂/m²/an
F
G
Logement énergivore
Faible émission de CO₂
A
B
C
D
E
68
kg CO₂/m²/an
F
G
Forte émission de CO₂
Date du diagnostic : 20 février 2024
Estimation des coûts annuels d’énergie du logement : 2 330 € à 3 210 €
Annonces similaires
Annonces immobilières récentes