• Terrain - 1 500 m²
  • Terrain - 1 500 m²
  • Terrain - 1 500 m²
  • Terrain - 1 500 m²
28 000 €
1 500 m²

Description :

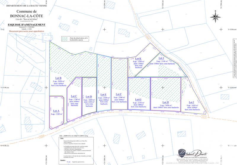
Iad France - David Doizon vous propose : Situé rue de la Colline, entre Bonnac-la-Côte et Chaptelat, ce terrain libre de constructeur, bénéficie d’un emplacement stratégique : à 4 min des commerces de Bonnac, 6 min de Chaptelat, 5 min de l’autoroute et 12 min de la zone nord de Limoges. LOT K Plusieurs lots sont disponibles, de 1300 à 5000 m², (une seule construction possible par terrain) dans un environnement résidentiel et verdoyant. Terrain en zone AUa. CU opérationnel et déclaration préalable validés. Topographies variées : plat, pente douce ou adapté à une construction sur sous-sol. Assainissement individuel à prévoir. Viabilisation à réaliser. Études techniques déjà effectuées (eaux pluviales, ANC, zones humides). Zone non constructible en fond de parcelle, sans incidence sur les projets. Contactez-moi pour choisir la parcelle qui correspond à votre projet. Honoraires d'agence à la charge du vendeur. Bien non soumis au DPE. Les informations sur les risques auxquels ce bien est exposé, y compris l'obligation légale de débroussaillement, sont disponibles sur le site Géorisques : http://www.georisques.gouv.fr. La présente annonce immobilière a été rédigée sous la responsabilité éditoriale de M David Doizon mandataire indépendant en immobilier (sans détention de fonds), agent commercial de la SAS I@D France immatriculé au RSAC de LIMOGES sous le numéro 850239989, titulaire de la carte de démarchage immobilier pour le compte de la société I@D France SAS.

Afficher plus de détails

Informations sur ce bien :

L'intérieur :

  • 1 500 m²

Autres :

  • Mitoyenneté :
    Non

Terrain :

  • Viabilisé :
    Non
Synthèse
Terrain à Bonnac-la-Côte
28 000 €
Surface : 1 500 m²
Prix au m² : 19 €
Transaction :
Achat
Référence :
1802147
Date de publication :
Aujourd'hui à 08:02
Terrain - 1 500 m²
Agent
iad france
iad france
David Doizon
Appeler
Écrire
Mettre en avant cette annonce
Signaler une erreur

Localisation :

L'adresse exacte n'est pas renseignée. Le bien se situe dans cette zone.
Annonces similaires
Annonces immobilières récentes