• Appartement - 38 m² - 2 pièces
  • Appartement - 38 m² - 2 pièces
98 500 €
38 m²
2 pièces
1 chambre

Description :

Libre de toute occupation - Forom® Immobilier

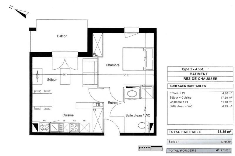
Forom Immobilier vous propose cet appartement T2 d'une surface d'environ 38,35 m² au rez-de-chaussée situé dans une résidence pour seniors autonomes sur la commune d'Aucamville, à deux pas des commerces.

Présence d'un régisseur qui organise de nombreuses activités, club-house avec télévision et bibliothèque, où les résidents peuvent se retrouver.

Le logement dispose d'un séjour, une cuisine équipée, une chambre avec placards, une salle d'eau avec douche et un WC (douche au ras du sol, siège rabattable, barres d'appui et de maintien, WC rehaussés), un balcon et une place de parking.

- Charges de copropriété : 174€ / mois
- Chauffage et eau chaude individuelle au gaz
- Taxe foncière : 872€ / an
- DPE : C
- Nombre de lots : 72
- Honoraires charge vendeur

Honoraires à la charge du vendeur. Dans une copropriété de 72 lots. Aucune procédure n'est en cours. Classe énergie C, Classe climat C Montant moyen estimé des dépenses annuelles d'énergie pour un usage standard, établi à partir des prix de l'énergie de l'année 2023 : entre 420.00 et 610.00 €. Les informations sur les risques auxquels ce bien est exposé sont disponibles sur le site Géorisques : georisques.gouv.fr.

Afficher plus de détails

Informations sur ce bien :

L'intérieur :

  • 2 pièces
  • 38 m²
  • 1 Chambre
  • 1 Salle d'eau
  • 1 Toilette

L'extérieur :

  • Balcon de 7 m²
  • Parking

Autres :

  • Année de construction :
    2016
  • Étage :
    RDC
    Informations complémentaires
    Nombre d'étages de la construction : 1

Copropriété :

  • Copropriété :
    Oui
  • Nombre de lots :
    72
Synthèse
Appartement à Aucamville
98 500 €
Surface : 38 m²
Prix au m² : 2 592 €
Transaction :
Achat
Référence :
4046-FOROM
Date de publication :
Aujourd'hui à 06:12
Appartement - 38 m² - 2 pièces
Performance énergétique
A
B
C
D
E
F
G
Gaz à effet de serre
A
B
C
D
E
F
G
Agent
Forom® Immobilier
Appeler
Écrire
Mettre en avant cette annonce
Signaler une erreur

Localisation :

L'adresse exacte n'est pas renseignée. Le bien se situe dans cette zone.

Performance énergétique :

Logement économe
A
B
C
99
kWh/m²/an
18
kg CO₂/m²/an
D
E
F
G
Logement énergivore
Faible émission de CO₂
A
B
C
18
kg CO₂/m²/an
D
E
F
G
Forte émission de CO₂
Date du diagnostic : 18 décembre 2025
Estimation des coûts annuels d’énergie du logement : 420 € à 610 €
Annonces similaires
Annonces immobilières récentes