• Bureau - 467 m²
  • Bureau - 467 m²
  • Bureau - 467 m²
  • Bureau - 467 m²
  • Bureau - 467 m²
  • Bureau - 467 m²
  • Bureau - 467 m²
  • Bureau - 467 m²
  • Bureau - 467 m²
9 325 € HT / mois
467 m²

Description :

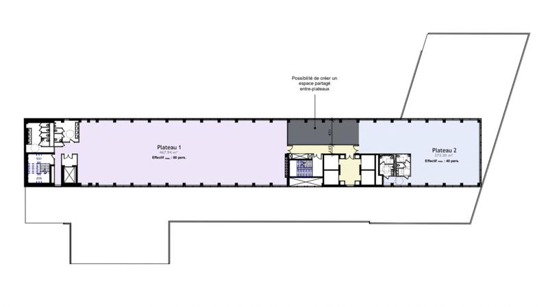
Découvrez ce bureau spacieux et lumineux, situé au 1er étage d'un immeuble récent construit en 2020. Avec une surface de 374,61 m², cet espace peut accueillir jusqu'à 85 personnes, offrant un environnement de travail idéal pour votre entreprise.

Ce bureau est actuellement libre et se trouve en excellent état, tant à l'intérieur qu'en ce qui concerne les parties communes. Les ouvertures en PVC/aluminium et les portes à triple vitrage garantissent une isolation optimale, tandis que la hauteur sous plafond de 3,50 m ajoute une touche de grandeur à l'espace.

Profitez d'une vue dégagée et d'un parking privé pour faciliter vos déplacements. Le chauffage collectif assure un confort thermique optimal tout au long de l'année. De plus, ce bureau est conforme aux normes ERP et PMR, et dispose de sanitaires.

Le loyer est de 8 959,42 € HTVA, toutes charges comprises. Ne manquez pas cette opportunité de louer un espace de travail haut de gamme, parfait pour développer votre activité.

À proximité, vous trouverez plusieurs commodités pratiques, dont un supermarché à 5 minutes en voiture et plusieurs restaurants à moins de 10 minutes à pied.

Honoraires de 12 609 € à la charge du locataire. Provision sur charges 2 320 €/mois, régularisation annuelle. Dépôt de garantie 30 333 €. Non soumis au DPE. Les informations sur les risques auxquels ce bien est exposé sont disponibles sur le site Géorisques : georisques.gouv.fr.

Votre conseiller Qoridor : Craig Cooper
Agent commercial (Entreprise individuelle)
RSAC 97813891500019

Afficher plus de détails

Informations sur ce bien :

L'intérieur :

  • 467 m²

L'extérieur :

  • Parking

Les équipements :

  • Ascenseur
  • Accès handicapé

Autres :

  • Chauffage :
    Collectif
  • Année de construction :
    2020
  • Vue :
    Dégagée
  • Étage :
    RDC
Synthèse
Bureau à Asnières-sur-Seine
9 325 € HT / mois
Surface : 467 m²
Transaction :
Location (locaux professionnels)
Référence :
LP357-TOCTOCFR
Charges :
2 320 €
Informations complémentaires
Les charges sont inclues dans le loyer affiché
Prévisionnelles mensuelles avec régularisation annuelle
Montant de la caution :
30 333 €
Honoraires :
12 609 €
Informations complémentaires
Honoraires hors taxes
Date de publication :
Aujourd'hui à 13:00
Bureau - 467 m²
Agent
Qoridor
Craig Cooper
Appeler
Écrire
Mettre en avant cette annonce
Signaler une erreur

Localisation :

Performance énergétique :

Bien non soumis au Diagnostic de Performance Énergétique (DPE)

Annonces similaires
Annonces immobilières récentes