• Appartement - 60 m² - 3 pièces
  • Appartement - 60 m² - 3 pièces
  • Appartement - 60 m² - 3 pièces
  • Appartement - 60 m² - 3 pièces
  • Appartement - 60 m² - 3 pièces
320 000 €
60 m²
3 pièces
2 chambres

Description :

Liberkeys vous propose, en exclusivité, ce superbe appartement rénové de 60 m², idéalement situé à Ascain, au cœur du Pays Basque.

Dans un quartier proche du bourg, belle maison en pierre de style labourdine dans une copropriété intimiste (3 lots). Situé dans un environnement verdoyant, ce bien séduit par son parfait équilibre entre confort intérieur et cadre de vie paisible, à quelques minutes du centre.

Vous profiterez d'un séjour lumineux ouvert sur une généreuse terrasse exposée sud-ouest, parfait pour savourer les douces soirées en admirant la montagne.

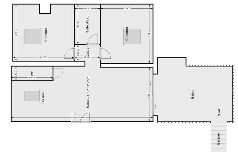
La cuisine classique, fonctionnelle, n'attend que vos inspirations culinaires. L'espace nuit propose deux chambres confortables ainsi qu'une salle de bains moderne, offrant une qualité de vie optimale au quotidien.

Côté praticité, le bien bénéficie d'un stationnement privatif extérieur, un véritable atout pour cette localisation recherchée. L'absence de charges de copropriété (0 € par an) garantit également une maîtrise budgétaire appréciable. La taxe foncière reste raisonnable dans le secteur, renforçant l'attractivité de ce placement.

Ce bien vous plaît ? Visitez-le virtuellement en 3D sur le site de Liberkeys ou contactez directement votre conseiller. Référence annonce : DOM21107. Date de réalisation du diagnostic : 29/04/2024. Les honoraires sont à la charge du vendeur.

Afficher plus de détails

Informations sur ce bien :

L'intérieur :

  • 3 pièces
  • 60 m²
    Informations complémentaires
    Surface habitable : 60 m²
  • 2 Chambres
  • Cuisine séparée
    Informations complémentaires
    Séparée
  • 1 Salle de bain
  • 1 Salle d'eau
  • 1 Toilette
  • Séjour de 25 m²

L'extérieur :

  • Terrasse
  • 2 Parkings

Les équipements :

  • Double vitrage

Autres :

  • Chauffage :
    Individuel, Radiateur, Électrique
  • Année de construction :
    1992
  • Exposition :
    Sud
  • Étage :
    1er étage
    Informations complémentaires
    Nombre d'étages de la construction : 1

Copropriété :

  • Copropriété :
    Oui
  • Nombre de lots :
    3
Synthèse
Appartement à Ascain
320 000 €
Surface : 60 m²
Prix au m² : 5 333 €
Transaction :
Achat
Référence :
DOM21107
Mandat :
Exclusif
Date de publication :
Aujourd'hui à 08:52
Appartement - 60 m² - 3 pièces
Performance énergétique
A
B
C
D
E
F
G
Gaz à effet de serre
A
B
C
D
E
F
G
Agent
Liberkeys
Liberkeys
Florian Gravaud
Appeler
Écrire
Mettre en avant cette annonce
Signaler une erreur

Localisation :

Performance énergétique :

Logement économe
A
B
C
D
186
kWh/m²/an
5
kg CO₂/m²/an
E
F
G
Logement énergivore
Faible émission de CO₂
A
5
kg CO₂/m²/an
B
C
D
E
F
G
Forte émission de CO₂
Date du diagnostic : 29 avril 2024
Annonces similaires
Annonces immobilières récentes