• Local commercial - 114 m² - 8 pièces
  • Local commercial - 114 m² - 8 pièces
  • Local commercial - 114 m² - 8 pièces
  • Local commercial - 114 m² - 8 pièces
  • Local commercial - 114 m² - 8 pièces
  • Local commercial - 114 m² - 8 pièces
  • Local commercial - 114 m² - 8 pièces
382 000 €
114 m²
8 pièces

Description :

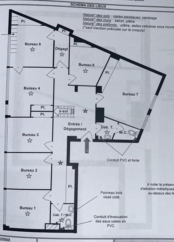
Proche de la gare de Villiers le bel / Gonesse/ Arnouville, ce local avec grande devanture est idéal pour un cabinet médical pouvant accueillir plusieurs médecins, professions paramédicales ou bien d'autres activités tel que start up ou cabinet d'avocat,d'architecte etc... Il dispose d'une grande entrée pouvant faire office d'accueil et d'une cuisine, d'une salle d'attente, de divers rangements et placards, de deux toilettes avec lavabo et de cinq bureaux dont deux communicant entre eux. La cave saine permet le stockage.

Le bien comprend 3 lots, et il est situé dans une copropriété de 14 lots (les charges courantes annuelles moyennes de copropriété sont de 350 € et le syndicat des copropriétaires ne fait pas l'objet d'une procédure citée à l'article L. 721-1 du code de la construction et de l'habitation).

Les informations sur les risques auxquels ce bien est exposé sont disponibles sur le site Géorisques : www.georisques.gouv.fr
Prix de vente HT : 382 000 €
Honoraires charge vendeur

Contactez votre consultant megAgence : Abdelaziz BENAMARA, Tél. : 0785600508, E-mail : abdelaziz.benamara@megagence.com - EI - Agent commercial immatriculé au RSAC de PONTOISE sous le numéro 390 085 041

Afficher plus de détails

Informations sur ce bien :

L'intérieur :

  • 8 pièces
  • 114 m²
    Informations complémentaires
    Surface commerciale : 114 m²

Autres :

  • Année de construction :
    1970
Synthèse
Local commercial à Arnouville
382 000 €
Surface : 114 m²
Prix au m² : 3 351 €
Transaction :
Achat (professionnels)
Référence :
183334
Date de publication :
Il y a plus de 7 jours
Local commercial - 114 m² - 8 pièces
Agent
MegAgence
MegAgence
Abdelaziz BENAMARA
Appeler
Écrire
Mettre en avant cette annonce
Signaler une erreur

Localisation :

L'adresse exacte n'est pas renseignée. Le bien se situe dans cette zone.

Performance énergétique :

Date du diagnostic : 09 avril 2024
Annonces similaires
Annonces immobilières récentes