• Terrain - 908 m²
  • Terrain - 908 m²
  • Terrain - 908 m²
  • Terrain - 908 m²
39 900 €
908 m²

Description :

Plus de photos, de détails et possibilité de réserver une visite sur Hellobien.

Sur la commune d'Arancou, venez découvrir ce terrain constructible arboré, situé au calme.

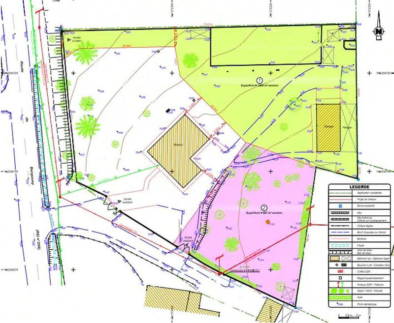
Terrain de couleur rose sur le plan, d'une superficie de 908m² à 39 900euros frais d'agence inclus.

Terrain adjacent, de couleur verte sur le plan, en vente également. Achat simultané des deux terrains possible.

Rejoignez la ville de Peyrehorade en 15 min, Bayonne en 35 min et Pau en 1h.

Un accès est déjà existant, les fluides sont en bordures du terrain, l'étude des sols a été réalisée et le permis d'aménager a été accordé.

Prévoir le raccordement à l'eau et à l'électricité pour la future construction ainsi que l'installation d'un assainissement individuel.

Secteur AC1. Eglise d'Arancou et Grotte Bourrouilla

Les terrains sont de nouveau disponibles à la vente, les acquéreurs initiaux n'ayant pu obtenir leur financement.

Afficher plus de détails

Informations sur ce bien :

L'intérieur :

  • 908 m²

Terrain :

  • Viabilisé :
    Non
Synthèse
Terrain à Arancou
39 900 €
Surface : 908 m²
Prix au m² : 44 €
Transaction :
Achat
Référence :
315
Date de publication :
Aujourd'hui à 08:47
Terrain - 908 m²
Agent
Maxihome
Maxihome
EASYBIEN
Appeler
Écrire
Mettre en avant cette annonce
Signaler une erreur

Localisation :

L'adresse exacte n'est pas renseignée. Le bien se situe dans cette zone.
Annonces similaires
Annonces immobilières récentes