Local d'activité / Entrepôt - 740 m² à Antibes
Description :
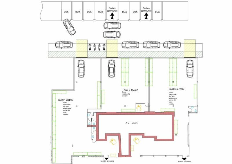
Le cabinet LOCOPRO vous propose à la location un ensemble de locaux d'activité d'une superficie totale d'environ 740 m², divisibles comme suit :LOT 1 : 284 m² (WC et lave-mains), porte sectionnelle de 3 x 3 m, hauteur sous plafond de 3 m, deux emplacements de parking.LOT 2 : 184 m² (WC et lave-mains), porte sectionnelle de 3 x 3 m, hauteur sous plafond de 3 m, un emplacement de parking.LOT 3 : 272 m² (WC et lave-mains), porte sectionnelle de 3 x 3 m, hauteur sous plafond de 3 m, deux emplacements de parking.Les locaux sont situés en rez-de-chaussée au sein d'une copropriété mixte, à proximité immédiate du bord de mer et des plages, idéalement positionnés pour des activités telles que celles des plagistes ou des artisans.Conditions d'exploitation :Activités sans nuisances sonores ou olfactives.Accès limité à des poids lourds de 19 tonnes maximum.Pour plus d'informations ou organiser une visite, contactez-nous.
- Type de bail : Commercial
- Durée : 3/6/9 ans
- Préavis : 6 mois
- Fiscalité : TVA
- Indice : ILC / ILAT
- Indexation : Annuelle, date prise effet
- Dépôt de garantie : 3 mois HT/HC
- Loyers et charges : Trimestriels et d'avance
Informations sur ce bien :
L'intérieur :
-
740 m²Informations complémentairesSurface d'activité : 740 m²
Min. : 184 m²
Copropriété :
-
Taxe foncière :4 895 €
Localisation :
Location de locaux d'activités et entrepôts à proximité
- 7 location de locaux d'activités et entrepôts à Vallauris (5.7 km)
- 3 location de locaux d'activités et entrepôts au Cannet (8.6 km)
- 2 location de locaux d'activités et entrepôts à Cannes (9.2 km)
- 1 location de local d'activité et entrepôt à Cagnes-sur-Mer (9.5 km)
- 12 location de locaux d'activités et entrepôts à Mougins (9.9 km)
- 20 location de locaux d'activités et entrepôts à Valbonne (11.5 km)
- 2 location de locaux d'activités et entrepôts à Saint-Laurent-du-Var (11.6 km)
- 6 location de locaux d'activités et entrepôts à Mouans-Sartoux (13.1 km)
- 2 location de locaux d'activités et entrepôts à La Roquette-sur-Siagne (13.7 km)