Retour
Rechercher
Lieu
Où ?
    Type de bien
    Quel type de projet ?
    Particulier Entreprise
    Quel type de bien ?
        Prix
        Quel budget ?
              Surface
              Quelle surface ?
                    Pièces
                    Combien de pièces ?
                      Combien de chambres ?
                          4

                          Ventes de biens immobiliers neufs à Anthon

                          Recherche 4
                          Carte
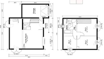
                          • Maison - 94 m² - 4 pièces
                          • Maison - 94 m² - 4 pièces
                          • Maison - 94 m² - 4 pièces
                          • Maison - 94 m² - 4 pièces
                          • Maison - 94 m² - 4 pièces
                          • Maison - 94 m² - 4 pièces Cliquez pour voir les 6 photos

                          Maison - 94 m² - 4 pièces

                          366 700 €
                          OFFRE EXCEPTIONNELLE: 10m² OFFERT + 1 PACK AU CHOIXProduit rare à saisir au plus vite.Situé sur la jolie commune d'Anthon dans un cadre calme et arboré.Sur une parcelle de 439m² entièrement viabilisée, Maisons punch vous propose une construction neuve à étage de 94m².Cette maison est composée d’une partie jour avec une très belle pièce de vie de 45m² avec cuisine ouverte sur le
                          Professionnel Publié aujourd'hui à 18:48
                          Anthon Neuf 3 ch 1 sdb
                          • Maison - 94 m² - 4 pièces
                          • Maison - 94 m² - 4 pièces
                          • Maison - 94 m² - 4 pièces
                          • Maison - 94 m² - 4 pièces
                          • Maison - 94 m² - 4 pièces
                          • Maison - 94 m² - 4 pièces Cliquez pour voir les 7 photos

                          Maison - 94 m² - 4 pièces

                          360 000 €
                          OFFRE EXCEPTIONNELLE : 10m² OFFERT + PACK DECO OU PACK CUISINE AU CHOIX.Votre Maison à étage de 94m² Habitables entièrement personnalisable ! Maison Punch vous propose une magnifique maison de à étage de 94 m² sur la commune de Anthon pensée pour le confort et la modernité.Sur une parcelle de 471m² entièrement viabilisé, Nous vous proposons une construction neuve entièrement mo
                          Professionnel Publié aujourd'hui à 18:48
                          Anthon Neuf 3 ch 1 sdb
                          • Maison - 110 m² - 5 pièces
                          • Maison - 110 m² - 5 pièces
                          • Maison - 110 m² - 5 pièces
                          • Maison - 110 m² - 5 pièces

                          Maison - 110 m² - 5 pièces

                          415 000 €
                          À Anthon – Maison contemporaine de 110 m² sur 471 m² de terrain.Vous rêvez d’un cadre de vie calme, lumineux et moderne ? Cette maison à étage de 110 m2 et clé en main coche toutes les cases : 4 chambres, beau séjour ouvert sur jardin, finitions haut de gamme, RE 2020 & confort absolu. Maison SUR-MESURE & personnalisable.Cette magnifique maison moderne séduit par son design élé
                          Professionnel Publié le 28 mars à 10:46
                          Anthon Neuf 4 ch 1 sdb
                          • Maison - 150 m² - 5 pièces
                          • Maison - 150 m² - 5 pièces
                          • Maison - 150 m² - 5 pièces
                          • Maison - 150 m² - 5 pièces

                          Maison - 150 m² - 5 pièces

                          585 000 €
                          À Anthon – Maison contemporaine de 150 m² sur 945 m² de terrain.Vous rêvez d’un cadre de vie calme, lumineux et moderne ? Cette maison à étage de 150 m2 et clé en main coche toutes les cases : 4 chambres dont une suite parentale, beau séjour ouvert sur jardin, espace télétravail, finitions haut de gamme, RE 2020 & confort absolu. Maison SUR-MESURE & personnalisable.Cette magnif
                          Professionnel Publié le 28 mars à 10:46
                          Anthon Neuf 4 ch 2 sdb
                          11

                          Ventes de biens immobiliers neufs à Chavanoz

                          (1.4 km)
                          • Maison - 94 m² - 4 pièces
                          • Maison - 94 m² - 4 pièces
                          • Maison - 94 m² - 4 pièces
                          • Maison - 94 m² - 4 pièces
                          • Maison - 94 m² - 4 pièces
                          • Maison - 94 m² - 4 pièces Cliquez pour voir les 7 photos

                          Maison - 94 m² - 4 pièces

                          277 200 €
                          OFFRE EXCEPTIONNELLE: 10m² OFFERT + 1 PACK AU CHOIXProduit rare à saisir au plus vite.Situé sur la jolie commune de Blyes dans un cadre calme et arboré.Sur une parcelle de 277m² entièrement viabilisée, Maisons punch vous propose une construction neuve à étage de 94m².Cette maison est composée d’une partie jour avec une très belle pièce de vie de 45m² avec cuisine ouverte sur le
                          Professionnel Publié aujourd'hui à 18:48 Non géolocalisée
                          Chavanoz Neuf 3 ch 1 sdb
                          • Maison - 94 m² - 4 pièces
                          • Maison - 94 m² - 4 pièces
                          • Maison - 94 m² - 4 pièces
                          • Maison - 94 m² - 4 pièces
                          • Maison - 94 m² - 4 pièces
                          • Maison - 94 m² - 4 pièces Cliquez pour voir les 7 photos

                          Maison - 94 m² - 4 pièces

                          360 000 €
                          OFFRE EXCEPTIONNELLE : 10m² OFFERT + PACK DECO OU PACK CUISINE AU CHOIX.Votre Maison à étage de 94m² Habitables entièrement personnalisable ! Maison Punch vous propose une magnifique maison de à étage de 94 m² sur la commune de Anthon pensée pour le confort et la modernité.Sur une parcelle de 471m² entièrement viabilisé, Nous vous proposons une construction neuve entièrement mo
                          Professionnel Publié aujourd'hui à 18:48 Non géolocalisée
                          Chavanoz Neuf 3 ch 1 sdb
                          • Maison - 94 m² - 4 pièces
                          • Maison - 94 m² - 4 pièces
                          • Maison - 94 m² - 4 pièces
                          • Maison - 94 m² - 4 pièces
                          • Maison - 94 m² - 4 pièces

                          Maison - 94 m² - 4 pièces

                          307 500 €
                          OFFRE EXCEPTIONNELLE : 10m² OFFERT + PACK DECO OU PACK CUISINE AU CHOIX.Votre Maison à étage de 94m² Habitables entièrement personnalisable ! Maison Punch vous propose une magnifique maison de à étage de 94 m² sur la commune de Chavanoz pensée pour le confort et la modernité.Sur une parcelle de 408m² entièrement viabilisé, Nous vous proposons une construction neuve entièrement
                          Professionnel Publié aujourd'hui à 18:48
                          Chavanoz Neuf 3 ch 1 sdb
                          • Maison - 85 m² - 4 pièces
                          • Maison - 85 m² - 4 pièces
                          • Maison - 85 m² - 4 pièces
                          • Maison - 85 m² - 4 pièces
                          • Maison - 85 m² - 4 pièces

                          Maison - 85 m² - 4 pièces

                          287 000 €
                          OFFRE EXCEPTIONNELLE : 10m² OFFERT + PACK DECO OU PACK CUISINE AU CHOIX.Votre Maison Plain-Pied de 85 m² Habitables entièrement personnalisable ! Maison Punch vous propose une magnifique maison de plain-pied de 85 m² sur la commune de Chavanoz pensée pour le confort et la modernité.Sur une parcelle de 408m² entièrement viabilisé, Nous vous proposons une construction neuve entiè
                          Professionnel Publié aujourd'hui à 18:48
                          Chavanoz Neuf 3 ch 1 sdb
                          • Maison - 85 m² - 4 pièces
                          • Maison - 85 m² - 4 pièces
                          • Maison - 85 m² - 4 pièces
                          • Maison - 85 m² - 4 pièces
                          • Maison - 85 m² - 4 pièces

                          Maison - 85 m² - 4 pièces

                          326 000 €
                          OFFRE EXCEPTIONNELLE : 10m² OFFERT + PACK DECO OU PACK CUISINE AU CHOIX.Votre Maison Plain-Pied de 85 m² Habitables entièrement personnalisable ! Maison Punch vous propose une magnifique maison de plain-pied de 85 m² sur la commune de Loyettes pensée pour le confort et la modernité.Sur une parcelle de 536m² entièrement viabilisé, Nous vous proposons une construction neuve entiè
                          Professionnel Publié aujourd'hui à 18:48 Non géolocalisée
                          Chavanoz Neuf 3 ch 1 sdb
                          8

                          Ventes de biens immobiliers neufs à Loyettes

                          (3.1 km)
                          • Maison - 79 m² - 4 pièces
                          • Maison - 79 m² - 4 pièces
                          • Maison - 79 m² - 4 pièces
                          • Maison - 79 m² - 4 pièces
                          • Maison - 79 m² - 4 pièces

                          Maison - 79 m² - 4 pièces

                          257 400 €
                          OFFRE EXCEPTIONNELLE: 10m² OFFERT + 1 PACK AU CHOIXProduit rare à saisir au plus vite.Situé sur la jolie commune de Hières sur amby dans un cadre calme et arboré.Sur une parcelle de 406m² entièrement viabilisée, Maisons punch vous propose une construction neuve de plain-pied de 80m².Cette maison est composée d’une partie jour avec une très belle pièce de vie de 38m² avec cuisin
                          Professionnel Publié aujourd'hui à 18:49 Non géolocalisée
                          Loyettes Neuf 3 ch 1 sdb
                          • Maison - 85 m² - 4 pièces
                          • Maison - 85 m² - 4 pièces
                          • Maison - 85 m² - 4 pièces
                          • Maison - 85 m² - 4 pièces
                          • Maison - 85 m² - 4 pièces

                          Maison - 85 m² - 4 pièces

                          326 000 €
                          OFFRE EXCEPTIONNELLE : 10m² OFFERT + PACK DECO OU PACK CUISINE AU CHOIX.Votre Maison Plain-Pied de 85 m² Habitables entièrement personnalisable ! Maison Punch vous propose une magnifique maison de plain-pied de 85 m² sur la commune de Loyettes pensée pour le confort et la modernité.Sur une parcelle de 536m² entièrement viabilisé, Nous vous proposons une construction neuve entiè
                          Professionnel Publié aujourd'hui à 18:48
                          Loyettes Neuf 3 ch 1 sdb
                          • Maison - 86 m² - 4 pièces
                          • Maison - 86 m² - 4 pièces
                          • Maison - 86 m² - 4 pièces
                          • Maison - 86 m² - 4 pièces
                          • Maison - 86 m² - 4 pièces
                          • Maison - 86 m² - 4 pièces Cliquez pour voir les 10 photos

                          Maison - 86 m² - 4 pièces

                          337 000 €
                          Dernier lotEt si vous construisiez la maison de vos rêves ? " Imaginez une maison parfaitement adaptée à votre style de vie, pensée selon vos envies et construite pour votre confort. Plus qu'un projet, c'est une aventure unique ou chaque détail compte : - Un accompagnement de A a Z - Un design à votre image - un espace optimisé pour votre bien-être - Des Matériaux modernes
                          Professionnel Publié le 28 mars à 18:46
                          Loyettes Neuf 3 ch 1 sdb
                          • Maison - 90 m² - 4 pièces
                          • Maison - 90 m² - 4 pièces
                          • Maison - 90 m² - 4 pièces
                          • Maison - 90 m² - 4 pièces
                          • Maison - 90 m² - 4 pièces
                          • Maison - 90 m² - 4 pièces Cliquez pour voir les 7 photos

                          Maison - 90 m² - 4 pièces

                          327 000 €
                          Dernier lotEt si vous construisiez la maison de vos rêves ? " Imaginez une maison parfaitement adaptée à votre style de vie, pensée selon vos envies et construite pour votre confort. Plus qu'un projet, c'est une aventure unique ou chaque détail compte : - Un accompagnement de A a Z - Un design à votre image - un espace optimisé pour votre bien-être - Des Matériaux modernes
                          Professionnel Publié le 28 mars à 18:46
                          Loyettes Neuf 3 ch 1 sdb
                          • Maison - 90 m² - 4 pièces
                          • Maison - 90 m² - 4 pièces
                          • Maison - 90 m² - 4 pièces
                          • Maison - 90 m² - 4 pièces
                          • Maison - 90 m² - 4 pièces
                          • Maison - 90 m² - 4 pièces Cliquez pour voir les 8 photos

                          Maison - 90 m² - 4 pièces

                          330 000 €
                          Dernier lotEt si vous construisiez la maison de vos rêves ? " Imaginez une maison parfaitement adaptée à votre style de vie, pensée selon vos envies et construite pour votre confort. Plus qu'un projet, c'est une aventure unique ou chaque détail compte : - Un accompagnement de A a Z - Un design à votre image - un espace optimisé pour votre bien-être - Des Matériaux modernes
                          Professionnel Publié le 28 mars à 18:46
                          Loyettes Neuf 3 ch 1 sdb
                          3

                          Ventes de biens immobiliers neufs à Saint-Maurice-de-Gourdans

                          (3.9 km)
                          • Maison - 135 m² - 5 pièces
                          • Maison - 135 m² - 5 pièces
                          • Maison - 135 m² - 5 pièces

                          Maison - 135 m² - 5 pièces

                          499 000 €
                          Demeures Caladoises vous propose de poser vos valises sur la commune de Saint-Maurice-de-Gourdans, dans un environnement calme et résidentiel, découvrez ce beau terrain de 1 165 m², idéal pour accueillir votre future maison familiale.Nous vous proposons un projet de construction sur mesure avec Demeures Caladoises, constructeur de maisons individuelles reconnu depuis 50 ans.Pro
                          Professionnel Publié aujourd'hui à 18:50
                          Saint-Maurice-de-Gourdans Neuf 4 ch 1 sdb
                          • Maison - 100 m² - 5 pièces
                          • Maison - 100 m² - 5 pièces
                          • Maison - 100 m² - 5 pièces
                          • Maison - 100 m² - 5 pièces
                          • Maison - 100 m² - 5 pièces
                          • Maison - 100 m² - 5 pièces Cliquez pour voir les 6 photos

                          Maison - 100 m² - 5 pièces

                          325 000 €
                          Demeures Caladoises vous propose un projet de construction sur la commune recherchée de Saint Maurice de GourdansAu cœur d’un environnement résidentiel calme et qualitatif découvrez ce terrain viabilisé de 400 m² idéalement situé à proximité des commodités des axes routiers et du cadre naturel préservé de la Plaine de l AinSur cette parcelle Demeures Caladoises vous accompagne
                          Professionnel Publié il y a plus de 7 jours
                          Saint-Maurice-de-Gourdans Neuf 4 ch 1 sdb
                          • Maison - 120 m² - 5 pièces
                          • Maison - 120 m² - 5 pièces
                          • Maison - 120 m² - 5 pièces
                          • Maison - 120 m² - 5 pièces

                          Maison - 120 m² - 5 pièces

                          389 000 €
                          Demeures Caladoises vous propose un projet de construction d exception sur la commune très recherchée de Saint Maurice de GourdansDans un environnement résidentiel privilégié et préservé découvrez ce terrain viabilisé de 600 m² offrant un cadre de vie calme verdoyant et harmonieux à proximité immédiate des commodités des grands axes et du bassin de la Plaine de l AinSur cette p
                          Professionnel Publié il y a plus de 7 jours
                          Saint-Maurice-de-Gourdans Neuf 4 ch 1 sdb
                          5

                          Ventes de biens immobiliers neufs à Villette-d'Anthon

                          (4.1 km)
                          • Maison - 94 m² - 4 pièces
                          • Maison - 94 m² - 4 pièces
                          • Maison - 94 m² - 4 pièces
                          • Maison - 94 m² - 4 pièces
                          • Maison - 94 m² - 4 pièces
                          • Maison - 94 m² - 4 pièces Cliquez pour voir les 6 photos

                          Maison - 94 m² - 4 pièces

                          366 700 €
                          OFFRE EXCEPTIONNELLE: 10m² OFFERT + 1 PACK AU CHOIXProduit rare à saisir au plus vite.Situé sur la jolie commune d'Anthon dans un cadre calme et arboré.Sur une parcelle de 439m² entièrement viabilisée, Maisons punch vous propose une construction neuve à étage de 94m².Cette maison est composée d’une partie jour avec une très belle pièce de vie de 45m² avec cuisine ouverte sur le
                          Professionnel Publié aujourd'hui à 18:49 Non géolocalisée
                          Villette-d'Anthon Neuf 3 ch 1 sdb
                          • Maison - 150 m² - 5 pièces
                          • Maison - 150 m² - 5 pièces
                          • Maison - 150 m² - 5 pièces
                          • Maison - 150 m² - 5 pièces

                          Maison - 150 m² - 5 pièces

                          625 000 €
                          À Villette d’Anthon – Maison contemporaine de 150 m² sur 915 m² de terrain.Vous rêvez d’un cadre de vie calme, lumineux et moderne ? Cette maison à étage de 150 m2 et clé en main coche toutes les cases : 4 chambres dont une suite parentale, bureau, grand séjour ouvert sur jardin exposé sud, finitions haut de gamme, RE 2020 & confort absolu. Maison SUR-MESURE & personnalisable.C
                          Professionnel Publié le 28 mars à 10:46
                          Villette-d'Anthon Neuf 4 ch 2 sdb
                          • Maison - 140 m² - 6 pièces
                          • Maison - 140 m² - 6 pièces
                          • Maison - 140 m² - 6 pièces
                          • Maison - 140 m² - 6 pièces

                          Maison - 140 m² - 6 pièces

                          569 000 €
                          À Villette d’Anthon – Maison contemporaine de 140 m² sur 1331 m² de terrain.Vous rêvez d’un cadre de vie calme, lumineux et moderne ? Cette maison à étage de 140 m2 et clé en main coche toutes les cases : 5 chambres dont une suite parentale, grand séjour ouvert sur jardin exposé sud, finitions haut de gamme, RE 2020 & confort absolu. Maison SUR-MESURE & personnalisable.OFFRE PR
                          Professionnel Publié le 28 mars à 10:46
                          Villette-d'Anthon Neuf 5 ch 2 sdb
                          • Maison - 130 m² - 5 pièces
                          • Maison - 130 m² - 5 pièces
                          • Maison - 130 m² - 5 pièces
                          • Maison - 130 m² - 5 pièces

                          Maison - 130 m² - 5 pièces

                          549 000 €
                          À Villette d’Anthon – Maison contemporaine de 130 m² sur 1311 m² de terrain.Vous rêvez d’un cadre de vie calme, lumineux et moderne ? Cette maison à étage de 130 m2 et clé en main coche toutes les cases : 4 chambres dont une suite parentale, grand séjour ouvert sur jardin exposé sud, finitions haut de gamme, RE 2020 & confort absolu. Maison SUR-MESURE & personnalisable.OFFRE PR
                          Professionnel Publié le 28 mars à 10:46
                          Villette-d'Anthon Neuf 4 ch 2 sdb
                          • Maison - 140 m² - 6 pièces
                          • Maison - 140 m² - 6 pièces
                          • Maison - 140 m² - 6 pièces
                          • Maison - 140 m² - 6 pièces

                          Maison - 140 m² - 6 pièces

                          569 000 €
                          À Villette d’Anthon – Maison contemporaine de 140 m² sur 1311 m² de terrain.Vous rêvez d’un cadre de vie calme, lumineux et moderne ? Cette maison à étage de 140 m2 et clé en main coche toutes les cases : 5 chambres dont une suite parentale, grand séjour ouvert sur jardin exposé sud, finitions haut de gamme, RE 2020 & confort absolu. Maison SUR-MESURE & personnalisable.OFFRE PR
                          Professionnel Publié le 28 mars à 10:46
                          Villette-d'Anthon Neuf 5 ch 2 sdb
                          15

                          Ventes de biens immobiliers neufs à Pont-de-Chéruy

                          (4.5 km)
                          • Maison - 90 m² - 4 pièces
                          • Maison - 90 m² - 4 pièces
                          • Maison - 90 m² - 4 pièces
                          • Maison - 90 m² - 4 pièces
                          • Maison - 90 m² - 4 pièces
                          • Maison - 90 m² - 4 pièces Cliquez pour voir les 6 photos

                          Maison - 90 m² - 4 pièces

                          299 000 €
                          Sur la commune de Pont-de-Chéruy (38), dans un environnement résidentiel agréable, découvrez ce projet dans un futur lotissement qui accueillera votre maison individuelle à étage proposé par Demeures Caladoises.Avec 90?m² habitables, cette maison à étage est idéale. Elle offre un espace de vie lumineux avec cuisine ouverte et un séjour accueillant, parfait pour profiter de mome
                          Professionnel Publié aujourd'hui à 18:50
                          Pont-de-Chéruy Neuf 3 ch 1 sdb
                          • Maison - 94 m² - 4 pièces
                          • Maison - 94 m² - 4 pièces
                          • Maison - 94 m² - 4 pièces
                          • Maison - 94 m² - 4 pièces
                          • Maison - 94 m² - 4 pièces
                          • Maison - 94 m² - 4 pièces Cliquez pour voir les 6 photos

                          Maison - 94 m² - 4 pièces

                          281 000 €
                          OFFRE EXCEPTIONNELLE : 10m² OFFERT + PACK DECO OU PACK CUISINE AU CHOIX.Votre Maison à étage de 94m² Habitables entièrement personnalisable ! Maison Punch vous propose une magnifique maison de à étage de 94 m² sur la commune de Pont de Cheruy pensée pour le confort et la modernité.Sur une parcelle de 300m² entièrement viabilisé, Nous vous proposons une construction neuve entièr
                          Professionnel Publié aujourd'hui à 18:48 Non géolocalisée
                          Pont-de-Chéruy Neuf 3 ch 1 sdb
                          • Maison - 79 m² - 4 pièces
                          • Maison - 79 m² - 4 pièces
                          • Maison - 79 m² - 4 pièces
                          • Maison - 79 m² - 4 pièces
                          • Maison - 79 m² - 4 pièces
                          • Maison - 79 m² - 4 pièces Cliquez pour voir les 8 photos

                          Maison - 79 m² - 4 pièces

                          268 000 €
                          Et si votre projet de maison prenait enfin vie dans un cadre calme et verdoyant ?Je vous propose un projet de construction de maison individuelle neuve, situé sur la commune de Pont-de-Chéruy, à seulement quelques minutes des principaux axes, dans un environnement recherché pour sa tranquillité.Le projet comprend une maison d’environ 80m² habitables, fonctionnelle et lumineuse,
                          Professionnel Publié aujourd'hui à 18:46
                          Pont-de-Chéruy Neuf 3 ch 1 sdb
                          • Maison - 79 m² - 4 pièces
                          • Maison - 79 m² - 4 pièces
                          • Maison - 79 m² - 4 pièces
                          • Maison - 79 m² - 4 pièces
                          • Maison - 79 m² - 4 pièces
                          • Maison - 79 m² - 4 pièces Cliquez pour voir les 8 photos

                          Maison - 79 m² - 4 pièces

                          283 000 €
                          Et si votre projet de maison prenait enfin vie dans un cadre calme et verdoyant ?Je vous propose un projet de construction de maison individuelle neuve, situé sur la commune de Pont-de-Chéruy, à seulement quelques minutes des principaux axes, dans un environnement recherché pour sa tranquillité.Le projet comprend une maison d’environ 80m² habitables, fonctionnelle et lumineuse,
                          Professionnel Publié aujourd'hui à 18:46
                          Pont-de-Chéruy Neuf 3 ch 1 sdb
                          • Maison - 90 m² - 4 pièces
                          • Maison - 90 m² - 4 pièces
                          • Maison - 90 m² - 4 pièces
                          • Maison - 90 m² - 4 pièces
                          • Maison - 90 m² - 4 pièces
                          • Maison - 90 m² - 4 pièces Cliquez pour voir les 6 photos

                          Maison - 90 m² - 4 pièces

                          290 000 €
                          NouveauEt si vous construisiez la maison de vos rêves ? " Imaginez une maison parfaitement adaptée à votre style de vie, pensée selon vos envies et construite pour votre confort. Plus qu'un projet, c'est une aventure unique ou chaque détail compte : - Un accompagnement de A a Z - Un design à votre image - un espace optimisé pour votre bien-être - Des Matériaux modernes et d
                          Professionnel Publié le 28 mars à 18:46
                          Pont-de-Chéruy Neuf 3 ch 1 sdb
                          6

                          Ventes de biens immobiliers neufs à Charvieu-Chavagneux

                          (4.9 km)
                          • Maison - 94 m² - 4 pièces
                          • Maison - 94 m² - 4 pièces
                          • Maison - 94 m² - 4 pièces
                          • Maison - 94 m² - 4 pièces
                          • Maison - 94 m² - 4 pièces
                          • Maison - 94 m² - 4 pièces Cliquez pour voir les 6 photos

                          Maison - 94 m² - 4 pièces

                          281 000 €
                          OFFRE EXCEPTIONNELLE : 10m² OFFERT + PACK DECO OU PACK CUISINE AU CHOIX.Votre Maison à étage de 94m² Habitables entièrement personnalisable ! Maison Punch vous propose une magnifique maison de à étage de 94 m² sur la commune de Pont de Cheruy pensée pour le confort et la modernité.Sur une parcelle de 300m² entièrement viabilisé, Nous vous proposons une construction neuve entièr
                          Professionnel Publié aujourd'hui à 18:48 Non géolocalisée
                          Charvieu-Chavagneux Neuf 3 ch 1 sdb
                          • Maison - 85 m² - 4 pièces
                          • Maison - 85 m² - 4 pièces
                          • Maison - 85 m² - 4 pièces
                          • Maison - 85 m² - 4 pièces
                          • Maison - 85 m² - 4 pièces

                          Maison - 85 m² - 4 pièces

                          287 000 €
                          OFFRE EXCEPTIONNELLE : 10m² OFFERT + PACK DECO OU PACK CUISINE AU CHOIX.Votre Maison Plain-Pied de 85 m² Habitables entièrement personnalisable ! Maison Punch vous propose une magnifique maison de plain-pied de 85 m² sur la commune de Chavanoz pensée pour le confort et la modernité.Sur une parcelle de 408m² entièrement viabilisé, Nous vous proposons une construction neuve entiè
                          Professionnel Publié aujourd'hui à 18:48 Non géolocalisée
                          Charvieu-Chavagneux Neuf 3 ch 1 sdb
                          • Maison - 100 m² - 4 pièces
                          • Maison - 100 m² - 4 pièces
                          • Maison - 100 m² - 4 pièces
                          • Maison - 100 m² - 4 pièces

                          Maison - 100 m² - 4 pièces

                          380 000 €
                          À Charvieu – Maison moderne de 100 m² sur 767 m² de terrain.Vous rêvez d’un cadre de vie calme et verdoyant ? Cette maison à étage de 100 m2 et clé en main coche toutes les cases : 3 chambres, grand séjour ouvert sur jardin, finitions haut de gamme, RE 2020 & confort absolu. Maison SUR-MESURE & personnalisable.Cette magnifique maison séduit par sa luminosité naturelle et son ag
                          Professionnel Publié le 28 mars à 10:46
                          Charvieu-Chavagneux Neuf 3 ch 1 sdb
                          • Maison - 85 m² - 5 pièces
                          • Maison - 85 m² - 5 pièces
                          • Maison - 85 m² - 5 pièces
                          • Maison - 85 m² - 5 pièces
                          • Maison - 85 m² - 5 pièces
                          • Maison - 85 m² - 5 pièces Cliquez pour voir les 7 photos

                          Maison - 85 m² - 5 pièces

                          301 250 €
                          Maison neuve à CONSTRUIRE à Charvieu-Chavagneux (38) sur terrain constructible non viabilisé de 479 m² au calme : votre maison sur mesure avec Maisons Arlogis. Située en Isère, à seulement 25 km de Lyon, Charvieu-Chavagneux est une commune dynamique qui offre un cadre de vie agréable entre ville et nature. Avec ses commerces, écoles, infrastructures sportives et espaces verts,
                          Professionnel Publié il y a plus de 7 jours
                          Charvieu-Chavagneux Neuf 3 ch Exposition Sud
                          • Maison - 85 m² - 5 pièces
                          • Maison - 85 m² - 5 pièces
                          • Maison - 85 m² - 5 pièces
                          • Maison - 85 m² - 5 pièces
                          • Maison - 85 m² - 5 pièces
                          • Maison - 85 m² - 5 pièces Cliquez pour voir les 7 photos

                          Maison - 85 m² - 5 pièces

                          283 750 €
                          Maison neuve à CONSTRUIRE à Charvieu-Chavagneux (38) sur terrain constructible non viabilisé de 479 m² au calme : votre maison sur mesure avec Maisons Arlogis. Située en Isère, à seulement 25 km de Lyon, Charvieu-Chavagneux est une commune dynamique qui offre un cadre de vie agréable entre ville et nature. Avec ses commerces, écoles, infrastructures sportives et espaces verts,
                          Professionnel Publié il y a plus de 7 jours
                          Charvieu-Chavagneux Neuf 3 ch Exposition Sud

                          Bien immobiliers neufs à Anthon. Toutes les ventes immobilières à Anthon et aux environs.

                          Recherche en cours...
                          Rechercher dans cette zone