• Appartement - 70 m² - 3 pièces
  • Appartement - 70 m² - 3 pièces
  • Appartement - 70 m² - 3 pièces
418 000 €
70 m²
3 pièces
2 chambres

Description :

T3 d'exception - Terrasse - Annecy / Branchy
Entre Seynod-centre et Chavanod, adresse privilégiée
Au coeur du hameau prisé de Branchy, découvrez un appartement où confort, élégance et douceur de vivre se conjuguent avec harmonie.
Entre Seynod-centre et Chavanod, dans un environnement résidentiel soigné, ce T3 de 70 m² s'adresse à ceux qui recherchent un lieu rare, fonctionnel et raffiné, à 10 minutes d'Annecy et à proximité immédiate des axes Annecy - Genève - Aix-les-Bains.

Un espace de vie lumineux, pensé pour le confort

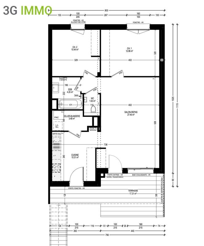
La pièce de vie d'environ 27 m², baignée de lumière grâce à de larges ouvertures, s'ouvre sur une terrasse généreuse d'environ 17 m², idéale pour prolonger votre quotidien en extérieur, dans un cadre verdoyant et paisible.
La cuisine, distincte et élégamment dimensionnée (10 m²), permet une organisation fluide et conviviale.
Un cellier-buanderie complète cet ensemble, ajoutant une fonctionnalité appréciable au quotidien.
Un coin nuit confortable et parfaitement distribué
2 chambres.
Salle de bains raffinée, équipée d'une baignoire
WC indépendant

Chaque espace a été conçu pour offrir confort, discrétion et une atmosphère douce.

Prestations haut de gamme
Les prestations intérieures et extérieures se distinguent par leur qualité :
Chauffage pompe à chaleur par le sol pour un confort optimal
Menuiseries aluminium, occultations performantes
Finitions soignées et matériaux sélectionnés
Aménagements paysagers harmonieux et végétalisés
Circulation piétonne et environnement résidentiel maîtrisé

L'appartement dispose d'une place de stationnement couverte, complétée par un cellier extérieur, véritable espace atelier / rangement, idéal pour stocker vélos, équipements sportifs, outillage ou créer un espace de bricolage organisé.
Un ensemble particulièrement recherché sur le bassin annécien.

Un emplacement d'exception
À deux pas de Seynod-ville
À proximité immédiate du centre de Chavanod
10 minutes du centre d'Annecy
Accès rapide aux axes Annecy - Genève - Aix-les-Bains
Un cadre privilégié mêlant nature, accessibilité et qualité de vie.

Un bien rare, destiné aux amoureux du confort et de la sérénité

Ce T3 combine des volumes généreux, une terrasse profonde, des prestations de standing et un emplacement stratégique.
Une opportunité unique dans un secteur très recherché.

Nombre de lots de la Copropriété : 17

Honoraires à la charge du vendeur
Votre agent commercial 3G IMMO sur place EI - Valérie POURCHET inscrite au RSAC d'ANNECY n° 794 066 126
Selon l'article L.561.5 du Code Monétaire et Financier, pour l'organisation de la visite, la présentation d'une pièce d'identité vous sera demandée.
Les informations sur les risques auxquels ce bien est exposé sont disponibles sur le site Géorisques : www.georisques.gouv.fr

Les informations sur les risques auxquels ce bien est exposé sont disponibles sur le site Géorisques : www.georisques.gouv.fr

Afficher plus de détails

Informations sur ce bien :

L'intérieur :

  • 3 pièces
  • 70 m²
  • 2 Chambres
  • 1 Salle de bain

L'extérieur :

  • Terrasse
  • Parking

Autres :

  • Étage :
    RDC
    Informations complémentaires
    Nombre d'étages de la construction : 2

Copropriété :

  • Nombre de lots :
    17
Synthèse
Appartement à Annecy
418 000 €
Surface : 70 m²
Prix au m² : 5 971 €
Transaction :
Achat
Référence :
215567-LOT8VP
Date de publication :
Il y a plus de 7 jours
Appartement - 70 m² - 3 pièces
Agent
3gimmo
3gimmo
EI - Valérie POURCHET
Appeler
Écrire
Mettre en avant cette annonce
Signaler une erreur

Localisation :

L'adresse exacte n'est pas renseignée. Le bien se situe dans cette zone.

Performance énergétique :

Bien non soumis au Diagnostic de Performance Énergétique (DPE)

Annonces similaires
Annonces immobilières récentes