Maison - 63 m² - 3 pièces à Amilly

favoris
  • Maison - 63 m² - 3 pièces
  • Maison - 63 m² - 3 pièces
  • Maison - 63 m² - 3 pièces
  • Maison - 63 m² - 3 pièces
  • Maison - 63 m² - 3 pièces
  • Maison - 63 m² - 3 pièces
  • Maison - 63 m² - 3 pièces
  • Maison - 63 m² - 3 pièces
  • Maison - 63 m² - 3 pièces
  • Maison - 63 m² - 3 pièces
  • Maison - 63 m² - 3 pièces
  • Maison - 63 m² - 3 pièces
  • Maison - 63 m² - 3 pièces
168 990 €
63 m²
3 pièces
2 chambres

Description :

MAISON FONCTIONELLE AVEC SOUS-SOL TOTAL - AMILLY

Bienvenue chez vous ! Bien Serein Immobilier vous présente cette maison de 1961 d'une surface habitable d'environ 63 m², édifiée sur un terrain de 567 m².
Un bien idéal pour un premier achat ou un projet de rénovation, situé dans un environnement paisible à Amilly.

DÉCOUVREZ L'INTÉRIEUR

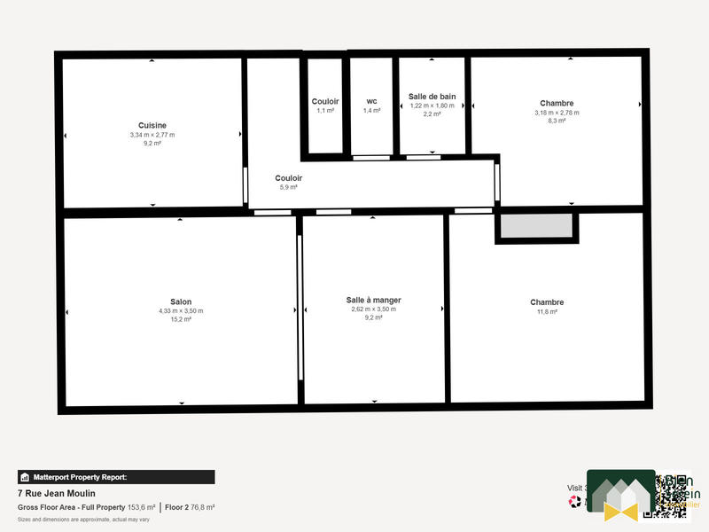
- La maison se compose de :
- Un salon / séjour lumineux
- Une cuisine indépendante
- Deux chambres
- Une salle de bain
- Un WC indépendant
- Un sous-sol total, offrant un bel espace de rangement, un atelier ou un garage

ESPACE EXTÉRIEUR

- Terrain de 567 m² clos
- Jardin agréable à aménager selon vos envies

CÔTÉ CONFORT

- Chauffage par chaudière fioul à condensation
- Bon DPE (classe D)
- Maison à rafraîchir ou rénover, offrant un fort potentiel d'évolution

L'EMPLACEMENT & LES PROXIMITÉS

- Commerces de proximité dans la commune d'Amilly
- École maternelle et élémentaire accessibles à pied
- Gare d'Amilly permettant de rejoindre Chartres et les communes voisines
- Arrêts de bus facilitant les déplacements du quotidien

Une maison pleine de possibilités, dans un cadre calme et recherché, à quelques minutes de Chartres.
Contactez dès maintenant votre agent AU pour organiser une visite ! ??

Honoraires à la charge du vendeur. Classe énergie D, Classe climat D Montant estimé des dépenses annuelles d'énergie pour un usage standard : entre 1603.00 € et 2170.00 € sur les années 2021, 2022 et 2023 (abonnements compris). Les informations sur les risques auxquels ce bien est exposé sont disponibles sur le site Géorisques : georisques.gouv.fr.

Votre conseiller Bien Serein immobilier : Charly CHESNEAU
Agent commercial (Entreprise individuelle)
RSAC 990 102 493

Afficher plus de détails

Informations sur ce bien :

L'intérieur :

  • 3 pièces
  • 63 m²
  • 2 Chambres
  • Cuisine séparée
    Informations complémentaires
    Séparée
  • 1 Salle de bain
  • 1 Toilette

L'extérieur :

  • Parking
  • Box

Autres :

  • Chauffage :
    Fioul
  • Année de construction :
    1961
  • Travaux à prévoir :
    Oui
Synthèse
Maison à Amilly
168 990 €
Surface : 63 m²
Prix au m² : 2 682 €
Transaction :
Achat
Référence :
740-BIENSEREIN28
Date de publication :
Il y a plus de 7 jours
Maison - 63 m² - 3 pièces
Performance énergétique
A
B
C
D
E
F
G
Gaz à effet de serre
A
B
C
D
E
F
G
Agent
Bien Serein immobilier
Charly CHESNEAU
Appeler
Écrire
Mettre en avant cette annonce
Signaler une erreur

Localisation :

L'adresse exacte n'est pas renseignée. Le bien se situe dans cette zone.

Performance énergétique :

Logement économe
A
B
C
D
218
kWh/m²/an
49
kg CO₂/m²/an
E
F
G
Logement énergivore
Faible émission de CO₂
A
B
C
D
49
kg CO₂/m²/an
E
F
G
Forte émission de CO₂
Date du diagnostic : 21 octobre 2024
Estimation des coûts annuels d’énergie du logement : 1 603 € à 2 170 €
Annonces similaires
Annonces immobilières récentes