Maison de ville - 112 m² - 4 pièces à Albigny-sur-Saône

favoris
  • Maison de ville - 112 m² - 4 pièces
  • Maison de ville - 112 m² - 4 pièces
  • Maison de ville - 112 m² - 4 pièces
  • Maison de ville - 112 m² - 4 pièces
  • Maison de ville - 112 m² - 4 pièces
  • Maison de ville - 112 m² - 4 pièces
  • Maison de ville - 112 m² - 4 pièces
  • Maison de ville - 112 m² - 4 pièces
  • Maison de ville - 112 m² - 4 pièces
200 000 €
112 m²
4 pièces
3 chambres

Description :

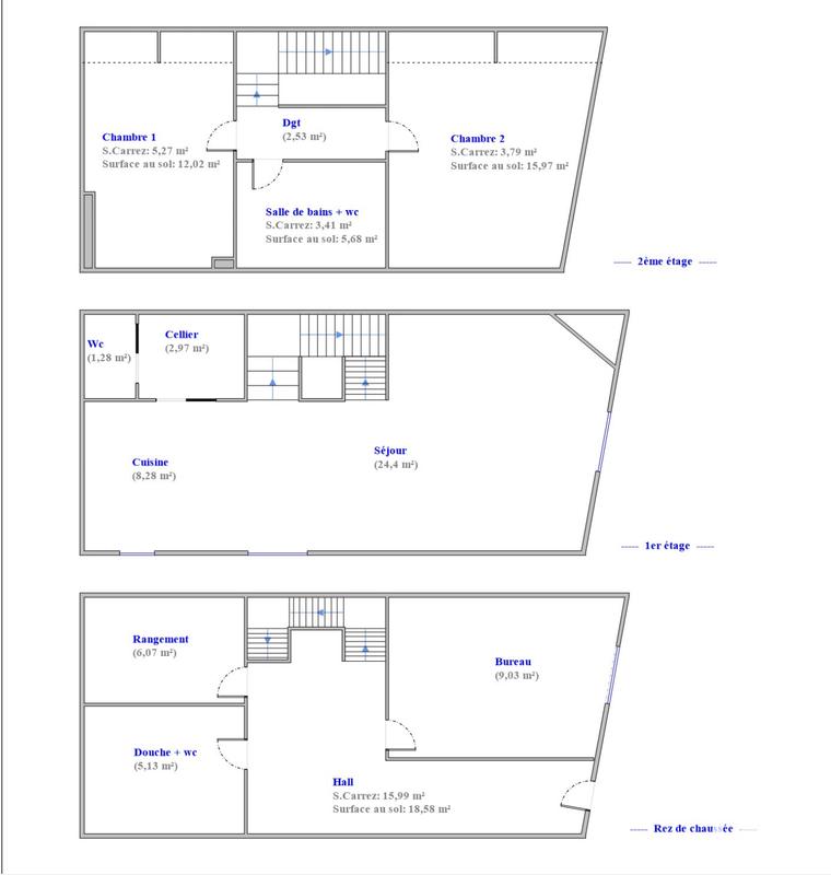
Iad France - Magali Koppe vous propose : Place de Verdun, plein centre du village Maison de ville de caractère sur 3 niveaux, alliant charme et praticité. Description Rez-de-chaussée : entrée, chambre, cellier / cave, buanderie avec meuble vasque + WC (possibilité salle d’eau). 1er étage : grande pièce de vie de 33 m² lumineuse avec cuisine ouverte, salon-séjour, salle à manger, cellier et WC indépendant. 2ème étage : deux chambres sous Velux + salle de bains. Points forts : Diagnostics irréprochables (pas de plomb, pas d’amiante, aucune anomalie gaz / électricité) Taxe foncière : 952 € Emplacement idéal : commerces de proximité (boulangeries, pharmacie, marché, restaurants) et écoles accessibles à pied Gare SNCF Albigny à quelques minutes (10 min de Lyon Part-Dieu), lignes de bus TCL et accès rapide aux axes routiers Vente interactive : le prix affiché correspond au prix de première offre possible. Honoraires d'agence à la charge du vendeur. Information d'affichage énergétique sur ce bien : classe ENERGIE D indice 226 et classe CLIMAT D indice 46. Les informations sur les risques auxquels ce bien est exposé, y compris l'obligation légale de débroussaillement, sont disponibles sur le site Géorisques : http://www.georisques.gouv.fr. La présente annonce immobilière a été rédigée sous la responsabilité éditoriale de Mme Magali Koppe mandataire indépendant en immobilier (sans détention de fonds), agent commercial de la SAS I@D France immatriculé au RSAC de LYON sous le numéro 831817747, titulaire de la carte de démarchage immobilier pour le compte de la société I@D France SAS.

Afficher plus de détails

Informations sur ce bien :

L'intérieur :

  • 4 pièces
  • 112 m²
    Informations complémentaires
    Surface habitable : 112 m²
  • 3 Chambres
  • Cuisine
  • Séjour

Autres :

  • Chauffage :
    Radiateur, Gaz
  • Année de construction :
    1900
  • Mitoyenneté :
    Non
Synthèse
Maison de ville à Albigny-sur-Saône
200 000 €
Surface : 112 m²
Prix au m² : 1 786 €
Transaction :
Achat
Référence :
1904563
Date de publication :
Il y a plus de 7 jours
Maison de ville - 112 m² - 4 pièces
Performance énergétique
A
B
C
D
E
F
G
Gaz à effet de serre
A
B
C
D
E
F
G
Agent
iad france
iad france
Magali Koppe
Appeler
Écrire
Mettre en avant cette annonce
Signaler une erreur

Localisation :

L'adresse exacte n'est pas renseignée. Le bien se situe dans cette zone.

Performance énergétique :

Logement économe
A
B
C
D
226
kWh/m²/an
46
kg CO₂/m²/an
E
F
G
Logement énergivore
Faible émission de CO₂
A
B
C
D
46
kg CO₂/m²/an
E
F
G
Forte émission de CO₂
Date du diagnostic : 14 mai 2025
Annonces similaires
Annonces immobilières récentes