Maison - 75 m² - 3 pièces à Albi

favoris
  • Maison - 75 m² - 3 pièces
  • Maison - 75 m² - 3 pièces
  • Maison - 75 m² - 3 pièces
199 000 €
75 m²
3 pièces
2 chambres

Description :

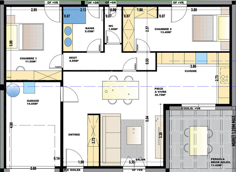
Découvrez cette maison neuve idéalement située sur la commune du Séquestre, à proximité immédiate d'Albi et de toutes les commodités. Elle offre une pièce de vie spacieuse et lumineuse, ouverte sur une cuisine moderne, aménagée et équipée, parfaite pour partager des moments conviviaux. L'espace nuit se compose de deux grandes chambres, d'une salle d'eau contemporaine et d'un toilette indépendant. A l'extérieur, vous profiterez d'une terrasse bien exposée et d'un garage avec portail électrique, le tout sur une parcelle de plus de 265 m². Construite selon les dernières normes énergétiques (RE 2020), cette maison vous garantit un confort optimal été comme hiver ainsi qu'une faible consommation énergétique. Achèvement des travaux prévu pour le second trimestre 2026. Réf: AL-20 2558

Afficher plus de détails

Informations sur ce bien :

L'intérieur :

  • 3 pièces
  • 75 m²
    Informations complémentaires
    Surface habitable : 75 m²
  • 2 Chambres
    Informations complémentaires
    Chambre 1 : Surface de 11 m², rdc, sol en carrelage, exposition nord, attente elec pour radiateur/porte fenetre
    Chambre 2 : Surface de 13 m², rdc, sol en carrelage, exposition nord, attente elec pour radiateur/porte fenetre
  • Cuisine américaine, équipée
    Informations complémentaires
    Américaine, équipée
  • 1 Salle d'eau de 5 m²
    Informations complémentaires
    Rdc, sol en carrelage, exposition nord, simple vasque/douche italienne
  • 1 Toilette de 1 m²
    Informations complémentaires
    Rdc, sol en carrelage, exposition nord, wc suspendu
  • Séjour de 38 m²

L'extérieur :

  • Jardin de 150 m²
  • Terrasse de 11 m²
  • 3 Parkings
  • Garage
    Informations complémentaires
    Rdc, sol en carrelage, exposition sud, 14,05 m², carrelé et isolé/ portail elec

Les équipements :

  • Tout à l'égout
  • Cheminée
  • Climatisation
  • Portail électrique
  • Fibre optique
  • Double vitrage

Autres :

  • Chauffage :
    Individuel, Air pulsé, Pompe à chaleur
  • Style :
    Années 2000
  • Année de construction :
    2026
  • État :
    Intérieur : Très bon, Extérieur : Très bon, Toiture : neuve
  • Mitoyenneté :
    1
  • Exposition :
    Nord, Sud
  • Étage :
    RDC
  • Nombre de niveaux :
    1
  • Plain-pied :
    Oui
Synthèse
Maison à Albi
199 000 €
Surface : 75 m²
Prix au m² : 2 653 €
Transaction :
Achat
Référence :
AD58
Date de publication :
Il y a plus de 7 jours
Maison - 75 m² - 3 pièces
Performance énergétique
A
B
C
D
E
F
G
Gaz à effet de serre
A
B
C
D
E
F
G
Agent
L'Adresse Albi Patrimoine Immobilier
L'Adresse Albi Patrimoine Immobilier
Appeler
Écrire
Mettre en avant cette annonce
Signaler une erreur

Localisation :

L'adresse exacte n'est pas renseignée. Le bien se situe dans cette zone.

Performance énergétique :

Logement économe
A
≤ 70
kWh/m²/an
≤ 6
kg CO₂/m²/an
B
C
D
E
F
G
Logement énergivore
Faible émission de CO₂
A
≤ 6
kg CO₂/m²/an
B
C
D
E
F
G
Forte émission de CO₂
Date du diagnostic : 10 octobre 2025
Annonces similaires
Annonces immobilières récentes