Appartement - 45 m² - 2 pièces à Agde
favoris
574 € / mois
Description :
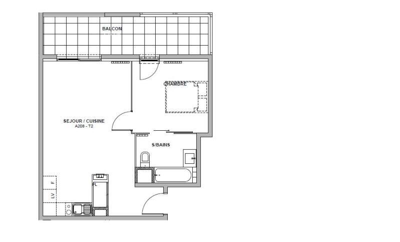
A208 LES TERRASSES DE SOLENE - BEAU T2 EXPO OUEST DE 45M2 AU 2EME ETAGE AVEC TERRASSE DE 12 M2 DANS UNE RESIDENCE RECENTE BBC DE STANDING A PROXIMITE DES COMMERCES - Sup. séjour et cuisine US équipée et aménagée (meubles hauts et bas + plaques, four et hotte) de 29m2, une chambre en sol parquet, SDB aménagée, garage fermé en sous sol sécurisé. Consommation d'énergie totale 333 EUR par an (prix moyens des énergies indexés au 15.08.2015).
Les informations sur les risques auxquels ce bien est exposé sont disponibles sur le site Géorisques : www. georisques. gouv. fr
Afficher plus de détails
Informations sur ce bien :
L'intérieur :
-
2 pièces
-
45 m²Informations complémentairesSurface habitable : 45 m²
-
1 Chambre
Autres :
-
Année de construction :2015
-
Étage :2nd étage
Synthèse
Appartement à Agde
574 € / mois
Surface :
45 m²
Transaction :
Location
Référence :
5942
Charges :
45 €
Remboursement annuel par le locataire
Informations complémentaires
Les charges sont inclues dans le loyer affichéRemboursement annuel par le locataire
Montant de la caution :
529 €
Honoraires :
499,40 €
Informations complémentaires
Dont honoraires état des lieux : 136,20 €
Mandat :
Exclusif
Disponibilité :
28/02/2026
Date de publication :
Aujourd'hui à 08:37
Contacter l'annonceur
Performance énergétique
A
B
C
D
E
F
G
Gaz à effet de serre
A
B
C
D
E
F
G
Agent
CONFIANCE IMMOBILIER MONPLAISIR LOCATION
Mettre en avant cette annonce
Signaler une erreur
Localisation :
L'adresse exacte n'est pas renseignée. Le bien se situe dans cette zone.
Performance énergétique :
Logement économe
A
48
kWh/m²/an
1
kg CO₂/m²/an
B
C
D
E
F
G
Logement énergivore
Faible émission de CO₂
A
1
kg CO₂/m²/an
B
C
D
E
F
G
Forte émission de CO₂
Date du diagnostic :
08 décembre 2025
Locations d'appartements à proximité
- 2 locations d'appartements à Vias (4.7 km)
- 5 locations d'appartements à Marseillan (6.7 km)
- 4 locations d'appartements à Bessan (7.1 km)
- 3 locations d'appartements à Villeneuve-lès-Béziers (15.6 km)
- 11 locations d'appartements à Sérignan (16.2 km)
- 12 locations d'appartements à Valras-Plage (16.4 km)
- 2 locations d'appartements à Mèze (16.7 km)
- 2 locations d'appartements à Sauvian (17.4 km)
- 1 location d'appartement à Pézenas (17.5 km)