Maison - 110 m² - 4 pièces à Westhoffen

favoris
  • Maison - 110 m² - 4 pièces
  • Maison - 110 m² - 4 pièces
  • Maison - 110 m² - 4 pièces
  • Maison - 110 m² - 4 pièces
  • Maison - 110 m² - 4 pièces
  • Maison - 110 m² - 4 pièces
  • Maison - 110 m² - 4 pièces
96 000 €
110 m²
4 pièces
3 chambres

Description :

3%.COM - À WESTHOFFEN, dans un jolie village alsacien, redonnez vie à cette charmante maison de village de 105m2 à rénover totalement avec une dépendance attenante.

--- À saisir au prix de 96 000EUR FAI

--- LA MAISON EST A RÉNOVER EN TOTALITÉ (électricité, fermetures, sanitaire, chauffage, cuisine, salle de bains, murs, sols, etc...)

--- Vous recherchez un bien à rénover totalement, à transformer à vos goûts, la qualité de vie d'un petit village, alors n'hésitez pas et venez visiter ce bien.

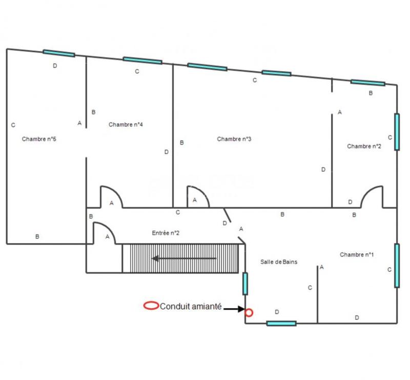
--- Vous trouverez des croquis et d'autres photos sur notre site troispourcent.

--- Maison (environ 115 m2)
- Année de construction : 1930
- 5 pièces.
- 1 cour
- 1 cave

--- Dépendance (environ 110m2) :
- 1 atelier.
- 1 pièce.
- 1 garage.

Autre information:
- Présence de plomb - déclarations effectuées auprès de l'ARS.
- Beau potentiel pour cet ensemble qui nécessite des travaux complets de rénovation et d'aménagement.

-- Principales distances:
Molsheim : 15 min, 11 km.
Strasbourg centre: 29 min, 27 km.
Saverne : 25 min, 19 km.
Wasselonne : 8 min, 5 km.

--Contactez Célia au 07.78.12.20.62
Du lundi au samedi de 9h00 à 19h00.
Agent Commercial en Immobilier, inscrit au RSAC Strasbourg No 809 126 998.
-- Agence ROTH IMMOBILIER, RCS 803 863 638, franchisé 3%.COM.
-- Réseau national à honoraires réduits: 3% TTC
- Annonce rédigée et publiée par un Agent Mandataire -

Afficher plus de détails

Informations sur ce bien :

L'intérieur :

  • 4 pièces
  • 110 m²
    Informations complémentaires
    Surface habitable : 110 m²
  • 3 Chambres
  • Cuisine
Synthèse
Maison à Westhoffen
96 000 €
Surface : 110 m²
Prix au m² : 873 €
Transaction :
Achat
Référence :
264_V3480062092
Mandat :
Exclusif
Date de publication :
Il y a plus de 7 jours
Maison - 110 m² - 4 pièces
Performance énergétique
A
B
C
D
E
F
G
Gaz à effet de serre
A
B
C
D
E
F
G
Agent
3%.com
3%.com
Célia MANGIN
Appeler
Écrire
Mettre en avant cette annonce
Signaler une erreur

Localisation :

L'adresse exacte n'est pas renseignée. Le bien se situe dans cette zone.

Performance énergétique :

Logement économe
A
≤ 6
kg CO₂/m²/an
B
C
D
E
F
G
Logement énergivore
Faible émission de CO₂
A
≤ 6
kg CO₂/m²/an
B
C
D
E
F
G
Forte émission de CO₂
Annonces similaires
Annonces immobilières récentes