• Appartement - 45 m² - 2 pièces
  • Appartement - 45 m² - 2 pièces
179 000 €
45 m²
2 pièces

Description :

Située dans un quartier en plein renouveau à Voiron, la résidence s'inscrit dans un projet ambitieux et contemporain.
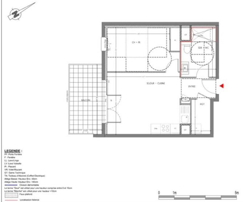
Votre futur T2 de 45 m², avec son vrai balcon au soleil, comprend un séjour et un espace cuisine bien conçus. Les volumes sont beaux et les rangements conséquents. Il est au 4e avec ascenseur. Il comprendra son garage et sa cave. D'autres lots vous sont aussi proposés.
Chaque logement bénéficie d'espaces optimisés, de belles surfaces lumineuses, et peut s'accompagner d'extérieur (balcon, terrasse ou jardin), pour un confort de vie complet. Un cœur d'îlot végétalisé et une galerie commerçante en rez-de-chaussée favorisent l'équilibre entre vie résidentielle et commodités du quotidien — commerces, services, et bientôt un complexe sportif à quelques pas de la résidence.
Les informations sur les risques auxquels ce bien est exposé sont disponibles sur le site Géorisques : www. georisques. gouv. fr.

Réseau Immobilier CAPIFRANCE - Votre agent commercial (RSAC N°343 266 268 - Greffe de ) Marie-Laure LEGER Entrepreneur Individuel 06 86 55 77 49 - Réf.304121

Afficher plus de détails

Informations sur ce bien :

L'intérieur :

  • 2 pièces
  • 45 m²
    Informations complémentaires
    Surface habitable : 45 m²

Autres :

  • Étage :
    4ème étage
Synthèse
Appartement à Voiron
179 000 €
Surface : 45 m²
Prix au m² : 3 978 €
Transaction :
Achat
Référence :
340937321094
Date de publication :
Aujourd'hui à 08:33
Appartement - 45 m² - 2 pièces
Agent
CAPIFRANCE
CAPIFRANCE
Madame Marie-Laure LEGER
Appeler
Écrire
Mettre en avant cette annonce
Signaler une erreur

Localisation :

L'adresse exacte n'est pas renseignée. Le bien se situe dans cette zone.

Performance énergétique :

Bien non soumis au Diagnostic de Performance Énergétique (DPE)

Annonces similaires
Annonces immobilières récentes