• Terrain - 488 m²
  • Terrain - 488 m²
  • Terrain - 488 m²
342 000 €
488 m²

Description :

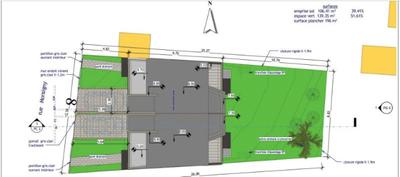
Iad France - Carlos Moreno vous propose : Situé le quartier pavillonnaire du plateau entre le métro Louis Aragon ligne 7 et la future ligne 15 mairie de Vitry Sur Seine. Terrain a bâtir de 488 m² situé en zone UC, viabilisé, avec 10 mètres de façade, construction légère en fond de parcelle. Un permis de construire à déjà été déposé et accepté pour un projet comprenant deux habitations d'une surface totale de 185 m². Professionnels de l'immobilier, ce bien est ouvert à un inter-cabinet. Honoraires d'agence à la charge du vendeur. Bien non soumis au DPE. Les informations sur les risques auxquels ce bien est exposé, y compris l'obligation légale de débroussaillement, sont disponibles sur le site Géorisques : http://www.georisques.gouv.fr. La présente annonce immobilière a été rédigée sous la responsabilité éditoriale de M Carlos Moreno mandataire indépendant en immobilier (sans détention de fonds), agent commercial de la SAS I@D France immatriculé au RSAC de CRETEIL sous le numéro 439149410, titulaire de la carte de démarchage immobilier pour le compte de la société I@D France SAS.

Afficher plus de détails

Informations sur ce bien :

L'intérieur :

  • 488 m²

Autres :

  • Mitoyenneté :
    Non

Terrain :

  • Viabilisé :
    Non
Synthèse
Terrain à Vitry-sur-Seine
342 000 €
Surface : 488 m²
Prix au m² : 701 €
Transaction :
Achat
Référence :
1785222
Date de publication :
Il y a plus de 7 jours
Terrain - 488 m²
Agent
iad france
iad france
Carlos Moreno
Appeler
Écrire
Mettre en avant cette annonce
Signaler une erreur

Localisation :

L'adresse exacte n'est pas renseignée. Le bien se situe dans cette zone.
Annonces similaires
Annonces immobilières récentes