Terrain - 924 m² à Vitrolles
Description :
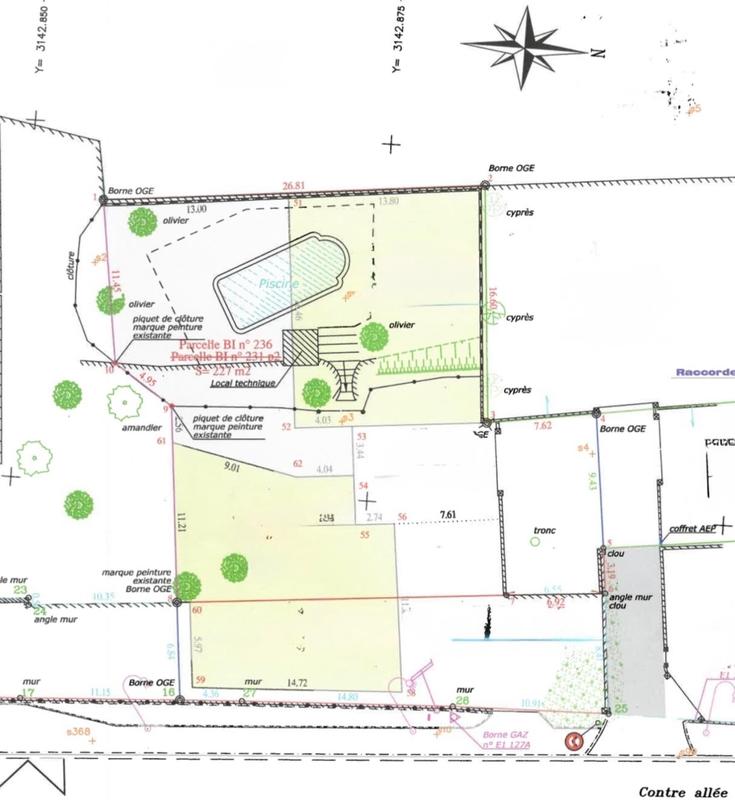
OPPORTUNITÉ RARE À VITROLLES SUD - TERRAIN AVEC PERMIS DE CONSTRUIRE Situé dans un secteur résidentiel recherché de Vitrolles Sud, à proximité immédiate de la plage des Marettes, ce terrain constructible de 924 m² représente une opportunité exceptionnelle pour promoteur ou investisseur. Le permis de construire, déjà accordé et toujours valide, permet la réalisation de 3 maisons individuelles, offrant un projet clé en main sans délai administratif. Deux des futures habitations bénéficieront d'une vue dégagée sur l'étang, un atout majeur pour valoriser le projet immobilier. ? Terrain entièrement viabilisé ? Permis de construire purgé pour 3 maisons ? Vue étang ? Proximité plage ? Accès rapide autoroutes, gare TGV et aéroport Marseille-Provence Ce bien rare combine emplacement stratégique, potentiel de valorisation élevé et sécurité administrative. Idéal pour une opération de promotion immobilière ou un investissement patrimonial à forte rentabilité. Dossier complet sur demande Les informations sur les risques auxquels ce bien est exposé sont disponibles sur le site Géorisques : www.georisques.gouv.fr Prix de vente : 569 000 € Honoraires charge vendeur Contactez votre conseiller SAFTI : Nahuel LOUIS, Tél. : 06 50 24 10 64, E-mail : nahuel.louis@safti.fr - EI - Agent commercial immatriculé au RSAC de SALON DE PROVENCE sous le numéro 944517739.
Informations sur ce bien :
L'intérieur :
-
924 m²
Autres :
-
Mitoyenneté :Non
Terrain :
-
Viabilisé :Non
Localisation :
Ventes de terrains à proximité
- 7 ventes de terrains à Rognac (3.5 km)
- 9 ventes de terrains à Marignane (4.9 km)
- 2 ventes de terrains à Berre-l'Étang (6.9 km)
- 5 ventes de terrains à Velaux (7.2 km)
- 13 ventes de terrains aux Pennes-Mirabeau (7.2 km)
- 1 vente de terrain à Gignac-la-Nerthe (7.6 km)
- 29 ventes de terrains à Ventabren (9.6 km)
- 10 ventes de terrains à La Fare-les-Oliviers (11.2 km)
- 3 ventes de terrains à Septèmes-les-Vallons (11.7 km)