• Appartement - 47 m² - 2 pièces
  • Appartement - 47 m² - 2 pièces
  • Appartement - 47 m² - 2 pièces
185 500 €
47 m²
2 pièces
1 chambre

Description :

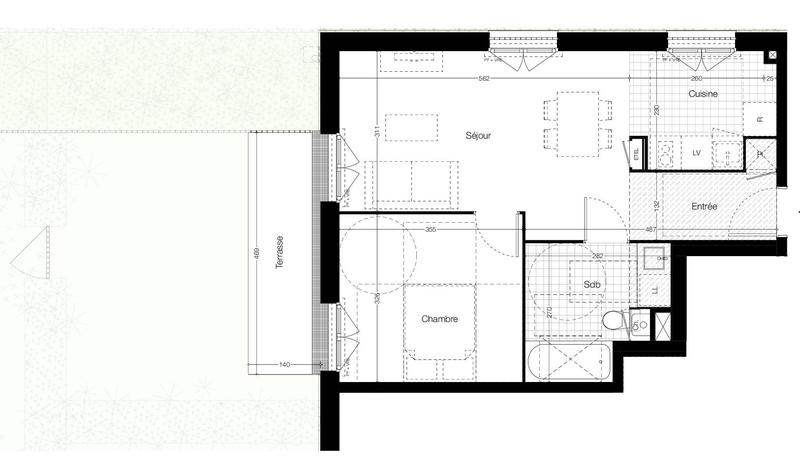
VITRE - Appartement 2 pièces 46.50m² Ouest - terrasse de 6.60m² - rez-de-chaussée - ascenseur - stationnement en sous-sol sécurisé. Dans une résidence contemporaine aux dernières normes, non loin du centre de vitré, à proximité des commerces, commodités, équipements sportifs et culturels,,. appartement de 2 pièces de 46.50m² exposé Ouest avec terrasse de 6.60m² en rez-de-chaussée comprenant : une entrée avec placard, un séjour salon avec cuisine ouverte, donnant accès sur une terrasse et un jardin, une chambre, une salle de bains avec wc. Stationnement en sous-sol sécurisé. Prix promoteur - frais de notaire réduits - normes RT2020. Les informations sur les risques auxquels ce bien est exposé sont disponibles sur le site Géorisques : www.georisques.gouv.fr. Photos non contractuelles - Suggestions d'aménagements Copropriété de 38 lots - dont 38 lots habitation. (Pas de procédure en cours). Charges annuelles : 648 euros.

Afficher plus de détails

Informations sur ce bien :

L'intérieur :

  • 2 pièces
  • 47 m²
    Informations complémentaires
    Surface habitable : 47 m²
  • 1 Chambre

L'extérieur :

  • Terrasse de 6 m²
  • Parking

Les équipements :

  • Ascenseur
  • Tout à l'égout
  • Double vitrage

Autres :

  • Chauffage :
    Individuel, Radiateur, Gaz
  • Exposition :
    Ouest
  • Étage :
    RDC
    Informations complémentaires
    Nombre d'étages de la construction : 3
  • Nombre de niveaux :
    1

Copropriété :

  • Copropriété :
    Oui
  • Nombre de lots :
    38
  • Charges annuelles :
    648 €
  • Procédure :
    Pas de procédure en cours
Synthèse
Appartement à Vitré
185 500 €
Surface : 47 m²
Prix au m² : 3 947 €
Transaction :
Achat
Référence :
6171-b001
Date de publication :
Il y a plus de 7 jours
Appartement - 47 m² - 2 pièces
Agent
Cabinet Moraine Immobilier
Cabinet Moraine Immobilier
Appeler
Écrire
Mettre en avant cette annonce
Signaler une erreur

Localisation :

L'adresse exacte n'est pas renseignée. Le bien se situe dans cette zone.

Performance énergétique :

Bien non soumis au Diagnostic de Performance Énergétique (DPE)

Annonces similaires
Annonces immobilières récentes