Maison - 174 m² - 6 pièces à Villemur-sur-Tarn
favoris
260 000 €
Description :
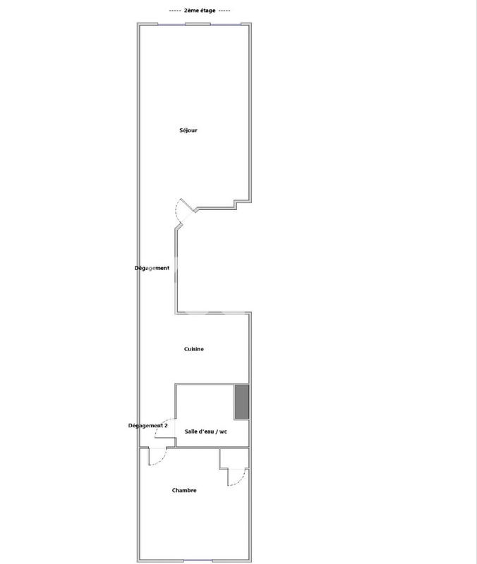
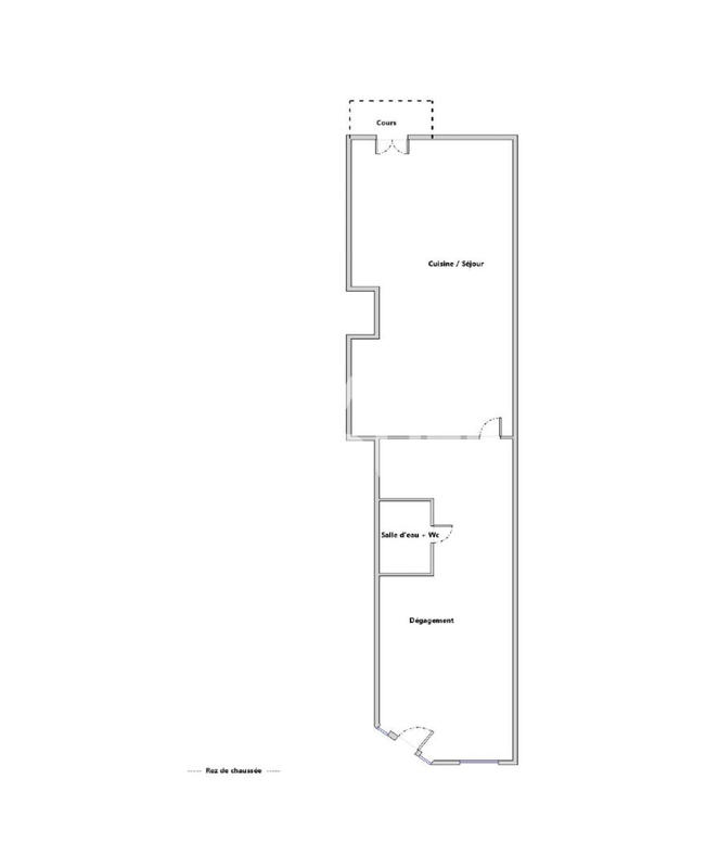
Immeuble de rapport en bon état intérieur comme extérieur comprenant 4 appartements récemment rénovés. Situé au coeur de Villemur-sur-Tarn, cet immeuble offre une opportunité rare pour un investissement locatif sécurisé et rentable. Composition : - Rdc ; Local pour profession libérale ou studio de 38m2 (loué 400 euros) - 1er étage ; T2 de 49m2 ( loué 500 euros) - 2eme étage ; T2 de 49m2 (loué 500 euros) - 3eme étage ; Studio de 38m2 (loué 400 euros) Surface totale : 174 m² Revenu locatif total : 1800 euros par mois Contactez nous pour plus d'informations !
Afficher plus de détails
Informations sur ce bien :
L'intérieur :
-
6 pièces
-
174 m²Informations complémentairesSurface habitable : 174 m²
Les équipements :
-
Fibre optique
-
Double vitrage
Autres :
-
Chauffage :Radiateur, Électrique
-
Année de construction :1949
-
État :Intérieur : Renove, Extérieur : Bon
-
Nombre de niveaux :1
Copropriété :
-
Taxe foncière :2 722 €
Synthèse
Maison à Villemur-sur-Tarn
260 000 €
Surface :
174 m²
Prix au m² :
1 494 €
Transaction :
Achat
Référence :
7284
Mandat :
Exclusif
Date de publication :
Il y a plus de 7 jours
Contacter l'annonceur
Performance énergétique
A
B
C
D
E
F
G
Gaz à effet de serre
A
B
C
D
E
F
G
Agent
GuyHoquet FRONTON
Mettre en avant cette annonce
Signaler une erreur
Localisation :
L'adresse exacte n'est pas renseignée. Le bien se situe dans cette zone.
Performance énergétique :
Logement économe
A
B
C
D
185
kWh/m²/an
5
kg CO₂/m²/an
E
F
G
Logement énergivore
Faible émission de CO₂
A
5
kg CO₂/m²/an
B
C
D
E
F
G
Forte émission de CO₂
Date du diagnostic :
13 septembre 2024
Estimation des coûts annuels d’énergie du logement :
600 €
à 860 €
Ventes de maisons à proximité
- 4 ventes de maisons à Villematier (4.2 km)
- 4 ventes de maisons à Nohic (6 km)
- 3 ventes de maisons à Villebrumier (6.2 km)
- 4 ventes de maisons à La Magdelaine-sur-Tarn (6.7 km)
- 11 ventes de maisons à Villaudric (7 km)
- 5 ventes de maisons à Orgueil (8.6 km)
- 4 ventes de maisons à Montgaillard (8.8 km)
- 61 ventes de maisons à Fronton (9.5 km)
- 9 ventes de maisons à Vacquiers (9.9 km)