• Appartement - 23 m² - 1 pièce
  • Appartement - 23 m² - 1 pièce
66 500 €
23 m²
1 pièce

Description :

Spécial Investisseur - Exclusivité Forom® Immobilier

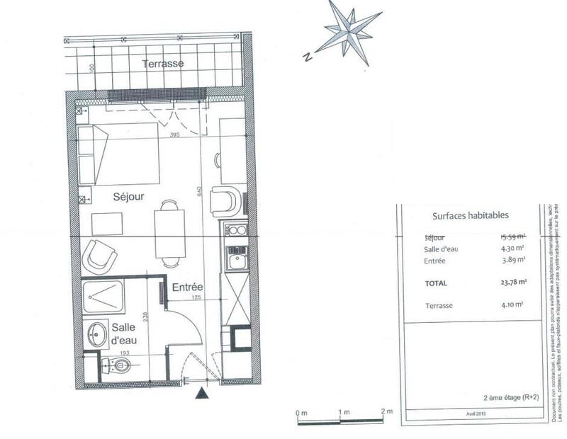
Appartement T1 au deuxième étage d'environ 23,78 m² situé dans une résidence sur la commune de VILLEJUST.

Le logement dispose d'un séjour avec cuisine équipée ouverte (réfrigérateur, plaque électrique, hotte, micro-ondes), une salle d'eau avec WC, un parking ainsi que la jouissance privative et exclusive d'une terrasse.

Loyer entièrement garanti et sécurisé avec un bail commercial, aucune contrainte de gestion, faibles charges.

C'est le produit idéal pour se constituer facilement un patrimoine immobilier.

o Loyer annuel HT : 4 832€ / an soit 402€ / mois
o Rentabilité : 7,27% brute
o Charges : 129€ / mois
o Taxe foncière : 309€ / an
o Gestionnaire : CAP WEST GROUPE avec date de fin de bail le 27/12/2034
o Indexation selon l'indice ILC
o DPE : C
o Nombre de lots : 73

Les avantages
o Les loyers sont réglés que le logement soit occupé ou non (sans risque de vacances locatives ou d'impayés).
o Vous bénéficiez également d'avantages fiscaux liés au « LMNP amortissable », donnant une exonération d'impôt sur les revenus locatifs.
o Aucun frais de gestion courante (le gestionnaire vous règle directement le loyer sans intermédiaire ni frais de gestion locative).
o Emplacement premium bien au-dessous du prix du marché.

La résidence
La résidence CAP WEST à VILLEJUST est une résidence moderne, sécurisée et bien équipée. Idéalement située au coeur du pôle d'activité, elle se trouve à proximité des universités et des grandes écoles de la région.

Afficher plus de détails

Informations sur ce bien :

L'intérieur :

  • 1 pièce
  • 23 m²
    Informations complémentaires
    Surface habitable : 24 m²
  • 1 Salle d'eau
  • 1 Toilette

L'extérieur :

  • Parking extérieur
    Informations complémentaires
    Extérieur

Autres :

  • Étage :
    RDC

Copropriété :

  • Copropriété :
    Oui
  • Nombre de lots :
    73
Synthèse
Appartement à Villejust
66 500 €
Surface : 23 m²
Prix au m² : 2 891 €
Transaction :
Achat
Référence :
3841-FOROM
Mandat :
Exclusif
Date de publication :
Il y a plus de 7 jours
Appartement - 23 m² - 1 pièce
Performance énergétique
A
B
C
D
E
F
G
Gaz à effet de serre
A
B
C
D
E
F
G
Agent
BONNEFOY IMMOBILIER
Forom® Immobilier
Appeler
Écrire
Mettre en avant cette annonce
Signaler une erreur

Localisation :

L'adresse exacte n'est pas renseignée. Le bien se situe dans cette zone.

Performance énergétique :

Logement économe
A
B
C
140
kWh/m²/an
26
kg CO₂/m²/an
D
E
F
G
Logement énergivore
Faible émission de CO₂
A
B
C
26
kg CO₂/m²/an
D
E
F
G
Forte émission de CO₂
Date du diagnostic : 15 décembre 2025
Annonces similaires
Annonces immobilières récentes