• Appartement - 74 m² - 3 pièces
300 000 €
74 m²
3 pièces

Description :

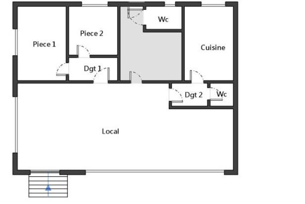
Rare sur le secteur ! Ce local de 74 m2 Carrez, situé en rez-de-chaussée, vous offre une opportunité de création d'un appartement sur mesure.
Initialement déclaré en boutique avec arrière-boutique (règlement de copropriété de 1959), le bien est aujourd'hui libre de toute occupation et nécessite une refonte complète, laissant une grande liberté d'aménagement.
Une cave de 21 m2 vient compléter l'ensemble, apportant un espace de stockage appréciable.
Votre projet nécessitera une demande de changement de destination en habitation, ouvrant la voie à la création d'un logement personnalisé, selon vos envies et votre mode de vie. Possibilité d'aménager une place de stationnement, un véritable atout en milieu urbain.
Idéal pour investisseur, marchand de biens ou particulier souhaitant réaliser un projet à fort potentiel, dans un cadre réglementé mais valorisant.
Ce bien n'est pas soumis au DPE, absence de système de chauffage.
Les informations sur les risques auxquels ce bien est exposé sont disponibles sur le site Géorisques : http://www.georisques.gouv.fr
Cet ensemble vous est proposé au prix de 300000 EUR, honoraires charge Vendeur.
Noël Pierrat Agent local : noel.pierrat@cotefrance.immo (Français, English, Deutsch) Tél. 06 12 01 00 57 Côté France Réseau Franco-Belge-International d'agences et de conseillers.La présente annonce immobilière a été rédigée sous la responsabilité éditoriale de Noël Pierrat, Agent commercial indépendant en immobilier de la SARL Côté France (sans détention de fonds), l'agent commercial immatriculé au RSAC de PAU sous le numéro 488788613, titulaire de la carte de démarchage immobilier pour le compte de la société SARL Côté France. Annonce proposée par un agent commercial. Achat vente location à vendre investissement acheter cotefranceimmo.fr estimer financer maison
Cette annonce vous est proposée par Pierrat Noel - EI - NoRSAC: 488 788 613, Enregistré à Greffe du tribunal de commerce de PAU Côté France Immobilier - Réseau Immobilier Franco Belge International - Des conseillers du Nord au Sud de la France et 4 agences à votre service www.cotefranceimmo.fr - Annonce rédigée et publiée par un Agent Mandataire -

Afficher plus de détails

Informations sur ce bien :

L'intérieur :

  • 3 pièces
  • 74 m²
    Informations complémentaires
    Surface habitable : 74 m²
  • Cuisine
  • 1 Toilette
  • Cave

Autres :

  • Chauffage :
    Individuel, Radiateur, Électrique
  • Année de construction :
    1959
  • État :
    Travaux à prévoir
  • Étage :
    RDC

Copropriété :

  • Copropriété :
    Oui
  • Nombre de lots :
    2
  • Charges annuelles :
    1 600 €
Synthèse
Appartement à Villejuif
300 000 €
Surface : 74 m²
Prix au m² : 4 054 €
Transaction :
Achat
Référence :
112_PNVAP1260008493
Date de publication :
Aujourd'hui à 08:18
Appartement - 74 m² - 3 pièces
Agent
COTE FRANCE IMMOBILIER
COTE FRANCE IMMOBILIER
Noel EI PIERRAT
Appeler
Écrire
Mettre en avant cette annonce
Signaler une erreur

Localisation :

L'adresse exacte n'est pas renseignée. Le bien se situe dans cette zone.

Performance énergétique :

Bien non soumis au Diagnostic de Performance Énergétique (DPE)

Date du diagnostic : 11 décembre 2025
Annonces similaires
Annonces immobilières récentes