• Appartement - 73 m² - 3 pièces
  • Appartement - 73 m² - 3 pièces
  • Appartement - 73 m² - 3 pièces
  • Appartement - 73 m² - 3 pièces
  • Appartement - 73 m² - 3 pièces
  • Appartement - 73 m² - 3 pièces
  • Appartement - 73 m² - 3 pièces
  • Appartement - 73 m² - 3 pièces
285 000 €
73 m²
3 pièces
2 chambres

Description :

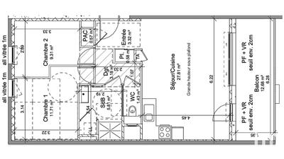
Iad France - Céline Baggetto vous propose : T3 de m² 72 m² AVEC TERRASSE. Situé dans une copropriété de 2025, cet appartement moderne vous place à l'entrée du cOEur de Vif et vous permet de disposer à proximité des commerces, des lignes de bus 25 et C14 et des écoles. L'entrée avec placard. Vous arrivez ensuite dans une pièce de vie de 30.5 m² bien agencée. Dans l'espace nuit, vous trouverez 2 chambres de 10 m² et 14.50 m², cette dernière est équipée de placard de rangement. Une salle d'eau moderne et une buanderie indépendante. WC. En extérieur, la terrasse est accessible depuis le salon ou l'une des chambres. Possibilité d'acheter une garage. Chauffage collectif bois. Double-vitrage. Contactez-moi pour organiser votre visite, et concrétisons ensemble votre projet de vie ! La presente annonce immobiliere vise 1 lot situé dans une copropriété de 68 lots au total et ne faisant l'objet d'aucune procédure en cours citée à l'article L. 721-1 du code de la construction et de l'habitation. Montant moyen mensuel de charges déclaré par le vendeur : 200€ par mois (soit 2400 € annuel). Honoraires d'agence à la charge du vendeur. Information d'affichage énergétique sur ce bien : classe ENERGIE B indice 84 et classe CLIMAT A indice 2. Les informations sur les risques auxquels ce bien est exposé, y compris l'obligation légale de débroussaillement, sont disponibles sur le site Géorisques : http://www.georisques.gouv.fr. La présente annonce immobilière a été rédigée sous la responsabilité éditoriale de Mme Céline Baggetto mandataire indépendant en immobilier (sans détention de fonds), agent commercial de la SAS I@D France immatriculé au RSAC de GRENOBLE sous le numéro 883289878, titulaire de la carte de démarchage immobilier pour le compte de la société I@D France SAS.

Afficher plus de détails

Informations sur ce bien :

L'intérieur :

  • 3 pièces
  • 73 m²
    Informations complémentaires
    Surface habitable : 73 m²
  • 2 Chambres

L'extérieur :

  • Terrasse

Les équipements :

  • Ascenseur
  • Interphone

Autres :

  • Année de construction :
    2025
  • Mitoyenneté :
    Non

Copropriété :

  • Copropriété :
    Oui
  • Nombre de lots :
    68
  • Charges annuelles :
    2 400 €
Synthèse
Appartement à Vif
285 000 €
Surface : 73 m²
Prix au m² : 3 904 €
Transaction :
Achat
Référence :
1953127
Date de publication :
Il y a plus de 7 jours
Appartement - 73 m² - 3 pièces
Performance énergétique
A
B
C
D
E
F
G
Gaz à effet de serre
A
B
C
D
E
F
G
Agent
iad france
iad france
Céline Baggetto
Appeler
Écrire
Mettre en avant cette annonce
Signaler une erreur

Localisation :

L'adresse exacte n'est pas renseignée. Le bien se situe dans cette zone.

Performance énergétique :

Logement économe
A
B
84
kWh/m²/an
2
kg CO₂/m²/an
C
D
E
F
G
Logement énergivore
Faible émission de CO₂
A
2
kg CO₂/m²/an
B
C
D
E
F
G
Forte émission de CO₂
Date du diagnostic : 16 mai 2025
Annonces similaires
Annonces immobilières récentes