Maison - 215 m² - 6 pièces à Vidauban
Description :
Iad France - Olivia Mai vous propose : VIDAUBAN – Propriété de caractère avec fort potentiel Au cOEur d’un environnement naturel calme et sans vis-à-vis, sur une parcelle de 4 392 m², découvrez cette maison d’environ 235 m² offrant une vue dégagée sur la plaine et le Massif des Maures. Ses beaux volumes et sa configuration permettent de nombreux projets : résidence principale, secondaire, investissement locatif ou division en plusieurs appartements. La maison se compose : D’un rez-de-chaussée modulable avec accès direct à la terrasse, piscine et cuisine d’été (idéal logement indépendant) D’un étage lumineux avec double séjour, cuisine, 3 chambres, dressing et terrasses Prestations : climatisation gainable, double vitrage, panneaux solaires, fosse septique conforme, isolation récente. À l’extérieur : piscine au sel, terrasses, boulodrome, bassin, terrain aménagé en restanques, double abri voiture et portail électrique. 🔧 Quelques travaux à prévoir – énorme potentiel de valorisation 👉 Un bien rare, idéal pour un projet de vie ou un investissement rentable. 📞 Disponible 7j / 7 pour organiser une visite Honoraires d'agence à la charge du vendeur. Information d'affichage énergétique sur ce bien : classe ENERGIE C indice 112 et classe CLIMAT A indice 4. Les informations sur les risques auxquels ce bien est exposé, y compris l'obligation légale de débroussaillement, sont disponibles sur le site Géorisques : http://www.georisques.gouv.fr. La présente annonce immobilière a été rédigée sous la responsabilité éditoriale de Mme Olivia Mai mandataire indépendant en immobilier (sans détention de fonds), agent commercial de la SAS I@D France immatriculé au RSAC de nice sous le numéro 839125440, titulaire de la carte de démarchage immobilier pour le compte de la société I@D France SAS.
Informations sur ce bien :
L'intérieur :
-
6 pièces
-
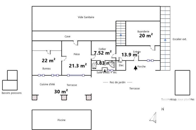
215 m²Informations complémentairesSurface habitable : 215 m²
-
4 Chambres
-
Cave
L'extérieur :
-
Terrasse
-
Piscine
-
Parking
-
Box
Les équipements :
-
Cheminée
Autres :
-
Année de construction :1981
-
Mitoyenneté :Non
Localisation :
Performance énergétique :
Ventes de maisons à proximité
- 27 ventes de maisons à Taradeau (3.1 km)
- 80 ventes de maisons aux Arcs (5.5 km)
- 33 ventes de maisons au Cannet-des-Maures (8.3 km)
- 151 ventes de maisons à Lorgues (9.3 km)
- 60 ventes de maisons à Trans-en-Provence (10 km)
- 90 ventes de maisons au Luc (10.2 km)
- 60 ventes de maisons au Thoronet (10.8 km)
- 78 ventes de maisons à La Motte (11.2 km)
- 93 ventes de maisons au Muy (12 km)