• Appartement - 24 m² - 1 pièce
  • Appartement - 24 m² - 1 pièce
  • Appartement - 24 m² - 1 pièce
295 000 €
24 m²
1 pièce

Description :

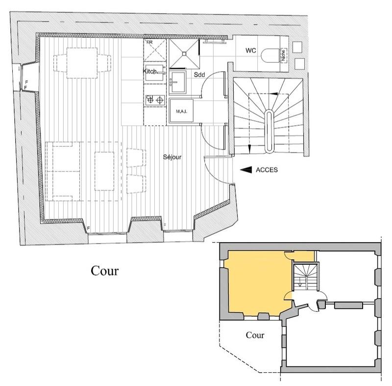
Quartier Saint-Louis, un des plus dynamiques de Versailles, et proche de la station du RER C, ce studio au premier étage d'un immeuble de 11 logements entièrement rénovés, comprend ensemble séjour/cuisine de 19,50 m2, et une salle de douche avec wc intégré.

Ce bien en livraison immédiate est visitable : renseignements complémentaires et prise de rendez-vous sur simple appel téléphonique.

Principaux travaux réalisés dans l'immeuble :

Ravalement des façades côté rue et cour dans le respect des préconisations de l'Architecte conseil de la ville de Versailles et de l'Architecte des bâtiments de France.

Remplacement des menuiseries extérieures par des fenêtres bois isolantes, par double vitrage, compris les entrées d'air. Restauration des volets existants à RDC.

Réfection complète des Installations électriques des appartements, selon les normes NFC 15-100 et 14 -100.

Création des colonnes de VMC selon les besoins du bâtiment compris les groupes collectifs ou moteurs d'extractions individuels, avec pose de bouches auto réglables dans les pièces d'eau des logements.

Création des colonnes eau froide, eau chaude et eaux usées dans le bâtiment selon besoin et plans compris les dispositifs de comptage.

Le chauffage de l'ECS est assuré par un ballon électrique individuel de marque ATLANTIC ou similaire.
Les informations sur les risques auxquels ce bien est exposé sont disponibles sur le site Géorisques : www. georisques. gouv. fr.

Réseau Immobilier CAPIFRANCE - Votre agent commercial (RSAC N°320 483 217 - Greffe de ROUEN) Thierry DUGAT Entrepreneur Individuel 06 60 60 40 10 - Réf.304121

Afficher plus de détails

Informations sur ce bien :

L'intérieur :

  • 1 pièce
  • 24 m²
    Informations complémentaires
    Surface habitable : 24 m²
  • 1 Salle d'eau

Autres :

  • Étage :
    1er étage
Synthèse
Appartement à Versailles
295 000 €
Surface : 24 m²
Prix au m² : 12 292 €
Transaction :
Achat
Référence :
340934090284
Date de publication :
Il y a plus de 7 jours
Appartement - 24 m² - 1 pièce
Agent
CAPIFRANCE
CAPIFRANCE
Monsieur Thierry DUGAT
Appeler
Écrire
Mettre en avant cette annonce
Signaler une erreur

Localisation :

Performance énergétique :

Bien non soumis au Diagnostic de Performance Énergétique (DPE)

Annonces similaires
Annonces immobilières récentes