Parking - 45 m² à Versailles
Description :
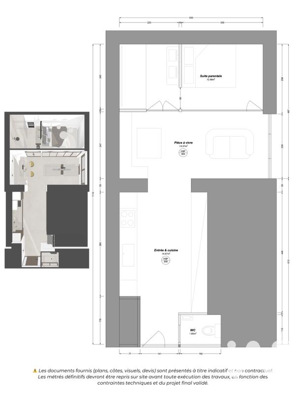
Iad France - Marlène Constant vous propose : Garages au rdc, ce futur appartement d'une superficie projetée de 44,30 m² résulte de la réunion de deux garages existants. Deux options d’acquisition sont proposées : * Achat en l’état avec dossier de conception complet : plans d’aménagement, visuels d’ambiance, devis détaillé poste par poste. * Achat avec travaux finalisés clés en main, selon le projet architectural validé. Le permis de construire pour changement de destination en logement a été déposé et accepté, incluant également les travaux de ravalement de façade (isolation exterieur) et l'installation d'une pompe à chaleur pour l'immeuble La presente annonce immobiliere vise lot situé dans une copropriété de 1 lot au total et ne faisant l'objet d'aucune procédure en cours citée à l'article L. 721-1 du code de la construction et de l'habitation. Montant moyen mensuel de charges déclaré par le vendeur : 100€ par mois (soit 1200 € annuel). Honoraires d'agence à la charge du vendeur. Bien non soumis au DPE. Les informations sur les risques auxquels ce bien est exposé, y compris l'obligation légale de débroussaillement, sont disponibles sur le site Géorisques : http://www.georisques.gouv.fr. La présente annonce immobilière a été rédigée sous la responsabilité éditoriale de Mme Marlène Constant mandataire indépendant en immobilier (sans détention de fonds), agent commercial de la SAS I@D France immatriculé au RSAC de VERSAILLES sous le numéro 898231998, titulaire de la carte de démarchage immobilier pour le compte de la société I@D France SAS.
Informations sur ce bien :
L'intérieur :
-
45 m²Informations complémentairesSurface habitable : 45 m²
Autres :
-
Année de construction :1900
-
Mitoyenneté :Non
Copropriété :
-
Copropriété :Oui
-
Nombre de lots :9
-
Charges annuelles :1 200 €
Localisation :
Ventes de parkings et garages à proximité
- 1 vente de parking et garage à Chaville (4.6 km)
- 2 ventes de parkings et garages à Vélizy-Villacoublay (4.7 km)
- 7 ventes de parkings et garages à Saint-Cyr-l'École (4.7 km)
- 1 vente de parking et garage à Vaucresson (5.3 km)
- 3 ventes de parkings et garages à Guyancourt (5.9 km)
- 1 vente de parking et garage à Fontenay-le-Fleury (6.2 km)
- 1 vente de parking et garage à Garches (6.6 km)
- 2 ventes de parkings et garages à Louveciennes (6.8 km)
- 5 ventes de parkings et garages à Montigny-le-Bretonneux (7.5 km)