• Appartement - 62 m² - 3 pièces
  • Appartement - 62 m² - 3 pièces
  • Appartement - 62 m² - 3 pièces
  • Appartement - 62 m² - 3 pièces
  • Appartement - 62 m² - 3 pièces
295 000 €
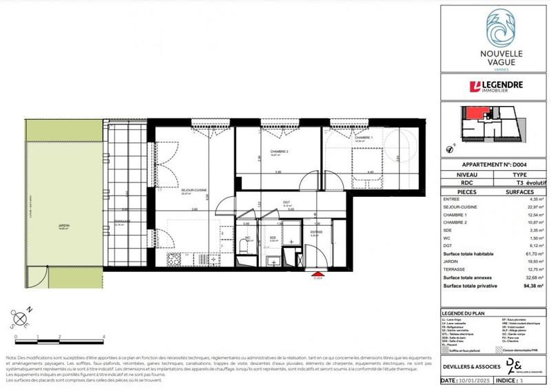
62 m²
3 pièces
2 chambres

Description :

NOUVELLE VAGUE, la promesse d'une nouvelle vie accessible à tous. Découvrez au coeur du quartier du Bondon à Vannes,

Nouvelle Vague ! Situé sur le boulevard du Général Monsabert, le projet bénéficie d'une situation privilégiée permettant de rejoindre facilement la rocade, ainsi que la Gare de Vannes. Le centre-ville peut être rejoint par le biais de plusieurs lignes de bus, tout comme les deux zones commerciales situées à quelques minutes seulement du projet.

Nouvelle Vague regroupe 3 résidences à taille humaine et proposera 66 appartements du studio au 5 pièces. Tous les logements seront prolongés par des espaces extérieurs : balcons, terrasses ou jardins privatifs pour vous offrir une véritable pièce de vie supplémentaire.

Nouvelle Vague disposera également de locaux à vélos et de places de stationnement en sous-sol. L'atout majeur de Nouvelle Vague réside en son coeur d'îlot : une micro-forêt urbaine de 3 hectares, et son aire de jeux pour enfants. Ce lieu de vie réjouira petits et grands. Balades, jogging, etc.

Démarrage des travaux : T3 2025 Livraison prévisionnelle : T3 2027.

Une résidence accessible à tous ! Éligible dispositif PTZ et LMNP (nombreuses écoles supérieures)

Les informations sur les risques auxquels ce bien est exposé sont disponibles sur le site Géorisques : www.georisques.gouv.fr
Copropriété de 66 lots - dont 66 lots habitation. (Pas de procédure en cours).

Charges annuelles : 992 euros.

Afficher plus de détails

Informations sur ce bien :

L'intérieur :

  • 3 pièces
  • 62 m²
    Informations complémentaires
    Surface habitable : 62 m²
  • 2 Chambres
  • Cuisine ouverte
    Informations complémentaires
    Ouverte
  • 1 Salle d'eau

Les équipements :

  • Ascenseur
  • Interphone

Autres :

  • Année de construction :
    2027
  • Étage :
    RDC
    Informations complémentaires
    Nombre d'étages de la construction : 5

Copropriété :

  • Copropriété :
    Oui
  • Nombre de lots :
    66
  • Charges annuelles :
    992 €
Synthèse
Appartement à Vannes
295 000 €
Surface : 62 m²
Prix au m² : 4 758 €
Transaction :
Achat
Référence :
D-004
Date de publication :
Il y a plus de 7 jours
Appartement - 62 m² - 3 pièces
Agent
BRAS IMMOBILIER VANNES
BRAS IMMOBILIER VANNES
Appeler
Écrire
Mettre en avant cette annonce
Signaler une erreur

Localisation :

Performance énergétique :

Bien non soumis au Diagnostic de Performance Énergétique (DPE)

Annonces similaires
Annonces immobilières récentes