• Terrain
  • Terrain
  • Terrain
  • Terrain
39 312 €

Description :

Envie de vivre à 1.5km de la mer et de nos jolies plages, sans oublier le magnifique parc du Dourven, alors ne tardez pas et réservez votre terrain sur notre charmante commune de Tredrez-Locquemeau.

Ecole primaire et maternelle à 1 km, marché local le mercredi après-midi, vente en directe avec nos pêcheurs locaux le mercredi et le vendredi, GR34 pour de belles randonnées, école de voile pour les grands et les petits :)

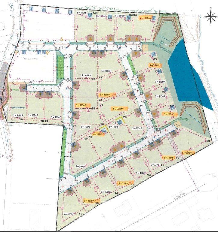
Sur une parcelle totalement plate, 29 lots ont été créés, de 278m² à 506m² au prix de 126 € TTC le m².

Votre conseiller expert de proximité se tient à votre service pour vous présenter le plan du lotissement, l'ensemble des lots encore disponibles et vous accompagner dans votre projet de construction et/ou de financement bancaire.

Honoraires à la charge du vendeur.
Les informations sur les risques auxquels ce bien est exposé sont disponibles sur le site Géorisques : georisques.gouv.fr.

Votre conseiller MAN-IMMO.PRO : Marie-Ambre HAUGUEL
Agent commercial (Entreprise individuelle)

RSAC 80535694600022 - SAINT BRIEUC

RCP MRCSACI202210FR00000000045304A00 - Liberty Specialty Markets Europe Sarl (LSME)

Afficher plus de détails

Terrain :

  • Viabilisé :
    Non
Synthèse
Terrain à Trédrez-Locquémeau
39 312 €
Transaction :
Achat
Référence :
AG403-VT165-MANIMMO
Date de publication :
Il y a plus de 7 jours
Terrain
Agent
MAN IMMO PRO
MAN IMMO PRO
Marie-Ambre Marie-Ambre HAUGUEL
Appeler
Écrire
Mettre en avant cette annonce
Signaler une erreur

Localisation :

L'adresse exacte n'est pas renseignée. Le bien se situe dans cette zone.
Annonces similaires
Annonces immobilières récentes