• Appartement - 62 m² - 3 pièces
  • Appartement - 62 m² - 3 pièces
  • Appartement - 62 m² - 3 pièces
  • Appartement - 62 m² - 3 pièces
  • Appartement - 62 m² - 3 pièces
289 000 €
62 m²
3 pièces
2 chambres

Description :

Offrez-vous l'appartement de vos rêves, idéalement située à proximité des commerces, avec le calme unique d'un village aux portes de Lyon.

(69780) Toussieu, Je vous propose, dans un village plein de charme, animé de commerces et entouré de nature, un appartement de 62.20 m² , avec possibilité d'un garage box fermé en SUS pour 15.000 euros. Lot 4103 et lot 74
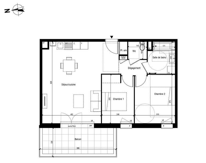
Dans l'appartement au premier étage exposé OUEST, vous disposerez d'un séjour/cuisine de 32,05 m² donnant sur le balcon de 12,90 M² ce qui apporte un maximum de luminosité à votre intérieur.
Vous trouverez également deux belles chambres de 9.2 M² et 11.50 M² , une belle salle de bain de 4.95 m² et un WC séparé.

Produit unique et très rare sur le secteur.
Livraison : 3ème trimestre 2026 (frais de notaire réduits)
DPE non requis
Prix de vente : 289.000 euros
Mandat réf: 439125
Informations, réservations auprès de votre conseiller commercialisateur Coll Thierry pour ineuf-com au 06 62 37 23 23.
Pour visiter et vous accompagner dans votre projet, contactez Thierry Coll, agissant sous le statut conseiller immobilier indépendant auprès de la SAS Propriétés Privées au
06 62 37 23 23 ou par courriel à t.coll@proprietes-privees.com.
RCS 487 624 777 - Le professionnel vous conseille, garantit et sécurise votre projet immobilier.
Cette présente annonce a été rédigée sous la responsabilité éditoriale de Coll Thierry agissant sous le statut d'agent commercial immatriculé au RSAC BREST 878921915 auprès de la SAS PROPRIETES PRIVEES, Réseau national immobilier, au capital de 40000 euros, 44 ALLÉE DES CINQ CONTINENTS - ZAC LE CHÊNE FERRÉ, 44120 VERTOU, RCS Nantes n° 487 624 777 00040,
Copropriété de 35 lots - dont 35 lots habitation.().

Afficher plus de détails

Informations sur ce bien :

L'intérieur :

  • 3 pièces
  • 62 m²
    Informations complémentaires
    Surface habitable : 62 m²
  • 2 Chambres
  • 1 Salle de bain
  • 1 Salle d'eau
  • 2 Toilettes
  • Séjour de 37 m²

L'extérieur :

  • Jardin
  • Terrasse
  • 2 Parkings
    Informations complémentaires
    Extérieur

Autres :

  • Année de construction :
    2024
  • Exposition :
    Sud
  • Étage :
    1er étage
    Informations complémentaires
    Nombre d'étages de la construction : 2

Copropriété :

  • Copropriété :
    Oui
  • Nombre de lots :
    35
Synthèse
Appartement à Toussieu
289 000 €
Surface : 62 m²
Prix au m² : 4 661 €
Transaction :
Achat
Référence :
439125TCL
Date de publication :
Aujourd'hui à 08:35
Appartement - 62 m² - 3 pièces
Agent
Propriétés Privées
Propriétés Privées
Thierry COLL
Appeler
Écrire
Mettre en avant cette annonce
Signaler une erreur

Localisation :

Performance énergétique :

Bien non soumis au Diagnostic de Performance Énergétique (DPE)

Annonces similaires
Annonces immobilières récentes