• Appartement - 63 m² - 3 pièces
  • Appartement - 63 m² - 3 pièces
  • Appartement - 63 m² - 3 pièces
  • Appartement - 63 m² - 3 pièces
  • Appartement - 63 m² - 3 pièces
  • Appartement - 63 m² - 3 pièces
  • Appartement - 63 m² - 3 pièces
  • Appartement - 63 m² - 3 pièces
264 000 €
63 m²
3 pièces
2 chambres

Description :

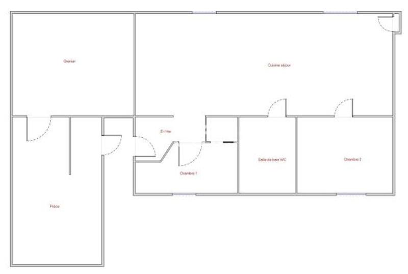
37000 - TOURS CENTRE - PLACE DES HALLES - Beau T3 de 63 m2 EST-OUEST donnant sur la place des Halles - Grenier supplémentaire aménageable au même étage (Dernier)

Louis del Marmol vous propose cet appartement au 3ème et dernier étage composé comme ci-dessous :

- Entrée de 2,62 m2
- Salon séjour cuisine ouverte de 32,91 m2 avec son balcon filant donnant sur la place des Halles
- Première chambre de 9,91 m2 (Chambre 1 sur le plan)
- Deuxième chambre de 12,12 m2 (Chambre 2 sur le plan)
- Salle de bain & WC de 5,42 m2
- Grenier aménageable de 30 m2 au sol mansardé (2 velux existants) sur le même pallier au dernier étage. Possibilité de créer une porte palière et d'agrandir l'appartement avec une chambre ou bureau supplémentaire. (Pièce & grenier sur le plan)

Informations complémentaires :

- Charges copropriété : 70 euros par mois (Assurance & éclairage des parties communes ainsi qu'eau froide inclus)
- Chauffage électrique individuel
- Possibilité de passer en DPE D en changeant ballon d'eau chaude et radiateurs.
- Double vitrage PVC
- Taxe foncière 2025 : 1000 euros

Emplacement exceptionnel place des Halles à Tours centre. A visiter rapidement. Contactez Louis del Marmol
Les informations sur les risques auxquels ce bien est exposé sont disponibles sur le site Georisque : georisques. gouv. fr
Louis del Marmol - EI - est Agent Commercial mandataire en immobilier, immatriculé au Registre Spécial des Agents Commerciaux du Tribunal de Commerce de Tours sous le n°978474716.
Siège social du mandant : effiCity, 48 avenue de Villiers - 75017 PARIS - Société par Actions Simplifiée, société au capital de 132 373,05 euros, immatriculée au RCS Paris 497 617 746 et titulaire de la Carte professionnelle CPI 7501 2015 000 002 025 - CCI Paris IDF - Caisse de Garantie : GALIAN Assurances 89 rue de la Boétie 75008 Paris

Afficher plus de détails

Informations sur ce bien :

L'intérieur :

  • 3 pièces
  • 63 m²
    Informations complémentaires
    Surface habitable : 63 m²
  • 2 Chambres
  • 1 Salle de bain
  • 1 Toilette

L'extérieur :

  • Balcon

Les équipements :

  • Accès handicapé

Autres :

  • Chauffage :
    Individuel, Radiateur, Électrique
  • Étage :
    3ème étage

Copropriété :

  • Copropriété :
    Oui
  • Nombre de lots :
    6
  • Charges annuelles :
    800 €
Synthèse
Appartement à Tours
264 000 €
Surface : 63 m²
Prix au m² : 4 190 €
Transaction :
Achat
Référence :
203390
Date de publication :
Hier à 09:43
Appartement - 63 m² - 3 pièces
Performance énergétique
A
B
C
D
E
F
G
Gaz à effet de serre
A
B
C
D
E
F
G
Agent
RESEAU EFFICITY
RESEAU EFFICITY
M. Louis del Marmol
Appeler
Écrire
Mettre en avant cette annonce
Signaler une erreur

Localisation :

Performance énergétique :

Logement économe
A
B
C
D
E
329
kWh/m²/an
13
kg CO₂/m²/an
F
G
Logement énergivore
Faible émission de CO₂
A
B
C
13
kg CO₂/m²/an
D
E
F
G
Forte émission de CO₂
Date du diagnostic : 29 juillet 2026
Annonces similaires
Annonces immobilières récentes