• Appartement - 36 m² - 2 pièces
  • Appartement - 36 m² - 2 pièces
  • Appartement - 36 m² - 2 pièces
  • Appartement - 36 m² - 2 pièces
  • Appartement - 36 m² - 2 pièces
160 000 €
36 m²
2 pièces
1 chambre

Description :

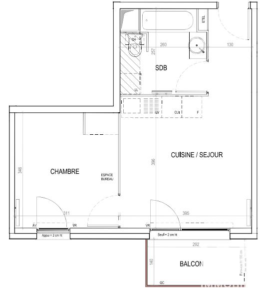
Iad France - Virginie Behague vous propose : Appartement neuf T2 avec balcon - Résidence sécurisée à Tourcoing À seulement quelques minutes du centre-ville de Tourcoing, découvrez ce projet d'appartement neuf de 36 m², situé dans une résidence contemporaine, sécurisée et accessible PMR, pensée pour le confort de vie et la qualité architecturale. Selon les plans, l'appartement comprend un hall d'entrée, d'une chambre confortable, d’un séjour lumineux avec cuisine ouverte d'environ 19.04 m², d’une salle de bain d'environ 6.05 m². Selon la notice descriptive, la résidence est équipée d'un système de sécurité avec digicode et interphone / visiophone. Un système de chauffage individuel au gaz naturel permettant confort thermique adapté et une gestion maîtrisée des consommations énergétiques. L'exposition Nord / Ouest, telle que définit au projet, permet une luminosité naturelle appréciable. Un balcon d'environ 4.13 m², complète le bien, parfait pour les beaux jours. Les + - Quartier recherché et calme - Proximité des commerces et des transports - Résidence sécurisée (selon notice descriptive) - Place de stationnement privative - Balcon - Construction conforme à la réglementation environnementale RE 2020 Livraison prévisionnelle : septembre 2026 Ce bien est adapté à un projet de résidence principale, une résidence secondaire ou un investissement locatif patrimonial. Ne manquez pas cette opportunité d'acquérir un appartement neuf, moderne et confortable à Tourcoing. Contactez-moi dès maintenant pour davantage d'informations La presente annonce immobiliere vise 2 lots situés dans une copropriété de 2 lots au total et ne faisant l'objet d'aucune procédure en cours citée à l'article L. 721-1 du code de la construction et de l'habitation. Montant moyen mensuel de charges déclaré par le vendeur : 120€ par mois (soit 1440 € annuel). Honoraires d'agence à la charge du vendeur. Bien non soumis au DPE. Les informations sur les risques auxquels ce bien est exposé, y compris l'obligation légale de débroussaillement, sont disponibles sur le site Géorisques : http://www.georisques.gouv.fr. La présente annonce immobilière a été rédigée sous la responsabilité éditoriale de Mme Virginie Behague mandataire indépendant en immobilier (sans détention de fonds), agent commercial de la SAS I@D France immatriculé au RSAC de LILLE METROPOLE sous le numéro 927714923, titulaire de la carte de démarchage immobilier pour le compte de la société I@D France SAS.

Afficher plus de détails

Informations sur ce bien :

L'intérieur :

  • 2 pièces
  • 36 m²
    Informations complémentaires
    Surface habitable : 36 m²
  • 1 Chambre

L'extérieur :

  • Balcon de 4 m²

Les équipements :

  • Ascenseur
  • Interphone
  • Digicode

Autres :

  • Chauffage :
    Individuel, Radiateur, Gaz
  • Année de construction :
    2026
  • Mitoyenneté :
    Non
  • Étage :
    4ème étage (dernier)
    Informations complémentaires
    Nombre d'étages de la construction : 4

Copropriété :

  • Copropriété :
    Oui
  • Nombre de lots :
    2
  • Charges annuelles :
    1 440 €
Synthèse
Appartement à Tourcoing
160 000 €
Surface : 36 m²
Prix au m² : 4 444 €
Transaction :
Achat
Référence :
1986230
Date de publication :
Aujourd'hui à 07:47
Appartement - 36 m² - 2 pièces
Agent
iad france
iad france
Virginie Behague
Appeler
Écrire
Mettre en avant cette annonce
Signaler une erreur

Localisation :

L'adresse exacte n'est pas renseignée. Le bien se situe dans cette zone.
Annonces similaires
Annonces immobilières récentes