• Appartement - 57 m² - 3 pièces
  • Appartement - 57 m² - 3 pièces
  • Appartement - 57 m² - 3 pièces
  • Appartement - 57 m² - 3 pièces
217 200 €
57 m²
3 pièces
2 chambres

Description :

Un véritable art de vivre avec Préface, sa toute nouvelle résidence de 83 appartements neufs du studio au 4 pièces à seulement 10 minutes en voiture du centre-ville de Toulouse.

Sa silhouette résolument chic est dynamisée par des courbes telles des vagues en mouvement. Aux étages, cette courbe est réinterprétée par les gardes corps en tôle perforée pour créer des jeux de balcons profonds. Les couleurs feutrées des façades blanches et grises sont tonifiées par le rouge passion des façades intérieures de certains balcons.

Les appartements sont dotés de grandes baies vitrées souvrant sur des balcons ou loggias et accueillent avec allégresse la luminosité du soleil du Midi.

La résidence Préface est attentive au développement durable et propose notamment des locaux adaptés au tri sélectif et la maitrise de la consommation deau et délectricité grâce aux dispositifs hydro économes.

Le jardin paysager en cur dîlot offre un véritable lieu de vie chaleureux avec des arbres hautes tiges, des plantes décoratives et des arbustes permettant aux résidents de profiter pleinement de moments précieux. Sécurisée, la résidence Préface dispose dun digicode à chaque entrée, dun portail à ouverture automatique télécommandée, dun parking sous-sol ainsi que dun local deux roues et poussettes.

La résidence Préface est implantée dans un quartier attractif et à proximité de toutes les commodités nécessaires pour accompagner le quotidien. Côté transport, des arrêts de bus se trouvent à 500 mètres menant au métro de la ligne B en 5 minutes.

Les biens ci-avant désignés représentant les lots n°A004 de la copropriété qui comporte 83 lots. La moyenne des charges courantes annuelles pour ces lots est de 0 . Procédure contre le syndicat : Non

Afficher plus de détails

Informations sur ce bien :

L'intérieur :

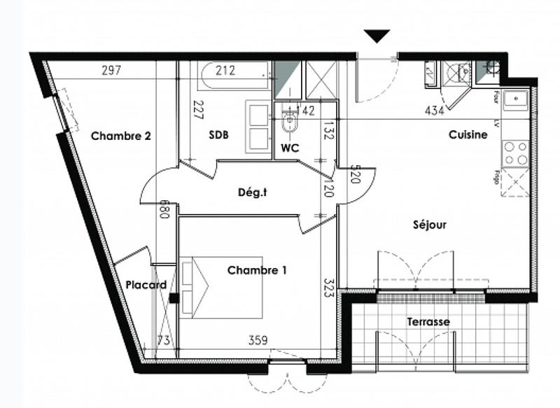
  • 3 pièces
  • 57 m²
  • 2 Chambres
  • Cuisine équipée
    Informations complémentaires
    Équipée
  • 1 Salle de bain
  • 1 Toilette
  • Séjour de 22 m²

L'extérieur :

  • 2 Parkings

Les équipements :

  • Ascenseur

Autres :

  • Année de construction :
    2021
  • Étage :
    RDC
    Informations complémentaires
    Nombre d'étages de la construction : 4

Copropriété :

  • Copropriété :
    Oui
  • Nombre de lots :
    83
  • Procédure :
    0
Synthèse
Appartement à Toulouse
217 200 €
Surface : 57 m²
Prix au m² : 3 811 €
Transaction :
Achat
Référence :
PN_leemopr_A4
Disponibilité :
01/02/2021
Date de publication :
Il y a plus de 7 jours
Appartement - 57 m² - 3 pièces
Agent
CACP 64 - Cipolla Associés Conseil en Patrimoine 64
CACP 64 - Cipolla Associés Conseil en Patrimoine 64
Appeler
Écrire
Mettre en avant cette annonce
Signaler une erreur

Localisation :

Annonces similaires
Annonces immobilières récentes