• Appartement - 52 m² - 3 pièces
  • Appartement - 52 m² - 3 pièces
98 500 €
52 m²
3 pièces
2 chambres

Description :

Forom Immobilier vous propose cet appartement T3 d'une surface d'environ 52 m² situé au 1er étage avec ascenseur, dans une résidence de 2011 sur la commune de Toulouse, secteur Bellefontaine.

Libre de toute occupation !

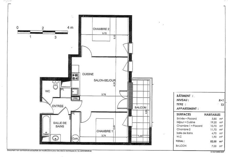
Ce bien se compose de la façon suivante : un salon donnant sur le balcon, une cuisine ouverte équipée, deux chambres dont une avec placard, une salle de bains, un WC, un balcon et une place de parking.

Informations clés :
Chauffage et eau chaude individuels électriques
Diagnostic de Performance Énergétique : C
Montant des charges annuelles : 1 056€
Taxe Foncière 2025 : 1 127€
Nombre de lots : 100
Honoraires charges vendeur.

Honoraires à la charge du vendeur. Dans une copropriété de 32 lots. Aucune procédure n'est en cours. Classe énergie C, Classe climat A Montant estimé des dépenses annuelles d'énergie pour un usage standard : entre 710.00 € et 1010.00 € sur les années 2021, 2022 et 2023 (abonnements compris). Les informations sur les risques auxquels ce bien est exposé sont disponibles sur le site Géorisques : georisques.gouv.fr.

Afficher plus de détails

Informations sur ce bien :

L'intérieur :

  • 3 pièces
  • 52 m²
  • 2 Chambres
  • 1 Salle de bain
  • 1 Toilette

L'extérieur :

  • Balcon de 7 m²
  • Parking
  • Box

Autres :

  • Année de construction :
    2011
  • Étage :
    1er étage
    Informations complémentaires
    Nombre d'étages de la construction : 4

Copropriété :

  • Copropriété :
    Oui
  • Nombre de lots :
    32
Synthèse
Appartement à Toulouse
98 500 €
Surface : 52 m²
Prix au m² : 1 894 €
Transaction :
Achat
Référence :
3930-FOROM
Date de publication :
Aujourd'hui à 06:23
Appartement - 52 m² - 3 pièces
Performance énergétique
A
B
C
D
E
F
G
Gaz à effet de serre
A
B
C
D
E
F
G
Agent
Forom® Immobilier
Appeler
Écrire
Mettre en avant cette annonce
Signaler une erreur

Localisation :

L'adresse exacte n'est pas renseignée. Le bien se situe dans cette zone.

Performance énergétique :

Logement économe
A
B
C
167
kWh/m²/an
5
kg CO₂/m²/an
D
E
F
G
Logement énergivore
Faible émission de CO₂
A
5
kg CO₂/m²/an
B
C
D
E
F
G
Forte émission de CO₂
Date du diagnostic : 10 décembre 2025
Estimation des coûts annuels d’énergie du logement : 710 € à 1 010 €
Annonces similaires
Annonces immobilières récentes