• Studio - 24 m² - 1 pièce
  • Studio - 24 m² - 1 pièce
  • Studio - 24 m² - 1 pièce
  • Studio - 24 m² - 1 pièce
  • Studio - 24 m² - 1 pièce
  • Studio - 24 m² - 1 pièce
  • Studio - 24 m² - 1 pièce
  • Studio - 24 m² - 1 pièce
96 000 €
24 m²
1 pièce

Description :

IDEAL INVESTISSEUR - STUDIO VENDU LOUE - GRANDS ESPACES VERTS - PROXIMITE DES TRANSPORTS - JARDINET - ACCES PISCINE - TENNIS - CALME

Nous vous proposons à la vente, un charmant studio, vendu loué, situé au sein d'une résidence verdoyante et calme.

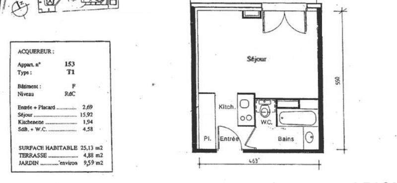
La pièce de vie (15,5 m2 environ) s'ouvre sur un jardinet privatif, idéal pour profiter des beaux jours.

L'appartement comprend un dégagement accueillant une kitchenette entièrement équipée ainsi qu'une salle de bain avec WC.

L'ensemble est en bon état général et offre un cadre de vie agréable dans une copropriété sécurisée et bien entretenue.

Les résidents bénéficient de grands espaces verts, d'une piscine et d'un terrain de tennis.

À quelques pas, un grand parc et un complexe sportif offrent de nombreuses possibilités pour les amateurs d'activités de plein air.

Vous apprécierez également sa place de parking en sous-sol et l'accès au transport en commun devant la résidence.

Pour organiser une visite, contactez nous au 05 62 800 800
Référence agence : 2613

Afficher plus de détails

Informations sur ce bien :

L'intérieur :

  • 1 pièce
  • 24 m²
    Informations complémentaires
    Surface habitable : 24 m²
  • 1 Salle de bain
  • 1 Toilette

L'extérieur :

  • Jardin
  • Piscine

Les équipements :

  • Tout à l'égout
  • Double vitrage

Autres :

  • Chauffage :
    Individuel, Électrique
  • État :
    bon

Copropriété :

  • Copropriété :
    Oui
  • Nombre de lots :
    208
  • Charges annuelles :
    730 €
  • Taxe foncière :
    790 €
Synthèse
Studio à Toulouse
96 000 €
Surface : 24 m²
Prix au m² : 4 000 €
Transaction :
Achat
Référence :
R9UZ-YDM-BCX
Date de publication :
Il y a plus de 7 jours
Studio - 24 m² - 1 pièce
Performance énergétique
A
B
C
D
E
F
G
Gaz à effet de serre
A
B
C
D
E
F
G
Agent
Bo Immobilier
Bo Immobilier
Appeler
Écrire
Mettre en avant cette annonce
Signaler une erreur

Localisation :

L'adresse exacte n'est pas renseignée. Le bien se situe dans cette zone.

Performance énergétique :

Logement économe
A
B
C
D
201
kWh/m²/an
6
kg CO₂/m²/an
E
F
G
Logement énergivore
Faible émission de CO₂
A
6
kg CO₂/m²/an
B
C
D
E
F
G
Forte émission de CO₂
Date du diagnostic : 21 février 2025
Annonces similaires
Annonces immobilières récentes