Studio - 20 m² - 1 pièce à Toulouse
favoris
59 500 €
Description :
Studio de 20m2 meublé et loué sous bail commercial LMNP, offrant une rente garantie de 988 € par trimestre, situé à 5 minutes à pied du tram et proche des écoles supérieures. Vendu entièrement meublé, loué et géré par un exploitant professionnel, cet investissement clé en main assure une rentabilité immédiate sans contrainte locative, idéal pour un investisseur souhaitant percevoir un revenu sécurisé. N'attendez plus pour me contacter !!
Afficher plus de détails
Informations sur ce bien :
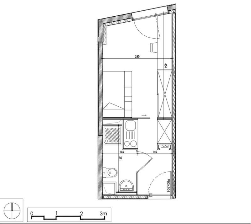
L'intérieur :
-
1 pièce
-
20 m²Informations complémentairesSurface habitable : 20 m²
-
Coin cuisineInformations complémentairesCoin cuisine
Autres :
-
Étage :8ème étage
Copropriété :
-
Copropriété :Oui
-
Charges annuelles :426 €
-
Taxe foncière :572 €
Synthèse
Studio à Toulouse
59 500 €
Surface :
20 m²
Prix au m² :
2 975 €
Transaction :
Achat
Référence :
416726
Mandat :
Exclusif
Date de publication :
Il y a plus de 7 jours
Contacter l'annonceur
Performance énergétique
A
B
C
D
E
F
G
Gaz à effet de serre
A
B
C
D
E
F
G
Agent
KW ADVANCE
Matteo HERRERO
Mettre en avant cette annonce
Signaler une erreur
Localisation :
L'adresse exacte n'est pas renseignée. Le bien se situe dans cette zone.
Performance énergétique :
Logement économe
A
B
83
kWh/m²/an
2
kg CO₂/m²/an
C
D
E
F
G
Logement énergivore
Faible émission de CO₂
A
2
kg CO₂/m²/an
B
C
D
E
F
G
Forte émission de CO₂
Date du diagnostic :
03 juin 2025
Ventes d'appartements à proximité
- 42 ventes d'appartements à Balma (4.5 km)
- 92 ventes d'appartements à Blagnac (5.1 km)
- 30 ventes d'appartements à L'Union (6.7 km)
- 53 ventes d'appartements à Aucamville (7.3 km)
- 46 ventes d'appartements à Ramonville-Saint-Agne (7.3 km)
- 5 ventes d'appartements à Montrabé (7.8 km)
- 26 ventes d'appartements à Launaguet (7.8 km)
- 153 ventes d'appartements à Tournefeuille (8.2 km)
- 14 ventes d'appartements à Saint-Jean (8.3 km)