• Appartement - 69 m² - 3 pièces
  • Appartement - 69 m² - 3 pièces
  • Appartement - 69 m² - 3 pièces
  • Appartement - 69 m² - 3 pièces
  • Appartement - 69 m² - 3 pièces
  • Appartement - 69 m² - 3 pièces
  • Appartement - 69 m² - 3 pièces
  • Appartement - 69 m² - 3 pièces
  • Appartement - 69 m² - 3 pièces
170 000 €
69 m²
3 pièces
2 chambres

Description :

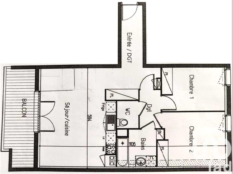
Iad France - Agnès Bessou vous propose : Exclusivité : Appartement T3 traversant de 69 m² au 3ième étage avec une grande terrasse dans résidence récente. Il se compose d’une entrée avec placards, d’un séjour avec une cuisine équipée donnant sur la terrasse. Dans l’espace nuit : 2 chambres avec rangements, une salle d’eau récente, des toilettes séparées avec un coin buanderie. 1 place de parking en sous-sol. Chauffage au gaz individuel. À 2 pas des accès métro ligne B et lignes de bus 26 et 60, des commerces et des services, du périphérique sortie 12…Informations et autres photos disponibles sur I@D France. c – Référence 1828932 - Agnès Bessou, conseillère immobilier indépendante La presente annonce immobiliere vise 2 lots situés dans une copropriété de 224 lots au total et ne faisant l'objet d'aucune procédure en cours citée à l'article L. 721-1 du code de la construction et de l'habitation. Montant moyen mensuel de charges déclaré par le vendeur : 110€ par mois (soit 1320 € annuel). Honoraires d'agence à la charge du vendeur. Information d'affichage énergétique sur ce bien : classe ENERGIE C indice 77 et classe CLIMAT C indice 14. Les informations sur les risques auxquels ce bien est exposé, y compris l'obligation légale de débroussaillement, sont disponibles sur le site Géorisques : http://www.georisques.gouv.fr. La présente annonce immobilière a été rédigée sous la responsabilité éditoriale de Mme Agnès Bessou mandataire indépendant en immobilier (sans détention de fonds), agent commercial de la SAS I@D France immatriculé au RSAC de TOULOUSE sous le numéro 752835967, titulaire de la carte de démarchage immobilier pour le compte de la société I@D France SAS.

Afficher plus de détails

Informations sur ce bien :

L'intérieur :

  • 3 pièces
  • 69 m²
    Informations complémentaires
    Surface habitable : 69 m²
  • 2 Chambres
  • Séjour

L'extérieur :

  • Terrasse
  • Parking

Les équipements :

  • Ascenseur

Autres :

  • Chauffage :
    Individuel, Radiateur, Gaz
  • Année de construction :
    2015
  • Mitoyenneté :
    Non
  • Étage :
    3ème étage
    Informations complémentaires
    Nombre d'étages de la construction : 4

Copropriété :

  • Copropriété :
    Oui
  • Nombre de lots :
    224
  • Charges annuelles :
    1 320 €
Synthèse
Appartement à Toulouse
170 000 €
Surface : 69 m²
Prix au m² : 2 464 €
Transaction :
Achat
Référence :
1888407
Date de publication :
Il y a plus de 7 jours
Appartement - 69 m² - 3 pièces
Performance énergétique
A
B
C
D
E
F
G
Gaz à effet de serre
A
B
C
D
E
F
G
Agent
iad france
iad france
Agnès Bessou
Appeler
Écrire
Mettre en avant cette annonce
Signaler une erreur

Localisation :

L'adresse exacte n'est pas renseignée. Le bien se situe dans cette zone.

Performance énergétique :

Logement économe
A
B
C
77
kWh/m²/an
14
kg CO₂/m²/an
D
E
F
G
Logement énergivore
Faible émission de CO₂
A
B
C
14
kg CO₂/m²/an
D
E
F
G
Forte émission de CO₂
Date du diagnostic : 19 juillet 2022
Annonces similaires
Annonces immobilières récentes