• Appartement - 142 m² - 5 pièces
  • Appartement - 142 m² - 5 pièces
  • Appartement - 142 m² - 5 pièces
  • Appartement - 142 m² - 5 pièces
  • Appartement - 142 m² - 5 pièces
  • Appartement - 142 m² - 5 pièces
  • Appartement - 142 m² - 5 pièces
749 000 €
142 m²
5 pièces
4 chambres

Description :

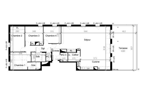
Toulouse - Appartement T5 avec balcon et terrasse de 39,70 m²- 2 places de parking.Situé dans le secteur de Croix de Pierre nous vous proposons à la vente ce splendide appartement de 142,80 m² avec terrasse de presque 40 m² et deux places de parking.Une entrée de 4,6 m² dessert le séjour de 49,2 m² avec cuisine ouverte de 16,7 m². Cette belle pièce de vie donne sur une grande terrasse de 39,7 m² avec vue sur la Garonne.Le coin nuit dispose d'une suite parentale de 12,5 m² avec sa salle d'eau de 3,4 m² puis trois chambres de 13,8 m², 12,1 m² et 10,9 m².Une salle de bains de 4,9 m² ainsi que deux WC complètent le tout.Composition de l'appartement:Entrée : 4,6 m²Séjour : 49,2 m²Cuisine : 16,7 m²Cellier : 4,2 m²Dégagement : 6,7 m²Chambre 1 : 12,5 m²SDB : 3,4 m²Chambre 2 : 13,8 m²Chambre 3 : 12,1 m²Chambre 4 : 10,9 m²SDB : 4,9 m²WC 1 : 2,2 m²WC 2 : 1,6 m²Terrasse : 39,7 m²Informations pratiques:RT 2012Double vitrage.Volets roulants électriques.Proximité immédiate des transports 152, L4, L5, Tram Croix de Pierre à 5 mn à pied.Commerces, écoles au sein du quartier.Classement énergétique en C.Honoraires à la charge du vendeur.Cette annonce vous est proposée par Dedieu Sabine - - NoRSAC : 898566120, Enregistré au Greffe du tribunal de commerce de TOULOUSE.Informations LOI ALUR : Soumis au régime de copropriété. (gedeon_90737_30996608)

Afficher plus de détails

Informations sur ce bien :

L'intérieur :

  • 5 pièces
  • 142 m²
  • 4 Chambres
  • 1 Salle de bain
  • 1 Toilette

L'extérieur :

  • Terrasse
  • 4 Parkings

Les équipements :

  • Ascenseur

Autres :

  • Chauffage :
    Individuel, Gaz
  • Année de construction :
    2023
  • Étage :
    5ème étage

Copropriété :

  • Copropriété :
    Oui
Synthèse
Appartement à Toulouse
749 000 €
Surface : 142 m²
Prix au m² : 5 275 €
Transaction :
Achat
Référence :
AG475-46325
Date de publication :
Il y a plus de 7 jours
Appartement - 142 m² - 5 pièces
Performance énergétique
A
B
C
D
E
F
G
Gaz à effet de serre
A
B
C
D
E
F
G
Agent
BENOÎT LANNES IMMOBILIER
BENOÎT LANNES IMMOBILIER
Appeler
Écrire
Mettre en avant cette annonce
Signaler une erreur

Localisation :

L'adresse exacte n'est pas renseignée. Le bien se situe dans cette zone.

Performance énergétique :

Logement économe
A
B
C
69
kWh/m²/an
14
kg CO₂/m²/an
D
E
F
G
Logement énergivore
Faible émission de CO₂
A
B
C
14
kg CO₂/m²/an
D
E
F
G
Forte émission de CO₂
Date du diagnostic : 07 octobre 2024
Estimation des coûts annuels d’énergie du logement : 955 € à 1 293 €
Annonces similaires
Annonces immobilières récentes