• Terrain - 555 m²
  • Terrain - 555 m²
  • Terrain - 555 m²
139 000 €
555 m²

Description :

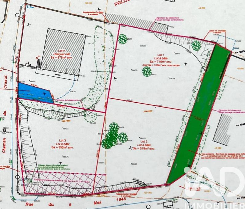
Iad France - Véronique Carpin vous propose : Belle opportunité Thurins- Terrain 555 m² -LIBRE CONSTRUCTEUR- LOT 1 sur plan Venez découvrir sur la commune de Thurins, proche du centre bourg et des transports en commun (TCL11 et 2ex) une parcelle de terrain non viabilisée d'une superficie de 555 m². Exposé Sud, ce terrain est hors lotissement et hors zone d'activité - La viabilité se situe en bordure de terrain. Honoraires d'agence à la charge du vendeur. Bien non soumis au DPE. Les informations sur les risques auxquels ce bien est exposé, y compris l'obligation légale de débroussaillement, sont disponibles sur le site Géorisques : http://www.georisques.gouv.fr. La présente annonce immobilière a été rédigée sous la responsabilité éditoriale de Mme Véronique Carpin mandataire indépendant en immobilier (sans détention de fonds), agent commercial de la SAS I@D France immatriculé au RSAC de LYON sous le numéro 922345954, titulaire de la carte de démarchage immobilier pour le compte de la société I@D France SAS.

Afficher plus de détails

Informations sur ce bien :

L'intérieur :

  • 555 m²

Autres :

  • Mitoyenneté :
    Non

Terrain :

  • Viabilisé :
    Non
Synthèse
Terrain à Thurins
139 000 €
Surface : 555 m²
Prix au m² : 250 €
Transaction :
Achat
Référence :
2008987
Date de publication :
Il y a plus de 7 jours
Terrain - 555 m²
Agent
iad france
iad france
Véronique Carpin
Appeler
Écrire
Mettre en avant cette annonce
Signaler une erreur

Localisation :

L'adresse exacte n'est pas renseignée. Le bien se situe dans cette zone.
Annonces similaires
Annonces immobilières récentes