Longère - 136 m² - 6 pièces à Thimory

favoris
  • Longère - 136 m² - 6 pièces
  • Longère - 136 m² - 6 pièces
  • Longère - 136 m² - 6 pièces
  • Longère - 136 m² - 6 pièces
  • Longère - 136 m² - 6 pièces
  • Longère - 136 m² - 6 pièces
  • Longère - 136 m² - 6 pièces
  • Longère - 136 m² - 6 pièces
  • Longère - 136 m² - 6 pièces
  • Longère - 136 m² - 6 pièces
  • Longère - 136 m² - 6 pièces
  • Longère - 136 m² - 6 pièces
  • Longère - 136 m² - 6 pièces
  • Longère - 136 m² - 6 pièces
  • Longère - 136 m² - 6 pièces
  • Longère - 136 m² - 6 pièces
  • Longère - 136 m² - 6 pièces
89 000 €
136 m²
6 pièces
4 chambres

Description :

MAISON A RENOVER 6 PIÈCES AVEC JARDIN

Ayez le coup de cœur pour cette longère de 6 pièces de 136 m² et de 2 920 m² de terrain à vendre à THIMORY (45260).

Alors oui, elle est à rénover, et oui il faudra se projeter mais cette longère vous offre un cadre de vie très agréable. Elle fait actuellement 136m2, mais beaucoup plus d'espace est disponible à l'aménagement, jusqu'à 180m2.
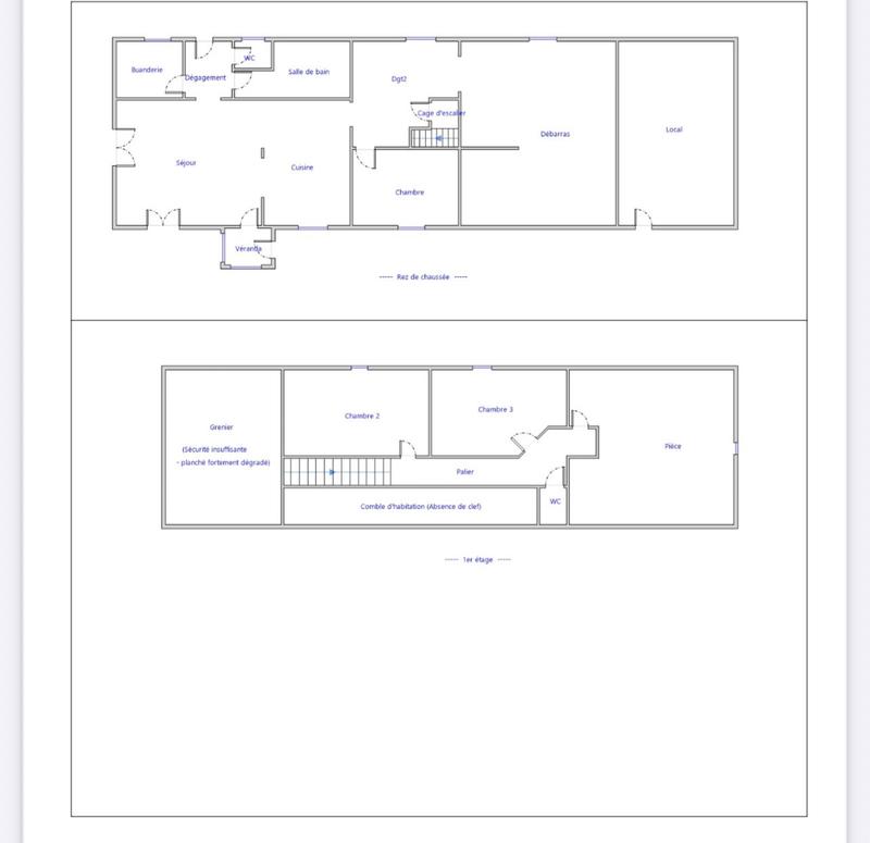
Une première rénovation à permis de créer un salon, une grande cuisine, une salle de bains, 1 chambre au rez de chaussée et 3 chambres à l'étage.
Sur le côté une chaufferie et un grenier.

Concernant les véhicules, elle dispose de trois places de parking.

Une école primaire est implantée dans le quartier. On trouve un accès à l'autoroute A77 à 10 km.

Les informations sur les risques auxquels ce bien est exposé sont disponibles sur le site Géorisques : www.georisques.gouv.fr.

Envie d'en savoir plus sur cette maison en vente ? Prenez contact avec votre agent Céline PARENTE (RSAC de Melun 900320524) au 06 56 83 21 55.

Les informations sur les risques auxquels ce bien est exposé sont disponibles sur le site Géorisques du gouvernement.

Afficher plus de détails

Informations sur ce bien :

L'intérieur :

  • 6 pièces
  • 136 m²
  • 4 Chambres
  • Cuisine équipée
    Informations complémentaires
    Équipée
  • 1 Salle de bain
  • 1 Toilette

L'extérieur :

  • 3 Parkings
    Informations complémentaires
    3 places
Synthèse
Longère à Thimory
89 000 €
Surface : 136 m²
Prix au m² : 654 €
Transaction :
Achat
Référence :
8311kw
Date de publication :
Il y a plus de 7 jours
Longère - 136 m² - 6 pièces
Performance énergétique
A
B
C
D
E
F
G
Gaz à effet de serre
A
B
C
D
E
F
G
Agent
JP3M IMMOBILIER
JP3M IMMOBILIER
KW ÉVOLUTION
Appeler
Écrire
Mettre en avant cette annonce
Signaler une erreur

Localisation :

L'adresse exacte n'est pas renseignée. Le bien se situe dans cette zone.

Performance énergétique :

Logement économe
A
B
C
D
231
kWh/m²/an
7
kg CO₂/m²/an
E
F
G
Logement énergivore
Faible émission de CO₂
A
B
7
kg CO₂/m²/an
C
D
E
F
G
Forte émission de CO₂
Date du diagnostic : 14 mars 2024
Estimation des coûts annuels d’énergie du logement : 1 570 € à 2 580 €
Annonces similaires
Annonces immobilières récentes