• Appartement - 82 m² - 4 pièces
  • Appartement - 82 m² - 4 pièces
  • Appartement - 82 m² - 4 pièces
  • Appartement - 82 m² - 4 pièces
690 000 €
82 m²
4 pièces
3 chambres

Description :

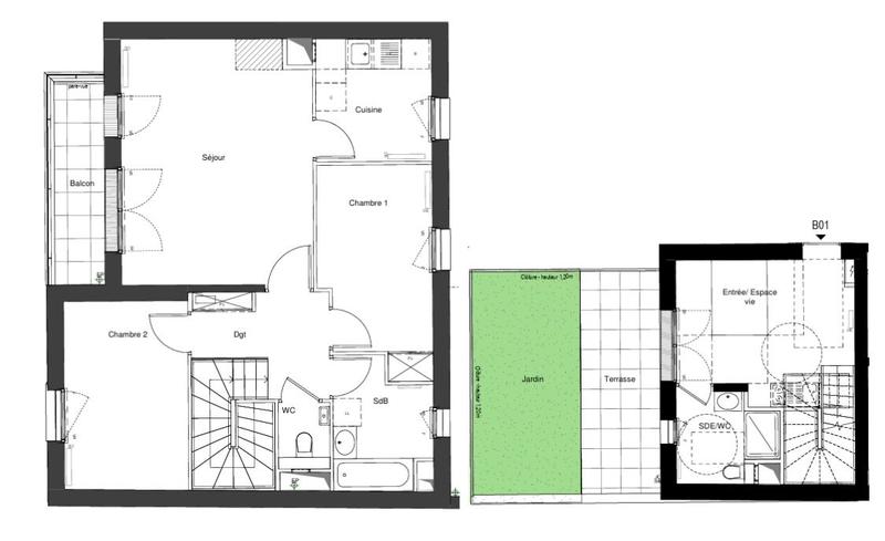
Fiche Id-UBW167051 : Suresnes, T4 4p duplex - terrasse jardin et pk d'environ 82 m2 comprenant 4 piece(s) dont 3 chambre(s) + Terrasse de 31 m2 - Construction 2024 R?sidence standing - Equipements annexes : jardin - terrasse - balcon - parking - digicode - double vitrage - ascenseur - - chauffage : Gaz Collectif Livraison imm?diate - frais de notaires r?duits - Classe Energie B : 70 kWh.m2.an - (DPE ancienne version) - Plus d'informations disponibles sur demande... - Mentions légales : Proposé à la vente à 690000 Euros (honoraires à la charge du vendeur) - Classe Energie B : 70 kWh.m2.an - (DPE ancienne version) - Bien en copropriété - Charges annuelles : 2755 Euros/an (soit 230 Euros/mois) - Affaire suivie par Mr Maximilien ZANIER (Agent immobilier - Responsable) - Reseau Immo-Diffusion Bagnolet - Pour plus d'informations, contactez notre secrétariat au 09 74 53 13 81 (Appel gratuit ou prix d'une communication locale)

Afficher plus de détails

Informations sur ce bien :

L'intérieur :

  • 4 pièces
  • 82 m²
    Informations complémentaires
    Surface habitable : 82 m²
  • 3 Chambres

L'extérieur :

  • Jardin
  • Terrasse
  • Balcon

Les équipements :

  • Ascenseur

Autres :

  • Chauffage :
    Gaz
  • Année de construction :
    2024

Copropriété :

  • Copropriété :
    Oui
  • Charges annuelles :
    2 760 €
Synthèse
Appartement à Suresnes
690 000 €
Surface : 82 m²
Prix au m² : 8 415 €
Transaction :
Achat
Référence :
id-UBW167051-0602
Date de publication :
Aujourd'hui à 08:27
Appartement - 82 m² - 4 pièces
Performance énergétique
A
B
C
D
E
F
G
Gaz à effet de serre
A
B
C
D
E
F
G
Agent
Immo Diffusion
Immo Diffusion
Appeler
Écrire
Mettre en avant cette annonce
Signaler une erreur

Localisation :

L'adresse exacte n'est pas renseignée. Le bien se situe dans cette zone.

Performance énergétique :

Logement économe
A
B
70
kWh/m²/an
8
kg CO₂/m²/an
C
D
E
F
G
Logement énergivore
Faible émission de CO₂
A
B
8
kg CO₂/m²/an
C
D
E
F
G
Forte émission de CO₂
Annonces similaires
Annonces immobilières récentes