Local d'activités - 2 364 m² à Sucy-en-Brie
Description :
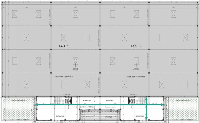
My Transac vous propose à la location 4 728 m² d'activités et de bureaux divisibles à partir de 2 364 m²
Surface totale du bâtiment 4 728m²
RDC Activité de 4 113m² et Bureaux de 146m²
R+1 Bureaux de 469m²
Ou divisible en 2 soit :
2 364m²
RDC Activité de 2 057m² et Bureaux de 73m²
R+1 Bureaux de 234m²
Description Activités :
Réseaux :
Fibre optique : Fourreaux disponibles en attente
Gaz : Distribution par compteur privatif
Espaces Extérieurs :
Site clos, contrôle d'accès sur portails
Voirie lourde pour permettre le passage de poids lourd
Finitions de l'activité :
Dallage quartzé anti poussière industriel
Résistance au sol : 3T/m²
Hauteur sous plafond : 8m
3 portes de plain pied par lot : 4,20 m x 3,5 m
2 portes à quai équipés de niveleurs par lots : 3 m x 3,3 m
Toiture isolante multicouche
Électricité / Eclairage :
LED
Niveau d'éclairage de 150 lux
Distribution électrique en attente dans armoire TGBT
Chauffage / Ventilation :
L'activité est chauffé par l'intermédiaire d'aérothermes gaz
Performance : +12°C intérieur par -7°C Exterieur
Finitions des bureaux :
Toiture végétalisé : Toiture isolée et végétalisé donnant plus d'inertie thermique au bâtiment
Sol : Moquette type Reclaim Ribs II ou équivalent
Murs : Doublage par BA13 demi still isolé
Peinture : 2 couches de peinture blanche RAL 9010
Faux plafond : Dalles avec ossature en T
Menuiseries extérieures aluminium
Chauffage / Climatisation :
-Le chauffage des locaux en hiver (+20°/-5°ext)
-Le rafraîchissement en été +27°C/+32°C extérieur ± 2°C
-Le traitement des locaux en chaud ou en froid sera réalisé par ventilo-convecteurs en allège
ou plafond
-L'alimentation en air hygiénique sera du type simple flux par extraction d'air.
Finition des sanitaires :
Sol carrelé
Faux plafond
Revêtement mural : Faïence toute hauteur et liseré décoratif
Appareillage Grohe ou équivalent
Meuble vasques menuisé ou équivalent
Conditions Financières :
Loyer : 150 HT/HC/m²
Charges : 9% du loyer annuel HT/HC
Loyer Parking : 450 € /U/an HT/HC
Bail 6/9/12
Dépôt de Garantie : 3 mois de loyer HT
Indexation : ILAT
Taxe Foncière : 11 Euros/m²/an
Honoraires : 15 % HT du loyer annuel HT HC à la charge du preneur
Accessibilité :
RER A de Sucy-en-Brie accessible à 10mn à pied
Bus à proximité
Axes routiers A86 / N19.
Aéroport d'Orly
Informations sur ce bien :
L'intérieur :
-
2 364 m²
L'extérieur :
-
Parking
Localisation :
Location de locaux d'activités et entrepôts à proximité
- 1 location de local d'activité et entrepôt à Boissy-Saint-Léger (2.2 km)
- 19 location de locaux d'activités et entrepôts à Bonneuil-sur-Marne (2.6 km)
- 5 location de locaux d'activités et entrepôts à Chennevières-sur-Marne (3 km)
- 4 location de locaux d'activités et entrepôts à Limeil-Brévannes (3.5 km)
- 11 location de locaux d'activités et entrepôts à Saint-Maur-des-Fossés (4.5 km)
- 54 location de locaux d'activités et entrepôts à La Queue-en-Brie (4.5 km)
- 12 location de locaux d'activités et entrepôts à Valenton (5.1 km)
- 8 location de locaux d'activités et entrepôts à Champigny-sur-Marne (5.2 km)
- 26 location de locaux d'activités et entrepôts à Créteil (5.3 km)