Terrain - 704 m² à Soumoulou
favoris
73 600 €
Description :
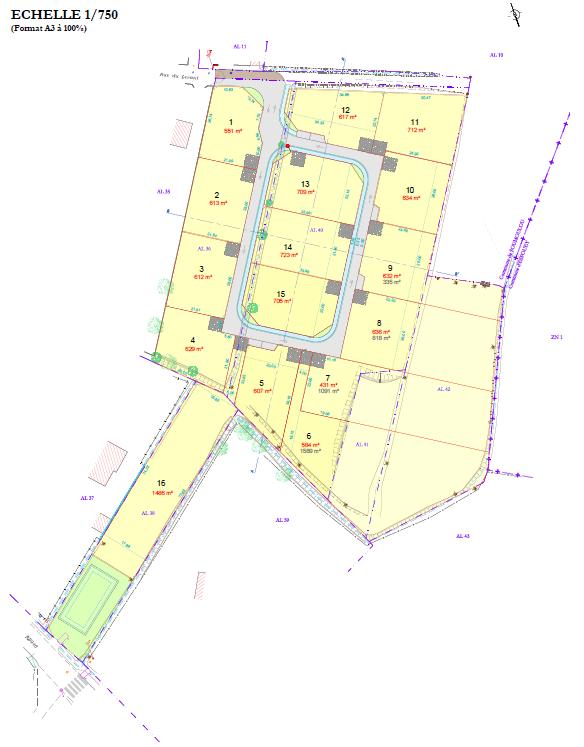
A 15 min de Pau, dans un quartier calme et verdoyant avec vue sur les Pyrénées, joli terrain de 704 m2 viabilisé, lot no15, proche de tous commerces et commodités. Construisez la maison de vos rêves dans ce petit lotissement de 16 lots situé entre Pau, Tarbes et Lourdes.
Les informations sur les risques auxquels ce bien est exposé sont disponibles sur le site Géorisques : www.georisques.gouv.fr
Afficher plus de détails
Informations sur ce bien :
L'intérieur :
-
704 m²
-
Sans cuisineInformations complémentairesSans cuisine
L'extérieur :
-
Parking
Terrain :
-
Constructible :Oui
-
Viabilisé :Oui
Synthèse
Terrain à Soumoulou
73 600 €
Surface :
704 m²
Prix au m² :
105 €
Transaction :
Achat
Référence :
4815
Date de publication :
Il y a plus de 7 jours
Contacter l'annonceur
Agent
IDRON IMMOBILIER
Mettre en avant cette annonce
Signaler une erreur
Localisation :
L'adresse exacte n'est pas renseignée. Le bien se situe dans cette zone.
Ventes de terrains à proximité
- 1 vente de terrain à Nousty (1.6 km)
- 5 ventes de terrains à Limendous (1.8 km)
- 1 vente de terrain à Espoey (2.6 km)
- 5 ventes de terrains à Artigueloutan (4.4 km)
- 2 ventes de terrains à Beuste (5.4 km)
- 2 ventes de terrains à Eslourenties-Daban (5.6 km)
- 3 ventes de terrains à Luquet (5.9 km)
- 3 ventes de terrains à Lagos (6.3 km)
- 1 vente de terrain à Ousse (6.7 km)